Habitats says ..
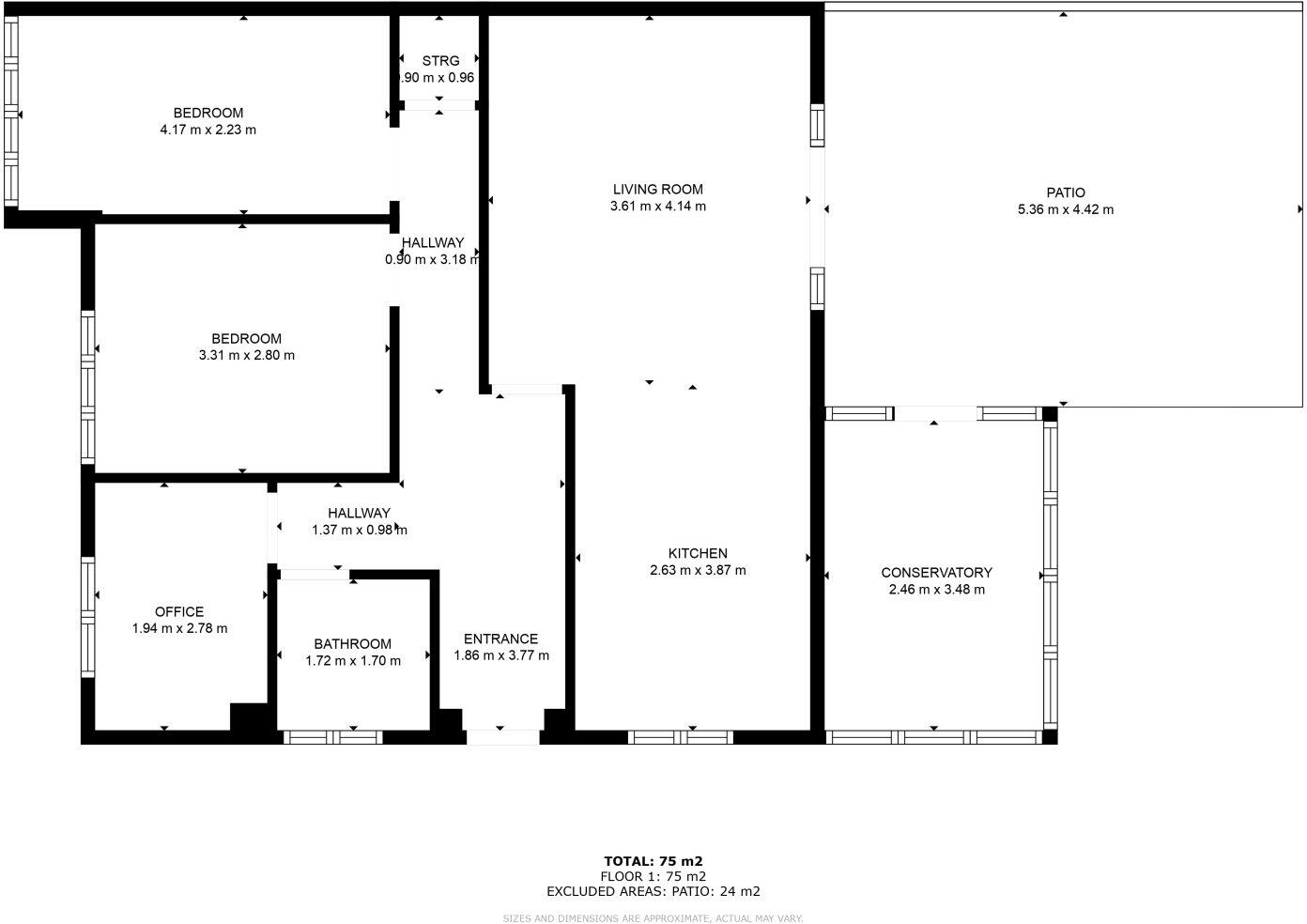
Not Your Typical True Bungalow – Modern, Stylish, and Family-Ready. This bungalow has been renovated to such style you would be mad to miss it, you can't beat the location either. The Seller has done a fantastic job. If you think bungalows are just for when you retire, think again, this ...
Property Oracle says ..
Therefore, we give this property 7 / 10. *Disclaimer: This is our option and does constitute a recommendation or financial advice. Do your own research. *
- Price
- 7
- Condition
- 8
- Location
- 7
- Land
- 7
- Bedrooms
- 3
- Bathrooms
- 1
- Sqft (est)
- 1,037.00
The heatmap indicates the level of crime in the area. The color of the heatmap indicates the crime severity and recency.
Metrics Year-on-Year
- Average area value
- 169,950.00 £Decreased by 32.23 %
- Est sale value
- 212,585.00 £Decreased by 42.74 %
- Average area rental value
- 825.00 £/moDecreased by 2.94 %
- Est letting value
- 0.00 £/moDecreased by 100.00 %
- Est rental Yield
- 5.83 %Increased by 43.24 %
- Crime Rate
- 2.00 %Unchanged by 0.00 %
from 250,772.00 £
from 371,246.00 £
from 850.00 £/mo
from 1,037.00 £/mo
from 4.07 %
from 2.00 %
Agent Activity
Habitats created the listing.
Nearby Schools
| Name | Type | Ofsted | Distance |
|---|---|---|---|
| Rawtenstall St Paul'S Church Of England Primary School | Voluntary Controlled School | Good | 0.36 KM |
| Alder Grange School | Community School | Good | 0.44 KM |
| St Mary'S Cofe Primary School Rawtenstall | Voluntary Controlled School | Good | 0.88 KM |
| St James-The-Less Roman Catholic Primary School, Rawtenstall | Voluntary Aided School | Good | 0.98 KM |
| Crawshawbooth Primary School | Community School | Good | 1.91 KM |
Images
Nearby Streets
| Name | Average Price | Average Sqft | Distance |
|---|---|---|---|
| Slaidburn Avenue | £ 330,000 | 0 | 0.00 KM |
| Beechwood Drive | £ 425,000 | 0 | 0.00 KM |
| Ivy Grove | £ 0 | 0 | 0.00 KM |
| Propsect Hill | £ 0 | 0 | 0.00 KM |
| Fairview | £ 800,000 | 0 | 0.00 KM |
Nearby Transport
| Name | NLC | TLC | Distance |
|---|---|---|---|
| Rose Grove | 2722 | RSG | 8.32 KM |
| Hapton | 2557 | HPN | 8.53 KM |
| Burnley Manchester Road | 2549 | BYM | 9.14 KM |
| Burnley Barracks | 2743 | BUB | 9.35 KM |
| Huncoat | 2558 | HCT | 9.58 KM |
Nearby Listings
| Address | Price | Type | Score | Distance |
|---|---|---|---|---|
| Hollin Way, Rossendale | £ 285,000 | BUY | 7 / 10 | 0.00 KM |
| Greave Close, Rossendale, Lancashire, BB4 | £ 289,950 | BUY | 6 / 10 | 0.07 KM |
| Greave Close, Constable Lee, Rossendale | £ 450,000 | BUY | 7 / 10 | 0.10 KM |
| Higher Constable Lee, Rossendale, Lancashire, BB4 | £ 465,000 | BUY | 7 / 10 | 0.10 KM |
| Mitton Avenue, Rossendale, BB4 8UR | £ 325,000 | BUY | 7 / 10 | 0.17 KM |
Nearby Properties
| Address | Price | Distance |
|---|---|---|
| 202 Hollin Way | £ 200,000 | 0.01 KM |
| 18 Worston Close | £ 120,000 | 0.04 KM |
| 8 Worston Close | £ 163,000 | 0.04 KM |
| 22 Worston Close | £ 82,000 | 0.04 KM |
| 24 Worston Close | £ 33,000 | 0.04 KM |