East Rochester Way, Sidcup, Kent, DA15
By Capital Estate Agents
£ 399,999
Reviews
3 out of 5 stars
Capital Estate Agents says ..
Capital Estate Agents presents this charming three-bedroom home on East Rochester Way in Sidcup.. Set in a convenient location, this property offers easy access to a variety of local amenities and schools.
Property Oracle says ..
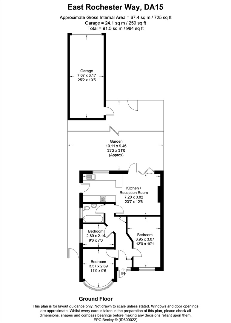
This semi-detached bungalow in Sidcup presents a well-maintained living space in a sought-after location. The property benefits from its proximity to local amenities, schools, and transportation links, making it an attractive option for families and commuters alike. The interior is modern and well-presented, while the garden offers a private outdoor space. Overall, this property offers a blend of comfort, convenience, and value for money in the Sidcup area. The property is a semi-detached bungalow with 3 bedrooms and 1 bathroom. The square footage is 984.00 sqft. The property is located on East Rochester Way in Sidcup, Kent. The listing estate agent is Capital Estate Agents. The list price is £399,999.
Therefore, we give this property 7 / 10. *Disclaimer: This is our option and does constitute a recommendation or financial advice. Do your own research. *
- Price
- 8
- Condition
- 7
- Location
- 7
- Land
- 6
- Bedrooms
- 3
- Bathrooms
- 1
- Sqft (est)
- 984.00
The heatmap indicates the level of crime in the area. The color of the heatmap indicates the crime severity and recency.
Metrics Year-on-Year
- Average area value
- 396,111.00 £Decreased by 12.15 %
- Est sale value
- 391,632.00 £Decreased by 3.86 %
- Average area rental value
- 1,783.00 £/moDecreased by 6.60 %
- Est letting value
- 984.00 £/moUnchanged by 0.00 %
- Est rental Yield
- 5.40 %Increased by 6.30 %
- Crime Rate
- 2.00 %Unchanged by 0.00 %
Agent Activity
Capital Estate Agents created the listing.
Nearby Schools
| Name | Type | Ofsted | Distance |
|---|---|---|---|
| Days Lane Primary School | Academy Converter | Good | 0.71 KM |
| Bexley Grammar School | Academy Converter | 0.72 KM | |
| Danson Primary School | Community School | Good | 0.75 KM |
| Hook Lane Primary School | Academy Converter | 1.02 KM | |
| Falconwood & Welling Children'S Centre | Children's Centre Linked Site | 1.08 KM |
Images
Nearby Streets
| Name | Average Price | Average Sqft | Distance |
|---|---|---|---|
| Kent Avenue | £ 508,332 | 0 | 0.00 KM |
| Maple Crescent | £ 0 | 0 | 0.00 KM |
| Hawthorn Terrace | £ 0 | 0 | 0.00 KM |
| Newton Road | £ 660,000 | 0 | 0.00 KM |
| Lime Tree terrace | £ 0 | 0 | 0.00 KM |
Nearby Transport
| Name | NLC | TLC | Distance |
|---|---|---|---|
| Welling | 5128 | WLI | 1.34 KM |
| Sidcup | 5125 | SID | 2.11 KM |
| Falconwood | 5137 | FCN | 2.58 KM |
| Albany Park | 5132 | AYP | 3.28 KM |
| Bexleyheath | 5094 | BXH | 3.74 KM |
Nearby Listings
| Address | Price | Type | Score | Distance |
|---|---|---|---|---|
| East Rochester Way, Sidcup, Kent, DA15 | £ 399,999 | BUY | 7 / 10 | 0.00 KM |
| Sutherland Avenue, Welling | £ 475,000 | BUY | 6 / 10 | 0.09 KM |
| East Rochester Way, Sidcup, DA15 | £ 400,000 | BUY | 7 / 10 | 0.10 KM |
| East Rochester Way, Sidcup, Kent, DA15 | £ 410,000 | BUY | 6 / 10 | 0.10 KM |
| Lyndon Avenue, Sidcup, DA15 | £ 420,000 | BUY | 7 / 10 | 0.12 KM |
Nearby Properties
| Address | Price | Distance |
|---|---|---|
| 16 Lyndon Avenue | £ 345,000 | 0.09 KM |
| 12 Lyndon Avenue | £ 182,000 | 0.09 KM |
| 42 Lyndon Avenue | £ 360,000 | 0.09 KM |
| 54 Lyndon Avenue | £ 99,950 | 0.09 KM |
| 58 Lyndon Avenue | £ 455,000 | 0.09 KM |