Brockley Road, Kings Stanley
By TG Sales & Lettings
£ 350,000
Reviews
3 out of 5 stars
TG Sales & Lettings says ..
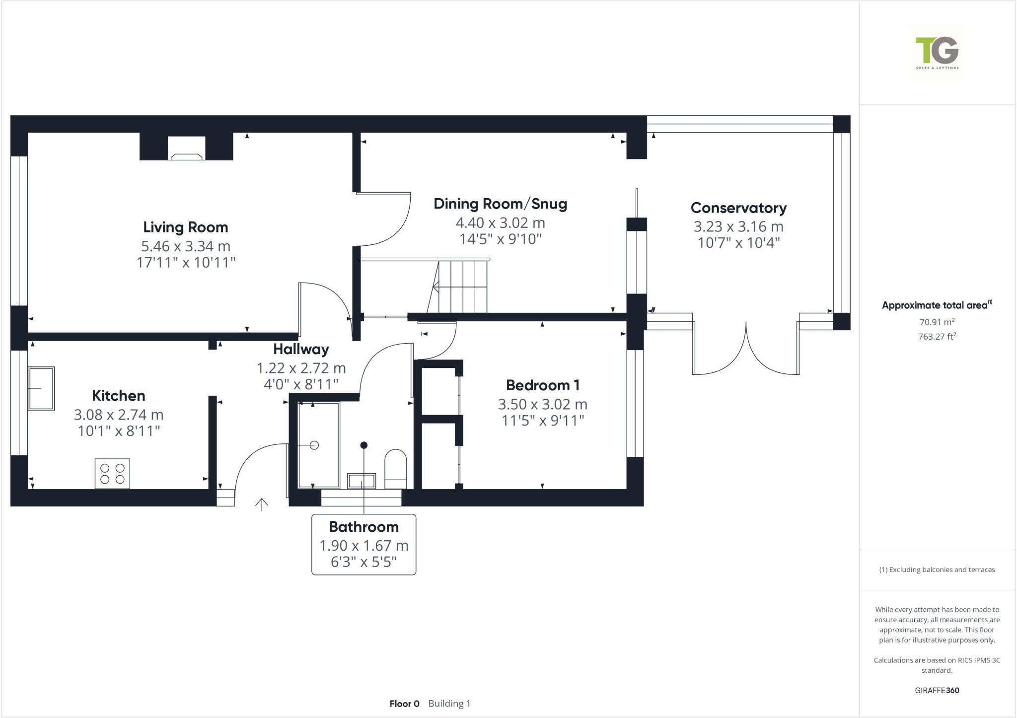
We are delighted to bring to the market this well presented 3-bedroom chalet style bungalow, set in the heart of the popular village of Kings Stanley, nestled below the Cotswold escarpment.Boasting wonderful ground floor living space including a sunny living room, dining room/snug, good size co...
Property Oracle says ..
This 3-bedroom chalet-style bungalow in Kings Stanley, Gloucestershire is presented to the market with a list price of £350,000. The property benefits from a good location within the village, reasonably close to well-regarded primary schools and a train station providing links to Stonehouse and beyond.
The property’s condition appears to be acceptable but some updating is likely needed. The kitchen and bathrooms appear functional but somewhat dated, while the interior décor could benefit from modernisation to suit contemporary tastes. The garden is a definite positive aspect of the property, offering outdoor space which is likely appealing to potential buyers.
The lack of precise plot size data in the listing makes a definitive assessment of value more challenging; however, comparing it to listed similar properties in the immediate area, the asking price seems competitively priced, though further analysis of comparable sold properties would improve the accuracy of this assessment. Overall, this bungalow presents a solid opportunity for buyers looking for a home in a convenient location with a garden, though potential buyers should budget for some renovations and updating.
Therefore, we give this property 6 / 10. *Disclaimer: This is our option and does constitute a recommendation or financial advice. Do your own research. *
- Price
- 7
- Condition
- 6
- Location
- 7
- Land
- 5
- Bedrooms
- 3
- Bathrooms
- 2
- Sqft (est)
- 763.27
The heatmap indicates the level of crime in the area. The color of the heatmap indicates the crime severity and recency.
Metrics Year-on-Year
- Average area value
- 251,538.00 £Increased by 21.55 %
- Est sale value
- 157,996.89 £Decreased by 4.17 %
- Average area rental value
- 754.00 £/moDecreased by 18.22 %
- Est letting value
- 0.00 £/mo
- Est rental Yield
- 3.60 %Decreased by 32.71 %
- Crime Rate
- 1.00 %Unchanged by 0.00 %
Agent Activity
TG Sales & Lettings created the listing.
Nearby Schools
| Name | Type | Ofsted | Distance |
|---|---|---|---|
| Leonard Stanley Church Of England Primary School | Voluntary Aided School | Good | 0.28 KM |
| King'S Stanley Cofe Primary School | Voluntary Controlled School | Good | 0.76 KM |
| Wycliffe College | Other Independent School | 1.23 KM | |
| Hopelands Preparatory School | Other Independent School | 1.33 KM | |
| Stonehouse Park Infant School | Community School | Good | 1.91 KM |
Images
Nearby Streets
| Name | Average Price | Average Sqft | Distance |
|---|---|---|---|
| St George's Avenue | £ 355,938 | 0 | 0.00 KM |
| Church Street | £ 400,000 | 0 | 0.00 KM |
| Sandford Close | £ 0 | 0 | 0.00 KM |
| Selwyn Close | £ 0 | 0 | 0.00 KM |
| Bath Leaze | £ 425,000 | 0 | 0.00 KM |
Nearby Transport
| Name | NLC | TLC | Distance |
|---|---|---|---|
| Stonehouse | 4770 | SHU | 1.47 KM |
| Stroud (Gloucs) | 4771 | STD | 6.65 KM |
| Cam And Dursley | 3238 | CDU | 9.09 KM |
Nearby Listings
| Address | Price | Type | Score | Distance |
|---|---|---|---|---|
| Brockley Road, Kings Stanley | £ 350,000 | BUY | 6 / 10 | 0.00 KM |
| Brimley, Leonard Stanley, Stonehouse, GL10 | £ 185,000 | BUY | 6 / 10 | 0.09 KM |
| Brockley Road, Leonard Stanley, Stonehouse, GL10 | £ 375,000 | BUY | 6 / 10 | 0.12 KM |
| Brockley Road, Leonard Stanley, Stonehouse | £ 325,000 | BUY | 5 / 10 | 0.12 KM |
| Brimley, Leonard Stanley, Stonehouse, Gloucestershire, GL10 | £ 300,000 | BUY | 5 / 10 | 0.25 KM |
Nearby Properties
| Address | Price | Distance |
|---|---|---|
| 25 Brockley Road | £ 195,000 | 0.01 KM |
| 36 Brockley Road | £ 260,000 | 0.01 KM |
| 11 Brockley Road | £ 244,975 | 0.01 KM |
| 37 Brockley Road | £ 205,000 | 0.01 KM |
| 20 Brockley Road | £ 220,000 | 0.01 KM |