Moel Famau View, Aigburth, Liverpool, L17
By Move Residential
£ 450,000
Reviews
3 out of 5 stars
Move Residential says ..
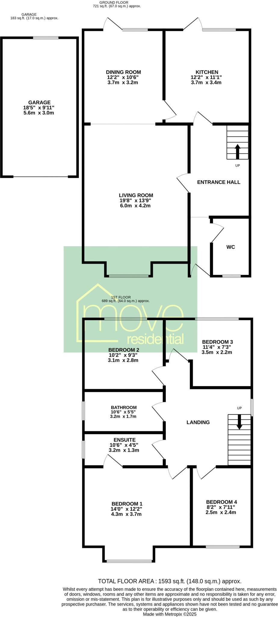
Arriving at the sales market courtesy of Move Residential is this impressive four bedroom detached residence, enjoying a prime position on Moel Famau View in the sought-after suburb of Aigburth, L17. Boasting an appealing frontage with generous and beautifully presented living proportions within...
Property Oracle says ..
Therefore, we give this property 7 / 10. *Disclaimer: This is our option and does constitute a recommendation or financial advice. Do your own research. *
- Price
- 7
- Condition
- 8
- Location
- 8
- Land
- 7
- Bedrooms
- 4
- Bathrooms
- 2
- Sqft (est)
- 1,236.67
The heatmap indicates the level of crime in the area. The color of the heatmap indicates the crime severity and recency.
Metrics Year-on-Year
- Average area value
- 234,977.00 £Increased by 10.88 %
- Est sale value
- 363,580.98 £Increased by 28.95 %
- Average area rental value
- 1,065.00 £/moDecreased by 1.11 %
- Est letting value
- 1,236.67 £/moUnchanged by 0.00 %
- Est rental Yield
- 5.44 %Decreased by 10.82 %
- Crime Rate
- 0.00 %
from 211,917.00 £
from 281,960.76 £
from 1,077.00 £/mo
from 1,236.67 £/mo
from 6.10 %
from 0.00 %
Agent Activity
Move Residential created the listing.
Nearby Schools
| Name | Type | Ofsted | Distance |
|---|---|---|---|
| St Michael-In-The-Hamlet Community Primary School | Community School | Good | 0.42 KM |
| St Charles' Catholic Primary School | Voluntary Aided School | Good | 0.55 KM |
| Auckland College | Other Independent School | Outstanding | 0.72 KM |
| King'S Leadership Academy, Liverpool | Academy Sponsor Led | Good | 0.83 KM |
| Aspire Centre, Kings Leadership Academy Liverpool | Free Schools Alternative Provision | 0.93 KM |
Images
Nearby Streets
| Name | Average Price | Average Sqft | Distance |
|---|---|---|---|
| Melly Road | £ 390,000 | 0 | 0.00 KM |
| Priory Close | £ 855,000 | 0 | 0.00 KM |
| St Michaels Road | £ 186,667 | 0 | 0.00 KM |
| Riverside Drive | £ 0 | 0 | 0.00 KM |
| Beech Avenue | £ 425,000 | 0 | 0.00 KM |
Nearby Transport
| Name | NLC | TLC | Distance |
|---|---|---|---|
| St Michaels | 2248 | STM | 0.24 KM |
| Brunswick | 3623 | BRW | 2.90 KM |
| Aigburth | 2255 | AIG | 2.90 KM |
| Edge Hill | 2169 | EDG | 3.26 KM |
| Mossley Hill | 2171 | MSH | 4.05 KM |
Nearby Listings
| Address | Price | Type | Score | Distance |
|---|---|---|---|---|
| Moel Famau View, Aigburth, Liverpool, L17 | £ 475,000 | BUY | 6 / 10 | 0.00 KM |
| Moel Famau View, Aigburth, Liverpool, L17 | £ 450,000 | BUY | 7 / 10 | 0.00 KM |
| Moel Famau View, Liverpool, L17 | £ 440,000 | BUY | 7 / 10 | 0.00 KM |
| Moel Famau View, Aigburth, Liverpool, L17 | £ 525,000 | BUY | 7 / 10 | 0.01 KM |
| Moel Famau View, Aigburth, L17 | £ 500,000 | BUY | 6 / 10 | 0.08 KM |
Nearby Properties
| Address | Price | Distance |
|---|---|---|
| 23 Moel Famau View | £ 220,000 | 0.01 KM |
| 15 Moel Famau View | £ 359,950 | 0.01 KM |
| 19 Moel Famau View | £ 290,000 | 0.01 KM |
| 14 Moel Famau View | £ 338,500 | 0.01 KM |
| 20 Moel Famau View | £ 265,000 | 0.01 KM |