Lodge Hill, Defford, WR8
By Jones & Associates
£ 495,000
Reviews
3 out of 5 stars
Jones & Associates says ..
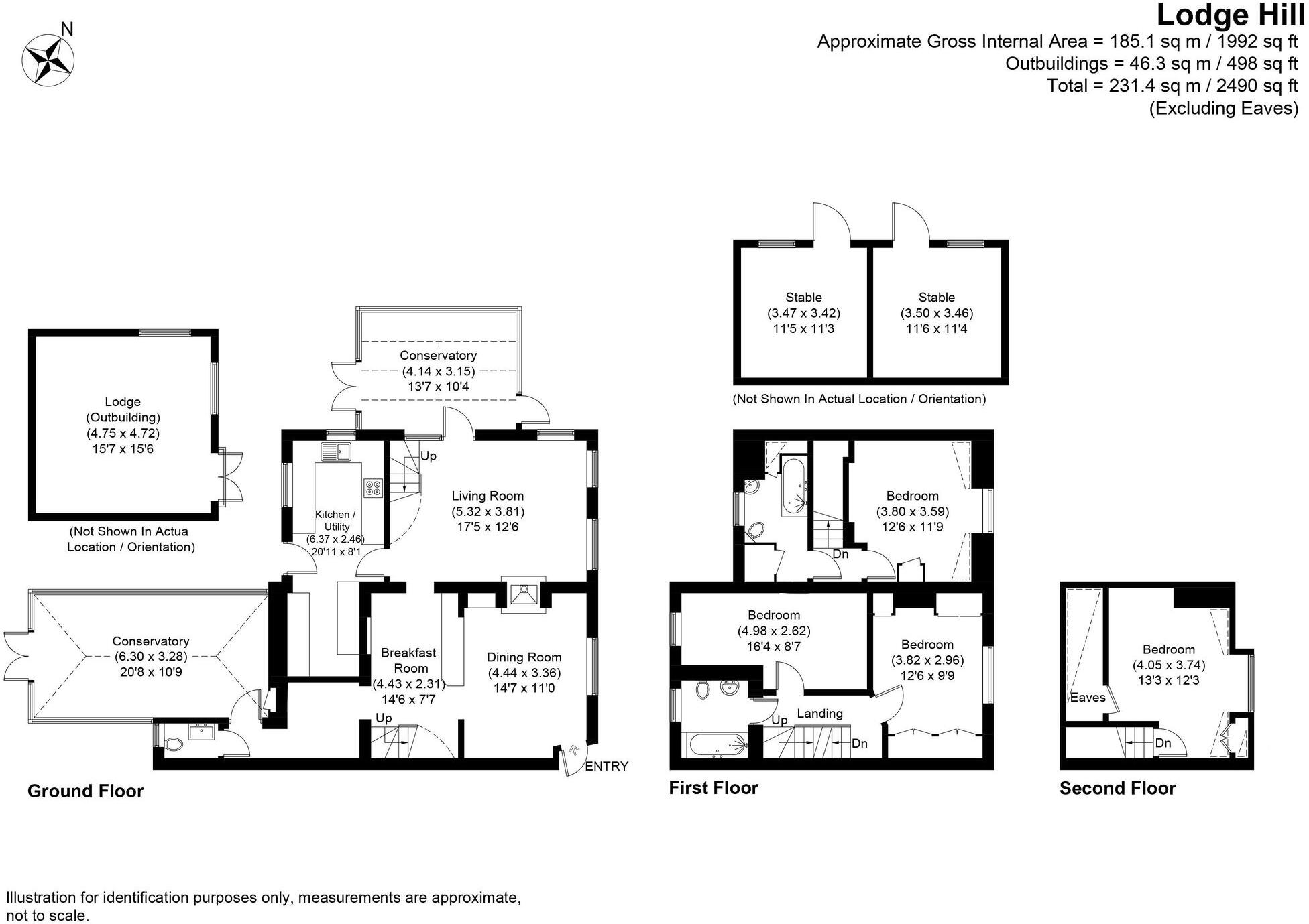
This property truly embodies the essence of "The Good Life” - A beautifully presented & characterful 4 bedroom semi-detached property situated on a 1.1 acre (approx.) plot with far-reaching countryside views to the east & west, a 15’7 x 15’6 wooden lodge and stable block, located on the e...
Property Oracle says ..
This property is located in Defford, Worcestershire, a village with a strong community feel and a range of amenities including a primary school and local shops. The property benefits from being close to the village of Pershore which offers a wider range of amenities and transport links. The property itself is a semi-detached house with a large plot of land, including a garden, orchard, and pond. The house appears to be in good condition, with a modern kitchen and conservatory. The list price is higher than the average price per square foot for the area, but this is likely due to the size of the plot and the desirable location. The property is well-maintained and offers a comfortable living space. The property would suit a family or those looking for a rural lifestyle with good access to local amenities and transport links.
Therefore, we give this property 7 / 10. *Disclaimer: This is our option and does constitute a recommendation or financial advice. Do your own research. *
- Price
- 6
- Condition
- 8
- Location
- 7
- Land
- 9
- Bedrooms
- 4
- Bathrooms
- 2
- Sqft (est)
- 4,140.35
- Lot (est)
- 2,490.00
The heatmap indicates the level of crime in the area. The color of the heatmap indicates the crime severity and recency.
Metrics Year-on-Year
- Average area value
- 228,000.00 £Increased by 7.96 %
- Est sale value
- 919,157.70 £Increased by 48.00 %
- Average area rental value
- 776.00 £/moDecreased by 23.55 %
- Est letting value
- 0.00 £/mo
- Est rental Yield
- 4.08 %Decreased by 29.29 %
- Crime Rate
- 26.00 %Unchanged by 0.00 %
Agent Activity
Jones & Associates marked this listing as sold.
Jones & Associates created the listing.
Nearby Schools
| Name | Type | Ofsted | Distance |
|---|---|---|---|
| Defford-Cum-Besford Cofe School | Voluntary Controlled School | Good | 0.49 KM |
| Eckington Cofe First School | Voluntary Controlled School | Good | 2.65 KM |
| Abbey Park Middle School | Community School | Requires improvement | 4.62 KM |
| Abbey Park First And Nursery School | Community School | Good | 4.62 KM |
| Blossom Vale Children'S Centre | Children's Centre | 4.62 KM |
Images
Nearby Streets
| Name | Average Price | Average Sqft | Distance |
|---|---|---|---|
| Spring Bank | £ 0 | 0 | 0.00 KM |
| Salters lane | £ 0 | 0 | 0.00 KM |
| Besford Court | £ 775,000 | 0 | 0.00 KM |
Nearby Transport
| Name | NLC | TLC | Distance |
|---|---|---|---|
| Pershore | 4887 | PSH | 6.72 KM |
| Worcestershire Parkway | 6580 | WOP | 8.34 KM |
Nearby Listings
| Address | Price | Type | Score | Distance |
|---|---|---|---|---|
| Lodge Hill, Defford, WR8 | £ 495,000 | BUY | 7 / 10 | 0.00 KM |
| Broad Hill, Defford | £ 1,250,000 | BUY | 8 / 10 | 0.33 KM |
| Upper Street, Defford, WR8 | £ 475,000 | BUY | 7 / 10 | 0.44 KM |
| Gresham, Upper Street, Defford, Worcester, Worcestershire | £ 515,000 | BUY | 6 / 10 | 0.44 KM |
| Upper Street, Defford, Worcester | £ 475,000 | BUY | 7 / 10 | 0.44 KM |
Nearby Properties
| Address | Price | Distance |
|---|---|---|
| The Lodge | £ 330,000 | 0.05 KM |
| Brickfields Cottage | £ 340,000 | 0.22 KM |
| 3 Box Tree Close | £ 565,000 | 0.45 KM |
| 9 Box Tree Close | £ 445,000 | 0.45 KM |
| 10 Box Tree Close | £ 370,000 | 0.45 KM |