Pettaugh Road, Stonham Aspal, Stowmarket, IP14
By Marks & Mann Estate Agents Ltd
£ 89,995
Reviews
3 out of 5 stars
Marks & Mann Estate Agents Ltd says ..
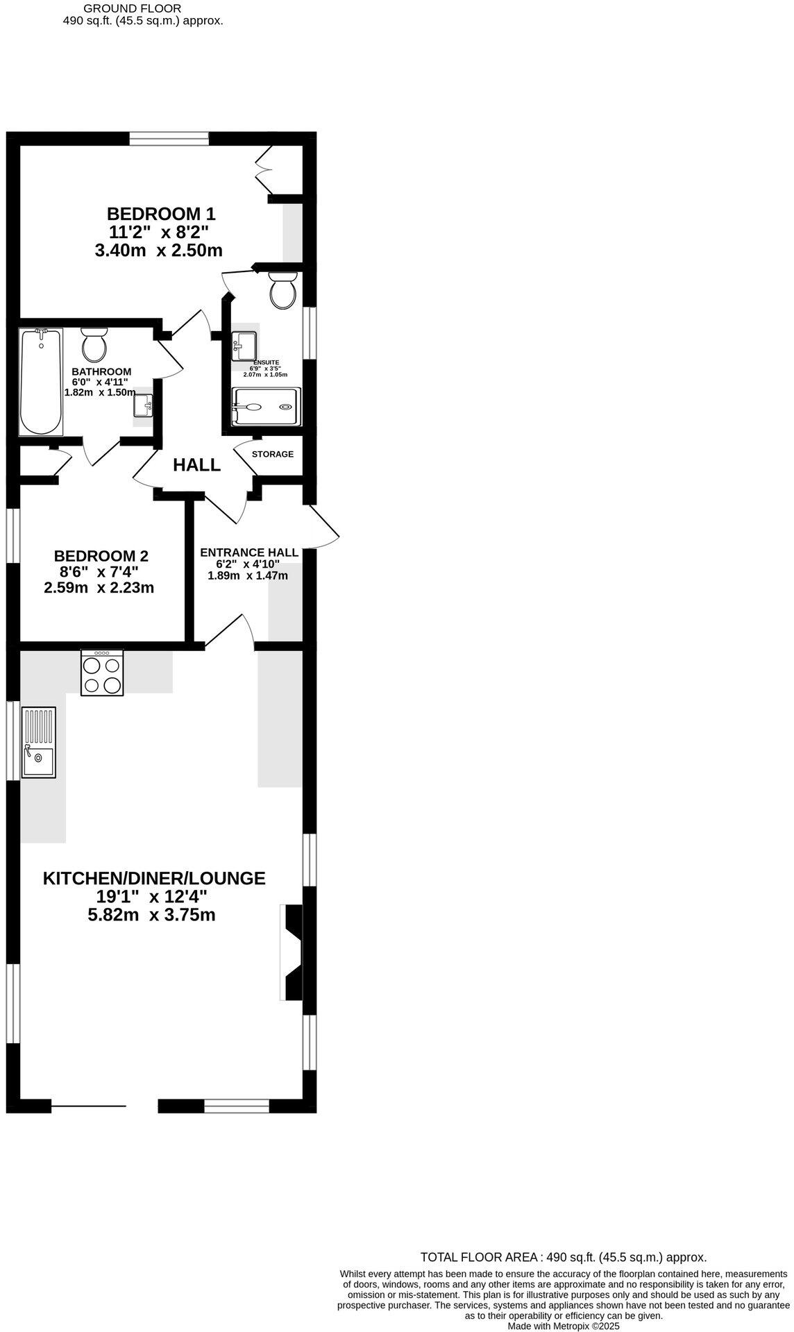
***NEW LODGE***41ft x 13ft; 6 berth; 2023 model; £89,995A fantastic HOLIDAY HOME OPPORTUNITY is available with this TWO BEDROOM DETACHED lodge, located conveniently within Stonham Barns offering a quiet living accommodation whilst also providing ON-SITE SHOPPING, DINING AND...
Property Oracle says ..
This is a modern lodge located in a rural setting in Stonham Aspal, Suffolk. The property features two bedrooms and two bathrooms, with a contemporary interior design. The lodge appears to be in excellent condition, suggesting it may be a new build or recently renovated. The location is somewhat isolated, being a few kilometers from the nearest primary school and other amenities. The property has minimal land, primarily consisting of gravel and limited greenery. The listing price of £89,995 seems competitive, especially when compared to the average property price in the area. This property would be ideal for individuals or couples seeking a modern, low-maintenance home in a quiet, rural environment. However, potential buyers should consider the limited land and distance to local amenities.
Therefore, we give this property 6 / 10. *Disclaimer: This is our option and does constitute a recommendation or financial advice. Do your own research. *
- Price
- 7
- Condition
- 9
- Location
- 5
- Land
- 3
- Bedrooms
- 2
- Bathrooms
- 2
- Sqft (est)
- 2,940.00
The heatmap indicates the level of crime in the area. The color of the heatmap indicates the crime severity and recency.
Metrics Year-on-Year
- Average area value
- 233,333.00 £Decreased by 24.27 %
- Est sale value
- 596,820.00 £Decreased by 34.52 %
- Average area rental value
- 895.00 £/moDecreased by 2.61 %
- Est letting value
- 0.00 £/mo
- Est rental Yield
- 4.60 %Increased by 28.49 %
- Crime Rate
- 0.00 %
Agent Activity
Marks & Mann Estate Agents Ltd created the listing.
Nearby Schools
| Name | Type | Ofsted | Distance |
|---|---|---|---|
| Stonham Aspal Church Of England Voluntary Aided Primary School | Voluntary Aided School | Good | 2.59 KM |
| Debenham High School | Academy Converter | 4.84 KM | |
| High Suffolk Children'S Centre | Children's Centre | 4.88 KM | |
| Sir Robert Hitcham Church Of England Voluntary Aided School | Voluntary Aided School | Requires improvement | 5.92 KM |
| Helmingham Primary School And Nursery | Academy Sponsor Led | 6.82 KM |
Images
Nearby Streets
| Name | Average Price | Average Sqft | Distance |
|---|---|---|---|
| Closed from 13/12/24 to 06/25, changed to private | £ 0 | 0 | 0.00 KM |
| Proposed new FP from 07/25, not yet open | £ 0 | 0 | 0.00 KM |
| Evergreen Close | £ 0 | 0 | 0.00 KM |
Nearby Listings
| Address | Price | Type | Score | Distance |
|---|---|---|---|---|
| Pettaugh Road, Stonham Aspal, Stowmarket, IP14 | £ 89,995 | BUY | 6 / 10 | 0.00 KM |
| Pettaugh Road, Stonham Aspal, Stowmarket, IP14 | £ 129,995 | BUY | 5 / 10 | 0.02 KM |
| Pettaugh Road, Stonham Aspal, Stowmarket, IP14 | £ 199,995 | BUY | 6 / 10 | 0.09 KM |
| Pettaugh Road, Stonham Aspal, Stowmarket, IP14 | £ 49,995 | BUY | 5 / 10 | 0.10 KM |
| Pettaugh Road, Stonham Aspal, Stowmarket, IP14 | £ 139,995 | BUY | 5 / 10 | 0.12 KM |
Nearby Properties
| Address | Price | Distance |
|---|---|---|
| The Willows | £ 640,000 | 0.41 KM |
| Manor Barn | £ 312,500 | 0.48 KM |
| Puddleduck Cottage | £ 712,000 | 0.48 KM |
| Cedar Lodge | £ 350,000 | 1.02 KM |
| 2 Church Road | £ 19,000 | 1.35 KM |