36 Southcote Lane, Reading, RG30
By Northwood Sales
£ 215,000
Reviews
3 out of 5 stars
Northwood Sales says ..
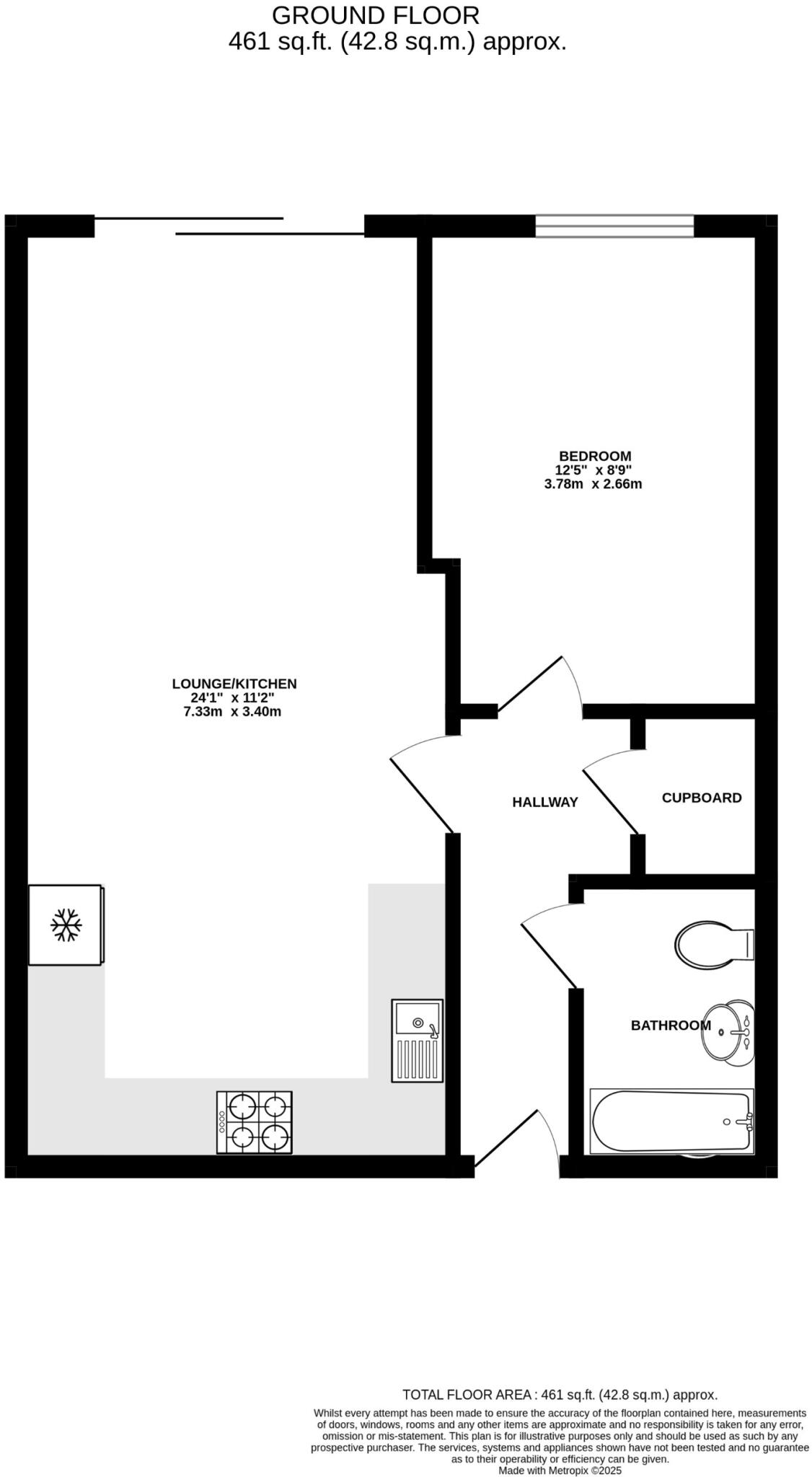
Northwood are pleased to offer to the market this well presented 1 bedroom apartment. Located on a popular development and offering good transport links to Reading town centre. The light and airy accommodation consists of entrance hall, spacious open plan kitchen/living room, double bedroom an...
Property Oracle says ..
This property is a one-bedroom apartment located in Southcote, Reading. The apartment appears to be in good condition and benefits from modern fixtures and fittings. The location is convenient, with several schools and transportation links nearby. While the plot size is relatively small at 461 sqft, the list price of £215,000 seems reasonable given the current market conditions in the area. The average price for properties in the area is £336,977, and the average price per sqft is £331. While there is a lack of information regarding the size of this specific property, nearby comparable properties suggest that the price is within the expected range. The property benefits from allocated parking.
Therefore, we give this property 6 / 10. *Disclaimer: This is our option and does constitute a recommendation or financial advice. Do your own research. *
- Price
- 7
- Condition
- 9
- Location
- 8
- Land
- 3
- Bedrooms
- 1
- Bathrooms
- 1
- Lot (est)
- 461.00
The heatmap indicates the level of crime in the area. The color of the heatmap indicates the crime severity and recency.
Metrics Year-on-Year
- Average area value
- 543,333.00 £Increased by 36.87 %
- Average area rental value
- 1,579.00 £/moDecreased by 11.74 %
- Est rental Yield
- 3.49 %Decreased by 35.49 %
- Crime Rate
- 0.00 %
Agent Activity
Northwood Sales created the listing.
Nearby Schools
| Name | Type | Ofsted | Distance |
|---|---|---|---|
| The Wren School | Free Schools | Good | 0.27 KM |
| Cranbury College | Academy Alternative Provision Converter | 0.66 KM | |
| St Edward'S Prep | Other Independent School | 0.70 KM | |
| Blessed Hugh Faringdon Catholic School | Voluntary Aided School | Good | 0.74 KM |
| Battle Primary Academy | Academy Sponsor Led | Good | 0.76 KM |
Images
Nearby Streets
| Name | Average Price | Average Sqft | Distance |
|---|---|---|---|
| Pineridge Gardens | £ 245,000 | 0 | 0.00 KM |
| Monck Court | £ 0 | 0 | 0.00 KM |
| Shire's Head Close | £ 0 | 0 | 0.00 KM |
| Bath Road Overbridge | £ 1,150,000 | 0 | 0.00 KM |
| North Lodge Mews | £ 0 | 0 | 0.00 KM |
Nearby Transport
| Name | NLC | TLC | Distance |
|---|---|---|---|
| Reading West | 3160 | RDW | 1.25 KM |
| Reading | 3149 | RDG | 3.13 KM |
| Tilehurst | 3154 | TLH | 4.49 KM |
| Theale | 3153 | THE | 8.69 KM |
| Earley | 5694 | EAR | 8.82 KM |
Nearby Listings
| Address | Price | Type | Score | Distance |
|---|---|---|---|---|
| 36 Southcote Lane, Reading, RG30 | £ 215,000 | BUY | 6 / 10 | 0.00 KM |
| Southcote Lane, Reading, Berkshire | £ 210,000 | BUY | 7 / 10 | 0.01 KM |
| Southcote Lane, Reading, Berkshire, RG30 | £ 200,000 | BUY | 6 / 10 | 0.01 KM |
| Priory Point, Southcote Lane, Reading | £ 300,000 | BUY | 7 / 10 | 0.01 KM |
| Priory Point, 36 Southcote Lane, Reading | £ 260,000 | BUY | 7 / 10 | 0.01 KM |
Nearby Properties
| Address | Price | Distance |
|---|---|---|
| 58 Southcote Lane | £ 477,500 | 0.10 KM |
| 37 Southcote Lane | £ 242,000 | 0.12 KM |
| 17a Southcote Lane | £ 352,000 | 0.12 KM |
| 55 Southcote Lane | £ 445,000 | 0.12 KM |
| 41 Southcote Lane | £ 367,000 | 0.12 KM |