The Property Shop says ..
The Property Shop is pleased to offer this beautifully maintained 4-bedroom, 2-bathroom townhouse in a peaceful residential neighborhood which offers a superb living experience with its carefully planned layout and modern finishes, designed to provide both comfort and convenience. The proper (cont.)
Property Oracle says ..
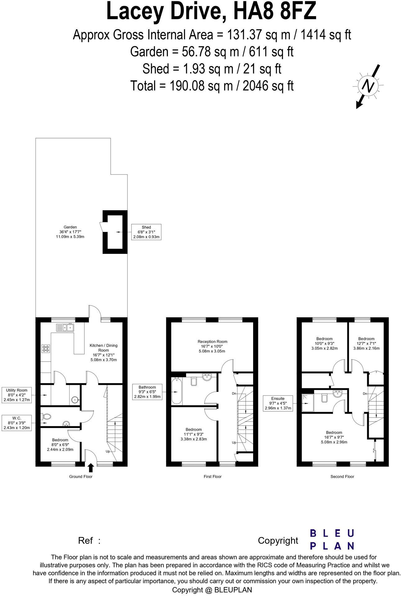
This is a modern terraced house located on Lacey Drive, Edgware. The property offers four bedrooms and two bathrooms, with a total square footage of 1,414 sqft and a plot size of 2,046 sqft. The house appears to be in good condition, featuring a modern kitchen and bathrooms. It also benefits from a garden, which is a desirable feature. The property is situated in a convenient location, with nearby schools and transportation links. The asking price of £699,995 seems reasonable given the property’s size, condition, and location within the Edgware area.
Therefore, we give this property 7 / 10. *Disclaimer: This is our option and does constitute a recommendation or financial advice. Do your own research. *
- Price
- 7
- Condition
- 8
- Location
- 7
- Land
- 6
- Bedrooms
- 4
- Bathrooms
- 2
- Sqft (est)
- 1,414.00
- Lot (est)
- 2,046.00
The heatmap indicates the level of crime in the area. The color of the heatmap indicates the crime severity and recency.
Metrics Year-on-Year
- Average area value
- 523,881.00 £Decreased by 13.55 %
- Est sale value
- 781,942.00 £Increased by 12.86 %
- Average area rental value
- 1,887.00 £/moDecreased by 11.95 %
- Est letting value
- 1,414.00 £/moUnchanged by 0.00 %
- Est rental Yield
- 4.32 %Increased by 1.89 %
- Crime Rate
- 7.00 %Unchanged by 0.00 %
Agent Activity
The Property Shop created the listing.
Nearby Schools
| Name | Type | Ofsted | Distance |
|---|---|---|---|
| London Academy | Academy Sponsor Led | Good | 0.36 KM |
| North London Collegiate School | Other Independent School | 0.90 KM | |
| Aylward Primary School | Academy Sponsor Led | Good | 0.94 KM |
| Tashbar Of Edgware | Other Independent School | Inadequate | 1.21 KM |
| Edgware Jewish Girls - Beis Chinuch | Other Independent School | Good | 1.64 KM |
Images
Nearby Streets
| Name | Average Price | Average Sqft | Distance |
|---|---|---|---|
| Branningan Way | £ 0 | 0 | 0.00 KM |
| Regents Court | £ 399,250 | 0 | 0.00 KM |
| Stonegrove Court | £ 0 | 0 | 0.00 KM |
| Barnes Close | £ 675,000 | 0 | 0.00 KM |
| Orchard Court | £ 314,667 | 0 | 0.00 KM |
Nearby Transport
| Name | NLC | TLC | Distance |
|---|---|---|---|
| Elstree And Borehamwood | 1542 | ELS | 3.79 KM |
| Mill Hill Broadway | 1527 | MIL | 4.51 KM |
| Kenton | 1399 | KNT | 5.26 KM |
| Harrow And Wealdstone | 1397 | HRW | 5.89 KM |
| South Kenton | 1453 | SOK | 5.96 KM |
Nearby Listings
| Address | Price | Type | Score | Distance |
|---|---|---|---|---|
| Lacey Drive, Edgware | £ 699,995 | BUY | 7 / 10 | 0.00 KM |
| Welford Court, Edgware, HA8 | £ 435,000 | BUY | 6 / 10 | 0.01 KM |
| Welford Court, Edgware Green, HA8 | £ 320,000 | BUY | 6 / 10 | 0.04 KM |
| Fry Lane, Edgware, HA8 | £ 650,000 | BUY | Unknown | 0.05 KM |
| Hallington Court, 6 Brannigan Way, Edgware, Greater London, HA8 | £ 325,000 | BUY | 6 / 10 | 0.07 KM |
Nearby Properties
| Address | Price | Distance |
|---|---|---|
| 25 Fry Lane | £ 690,000 | 0.09 KM |
| 23 Fry Lane | £ 600,000 | 0.09 KM |
| 24 Fry Lane | £ 593,000 | 0.09 KM |
| 1 Fry Lane | £ 650,000 | 0.09 KM |
| 125 Stonegrove | £ 525,000 | 0.17 KM |