GR
Sovereign Hall Caravan Park, Mossley, OL5
By Griffin Property Co.
£ 89,950
Reviews
4 out of 5 stars
Griffin Property Co. says ..
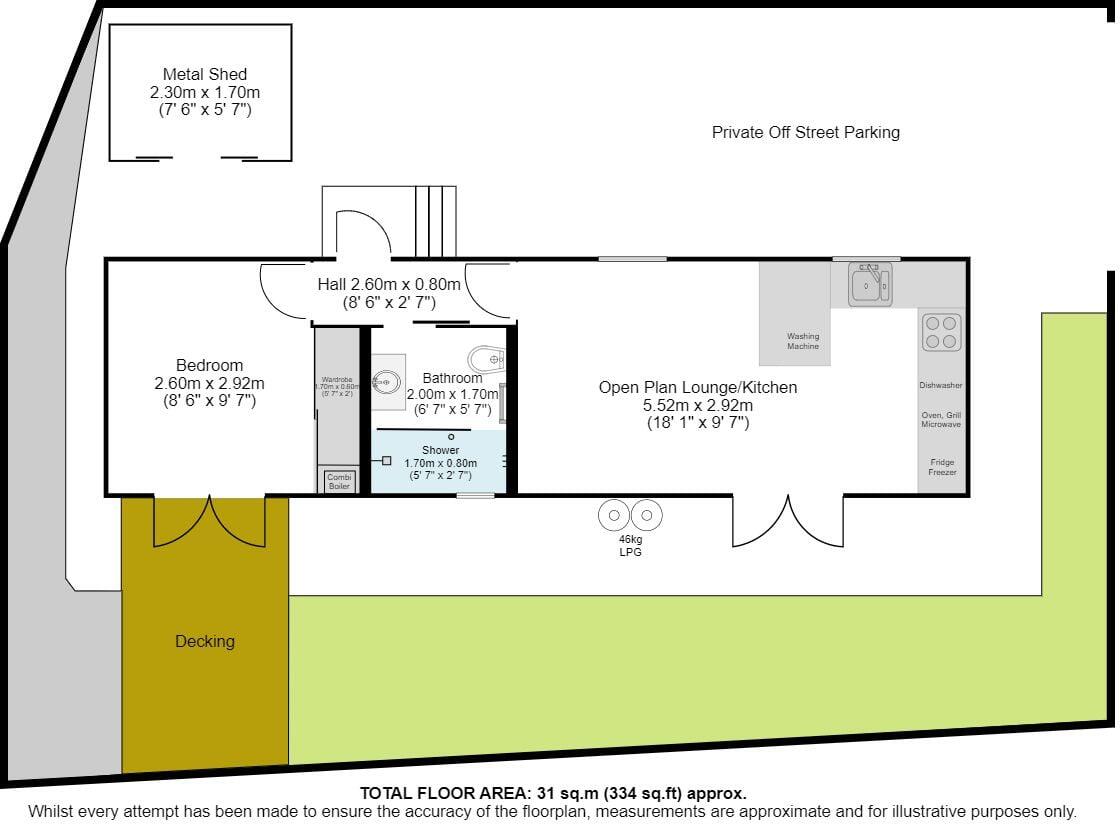
Offered for sale with NO VENDOR CHAIN and VACANT POSSESION on completion is this fabulous modernised Residential Park Home in Mossley. The Sunday Times Best Places to Live guide 2025, named Mossley as one of the seven regional winners for the North West. Off street private parking | Private pati
Property Oracle says ..
Therefore, we give this property 8 / 10. *Disclaimer: This is our option and does constitute a recommendation or financial advice. Do your own research. *
- Price
- 9
- Condition
- 9
- Location
- 7
- Land
- 7
- Bedrooms
- 1
- Bathrooms
- 1
- Sqft (est)
- 333.68
The heatmap indicates the level of crime in the area. The color of the heatmap indicates the crime severity and recency.
Metrics Year-on-Year
- Average area value
- 411,214.00 £Decreased by 39.25 %
- Est sale value
- 161,501.12 £Decreased by 21.81 %
- Average area rental value
- 1,876.00 £/moIncreased by 11.40 %
- Est letting value
- 667.36 £/moIncreased by 100.00 %
- Est rental Yield
- 5.47 %Increased by 82.94 %
- Crime Rate
- 0.00 %
from 676,899.00 £
from 206,547.92 £
from 1,684.00 £/mo
from 333.68 £/mo
from 2.99 %
from 0.00 %
Agent Activity
Griffin Property Co. created the listing.
Nearby Schools
| Name | Type | Ofsted | Distance |
|---|---|---|---|
| St George'S Cofe Primary School | Voluntary Aided School | Good | 0.16 KM |
| St Joseph'S Rc Primary School | Voluntary Aided School | Good | 0.55 KM |
| Livingstone Primary School | Community School | Good | 0.61 KM |
| Milton St John'S Cofe Primary School | Voluntary Controlled School | Good | 1.10 KM |
| Mossley Children'S Centre | Children's Centre Linked Site | 1.97 KM |
Images
Nearby Streets
| Name | Average Price | Average Sqft | Distance |
|---|---|---|---|
| Sovereign Hall Caravan Park | £ 0 | 0 | 0.00 KM |
| Waterton Avenue | £ 245,000 | 0 | 0.00 KM |
| Dean Street | £ 0 | 0 | 0.00 KM |
| The Crescent | £ 240,000 | 0 | 0.00 KM |
| Cross Street | £ 175,000 | 0 | 0.00 KM |
Nearby Transport
| Name | NLC | TLC | Distance |
|---|---|---|---|
| Mossley (Manchester) | 2903 | MSL | 0.96 KM |
| Stalybridge | 2983 | SYB | 3.99 KM |
| Greenfield | 2900 | GNF | 4.57 KM |
| Ashton-Under-Lyne | 2790 | AHN | 5.78 KM |
| Newton For Hyde | 2789 | NWN | 7.12 KM |
Nearby Listings
| Address | Price | Type | Score | Distance |
|---|---|---|---|---|
| Sovereign Hall Caravan Park, Mossley, OL5 | £ 89,950 | BUY | 8 / 10 | 0.00 KM |
| Chellow Dene, Mossley, OL5 | £ 360,000 | BUY | 8 / 10 | 0.11 KM |
| Chellow Dene, Mossley, Ashton-under-lyne, OL5 0NB | £ 360,000 | BUY | 7 / 10 | 0.11 KM |
| Chellow Dene, Mossley, OL5 | £ 400,000 | BUY | 8 / 10 | 0.11 KM |
| Chellow Dene, Mossley, Ashton-under-Lyne, Greater Manchester, OL5 | £ 360,000 | BUY | 7 / 10 | 0.12 KM |
Nearby Properties
| Address | Price | Distance |
|---|---|---|
| 3 Chellow Court | £ 530,000 | 0.09 KM |
| 2 Chellow Court | £ 362,000 | 0.10 KM |
| 29 Chellow Dene | £ 185,000 | 0.12 KM |
| 3 Chellow Dene | £ 215,000 | 0.12 KM |
| 7 Chellow Dene | £ 138,000 | 0.12 KM |