Holmesdale Road, Burgess Hill, RH15
By Harman Group
£ 440,000
Reviews
3 out of 5 stars
Harman Group says ..
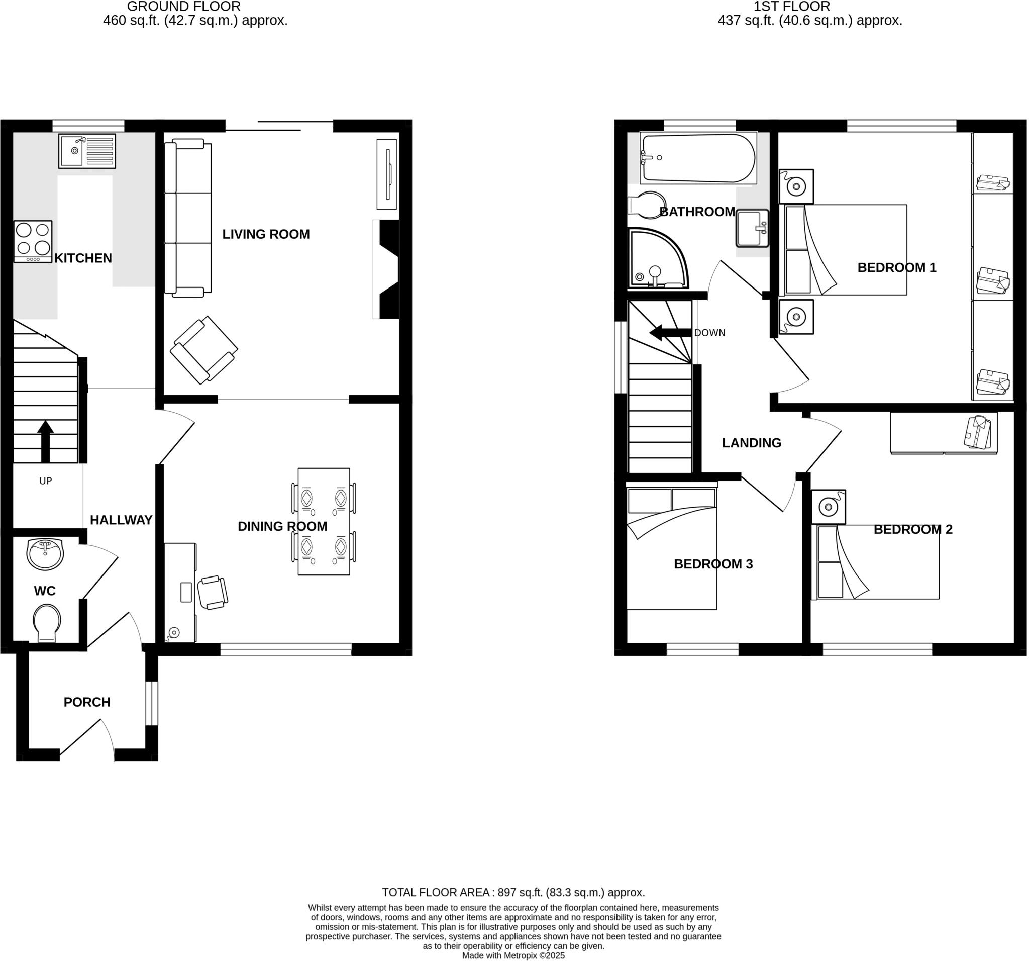
Located just half a mile from Burgess Hill Station and close to popular local schools, this spacious three-bedroom semi-detached home is ready for its next chapter. With bright interiors and a generous garden, it offers the perfect blend of comfort, convenience, and potential to make it your own.
Property Oracle says ..
The property is located in Burgess Hill, West Sussex, a town in the South East of England. The area benefits from relatively easy access to London and the south coast, making it attractive to commuters. The proximity to Burgess Hill railway station (approximately 1km away) is a significant positive, enhancing its appeal. Several schools are within a reasonable distance, including The Burgess Hill Academy and Woodlands Meed, both rated as ‘Good’ by Ofsted. This positive aspect of the location is further strengthened by the presence of other primary schools nearby.
Based on the provided photographs, the property appears to be in generally good condition. While some minor cosmetic updates might enhance its presentation, there are no obvious signs of significant structural issues or the need for extensive renovations. The interior looks clean and well-maintained, suggesting that the property is habitable and in a reasonable state of repair.
The property includes a garden with a decked area, offering outdoor space. The size of the garden (897 sq ft) is modest but provides a usable area for relaxation or entertaining.
Considering the list price of £440,000, the average price in the area (£586,429), and the average price per square foot (£457), the property seems reasonably priced. While the average house price in the area is higher, the property’s slightly smaller size and the absence of information suggesting exceptional features may justify the lower asking price. The comparable properties on Holmesdale Road, while lacking precise square footage data, also support the notion that the list price is within the expected range for the area. The lower prices of some nearby properties may reflect differences in size, condition, or features.
Therefore, we give this property 7 / 10. *Disclaimer: This is our option and does constitute a recommendation or financial advice. Do your own research. *
- Price
- 7
- Condition
- 7
- Location
- 8
- Land
- 6
- Bedrooms
- 3
- Bathrooms
- 1
- Sqft (est)
- 997.00
- Lot (est)
- 897.00
The heatmap indicates the level of crime in the area. The color of the heatmap indicates the crime severity and recency.
Metrics Year-on-Year
- Average area value
- 318,000.00 £Decreased by 21.24 %
- Est sale value
- 447,653.00 £Increased by 2.28 %
- Average area rental value
- 1,158.00 £/moDecreased by 17.52 %
- Est letting value
- 997.00 £/moUnchanged by 0.00 %
- Est rental Yield
- 4.37 %Increased by 4.80 %
- Crime Rate
- 4.00 %Unchanged by 0.00 %
Agent Activity
Harman Group created the listing.
Nearby Schools
| Name | Type | Ofsted | Distance |
|---|---|---|---|
| London Meed Community Primary School | Community School | Requires improvement | 0.28 KM |
| Woodlands Meed | Foundation Special School | Good | 0.31 KM |
| The Burgess Hill Academy | Academy Sponsor Led | Good | 0.42 KM |
| St Wilfrid'S Catholic Primary School, Burgess Hill | Voluntary Aided School | Good | 0.69 KM |
| Burgess Hill Girls | Other Independent School | 1.20 KM |
Images
Nearby Streets
| Name | Average Price | Average Sqft | Distance |
|---|---|---|---|
| School Close to The Brow | £ 257,500 | 0 | 0.00 KM |
| School Close | £ 0 | 0 | 0.00 KM |
| Orchard Way | £ 450,000 | 0 | 0.00 KM |
| Station Approach | £ 0 | 0 | 0.00 KM |
| Middle Way | £ 272,500 | 0 | 0.00 KM |
Nearby Transport
| Name | NLC | TLC | Distance |
|---|---|---|---|
| Burgess Hill | 5483 | BUG | 1.04 KM |
| Wivelsfield | 5341 | WVF | 2.36 KM |
| Hassocks | 5489 | HSK | 2.96 KM |
| Haywards Heath | 5490 | HHE | 7.14 KM |
| Plumpton | 5332 | PMP | 8.65 KM |
Nearby Listings
| Address | Price | Type | Score | Distance |
|---|---|---|---|---|
| Holmesdale Road, Burgess Hill, RH15 | £ 440,000 | BUY | 7 / 10 | 0.00 KM |
| Holmesdale Road, Burgess Hill, West Sussex, RH15 | £ 425,000 | BUY | 7 / 10 | 0.08 KM |
| Holmesdale Road, Burgess Hill, West Sussex, RH15 | £ 410,000 | BUY | 7 / 10 | 0.08 KM |
| Holmesdale Road, Burgess Hill, West Sussex, RH15 | £ 500,000 | BUY | 6 / 10 | 0.10 KM |
| Woodcrest Road, Burgess Hill, RH15 | £ 400,000 | BUY | 6 / 10 | 0.17 KM |
Nearby Properties
| Address | Price | Distance |
|---|---|---|
| 58 Holmesdale Road | £ 232,000 | 0.07 KM |
| 34 Holmesdale Road | £ 263,000 | 0.07 KM |
| 54 Holmesdale Road | £ 250,000 | 0.07 KM |
| 16 Holmesdale Road | £ 79,000 | 0.07 KM |
| 8 Holmesdale Road | £ 362,000 | 0.07 KM |