Dwell & Co says ..
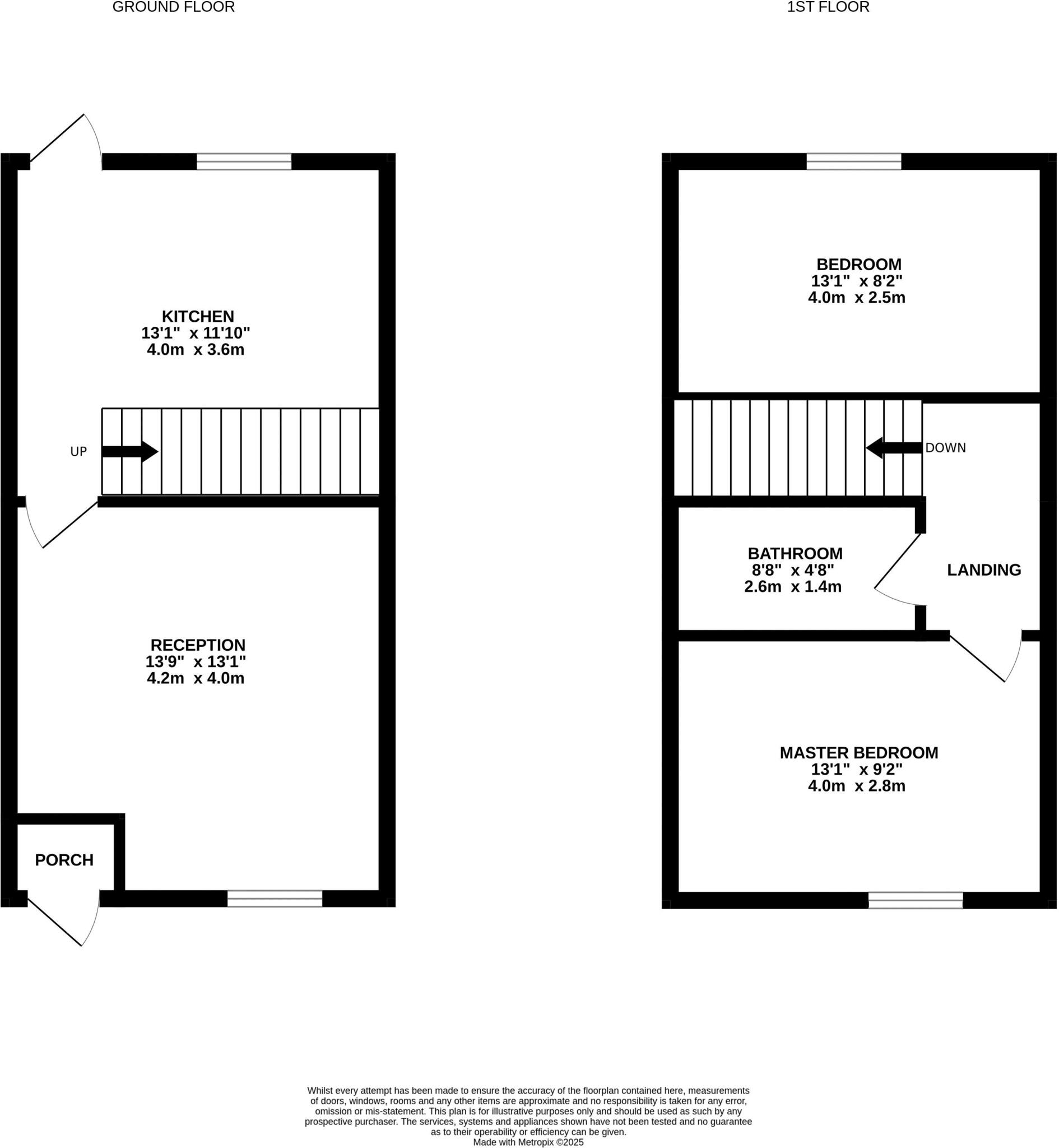
*OFFERED FOR SALE WITH NO ONWARD CHAIN* This traditional two-bedroom mid-terrace property is ideal for first time buyers or buy to let investors alike. The accommodation briefly comprises: entrance vestibule, lounge and kitchen to the ground floor. To the first floor are two good-sized bedroo...
Property Oracle says ..
This is a two-bedroom terraced house located in Astley Bridge, Bolton. The property offers a mix of updated and original features. The kitchen and bathroom have been modernised, while other areas of the house would benefit from some cosmetic improvements. The property includes a small rear yard. The location is suitable for families, with schools nearby, but it is further from major transportation links. The price is slightly above the average for the area, considering the condition and size of the property.
Therefore, we give this property 5 / 10. *Disclaimer: This is our option and does constitute a recommendation or financial advice. Do your own research. *
- Price
- 7
- Condition
- 5
- Location
- 6
- Land
- 4
- Bedrooms
- 2
- Bathrooms
- 1
- Sqft (est)
- 603.21
The heatmap indicates the level of crime in the area. The color of the heatmap indicates the crime severity and recency.
Metrics Year-on-Year
- Average area value
- 210,714.00 £Decreased by 13.37 %
- Est sale value
- 119,435.58 £Increased by 8.20 %
- Average area rental value
- 907.00 £/moDecreased by 9.21 %
- Est letting value
- 0.00 £/mo
- Est rental Yield
- 5.17 %Increased by 4.87 %
- Crime Rate
- 13.00 %Unchanged by 0.00 %
Agent Activity
Dwell & Co created the listing.
Nearby Schools
| Name | Type | Ofsted | Distance |
|---|---|---|---|
| Holy Infant And St Anthony Rc Primary School | Voluntary Aided School | Good | 0.19 KM |
| Oldhams Start Well Link Site | Children's Centre Linked Site | 0.21 KM | |
| High Lawn Primary School | Community School | Good | 0.62 KM |
| Thornleigh Salesian College | Voluntary Aided School | Good | 0.82 KM |
| St Paul'S Cofe Primary School, Astley Bridge | Academy Converter | Outstanding | 0.83 KM |
Images
Nearby Streets
| Name | Average Price | Average Sqft | Distance |
|---|---|---|---|
| Mitre Street | £ 0 | 0 | 0.00 KM |
| Back Maxwell Street | £ 0 | 0 | 0.00 KM |
| Back Mackenzie Street | £ 0 | 0 | 0.00 KM |
| Back Ivy Bank Road | £ 0 | 0 | 0.00 KM |
| Yew Tree Close | £ 0 | 0 | 0.00 KM |
Nearby Transport
| Name | NLC | TLC | Distance |
|---|---|---|---|
| Hall-I'-Th'-Wood | 2572 | HID | 2.72 KM |
| Bromley Cross (Lancs) | 2697 | BMC | 3.07 KM |
| Bolton | 2599 | BON | 3.54 KM |
| Entwistle | 2747 | ENT | 6.28 KM |
| Moses Gate | 2606 | MSS | 6.63 KM |
Nearby Listings
| Address | Price | Type | Score | Distance |
|---|---|---|---|---|
| Hamilton Street, Bolton | £ 125,000 | BUY | 5 / 10 | 0.00 KM |
| Hamilton Street, Bolton, BL1 | £ 130,000 | BUY | Unknown | 0.00 KM |
| Hamilton Street, Astley Bridge | £ 89,950 | BUY | 6 / 10 | 0.01 KM |
| Drysdale View, Bolton, BL1 | £ 250,000 | BUY | Unknown | 0.09 KM |
| Arundel Street, Astley Bridge, Bolton, BL1 6RL | £ 112,500 | BUY | 5 / 10 | 0.09 KM |
Nearby Properties
| Address | Price | Distance |
|---|---|---|
| 28 Hamilton Street | £ 36,000 | 0.01 KM |
| 18 Hamilton Street | £ 32,995 | 0.01 KM |
| 34 Hamilton Street | £ 85,000 | 0.01 KM |
| 22 Hamilton Street | £ 90,000 | 0.01 KM |
| 20 Hamilton Street | £ 38,000 | 0.01 KM |