PE
Riglands Way, Renfrew, PA4
By Penny Lane Homes
£ 130,000
Reviews
3 out of 5 stars
Penny Lane Homes says ..
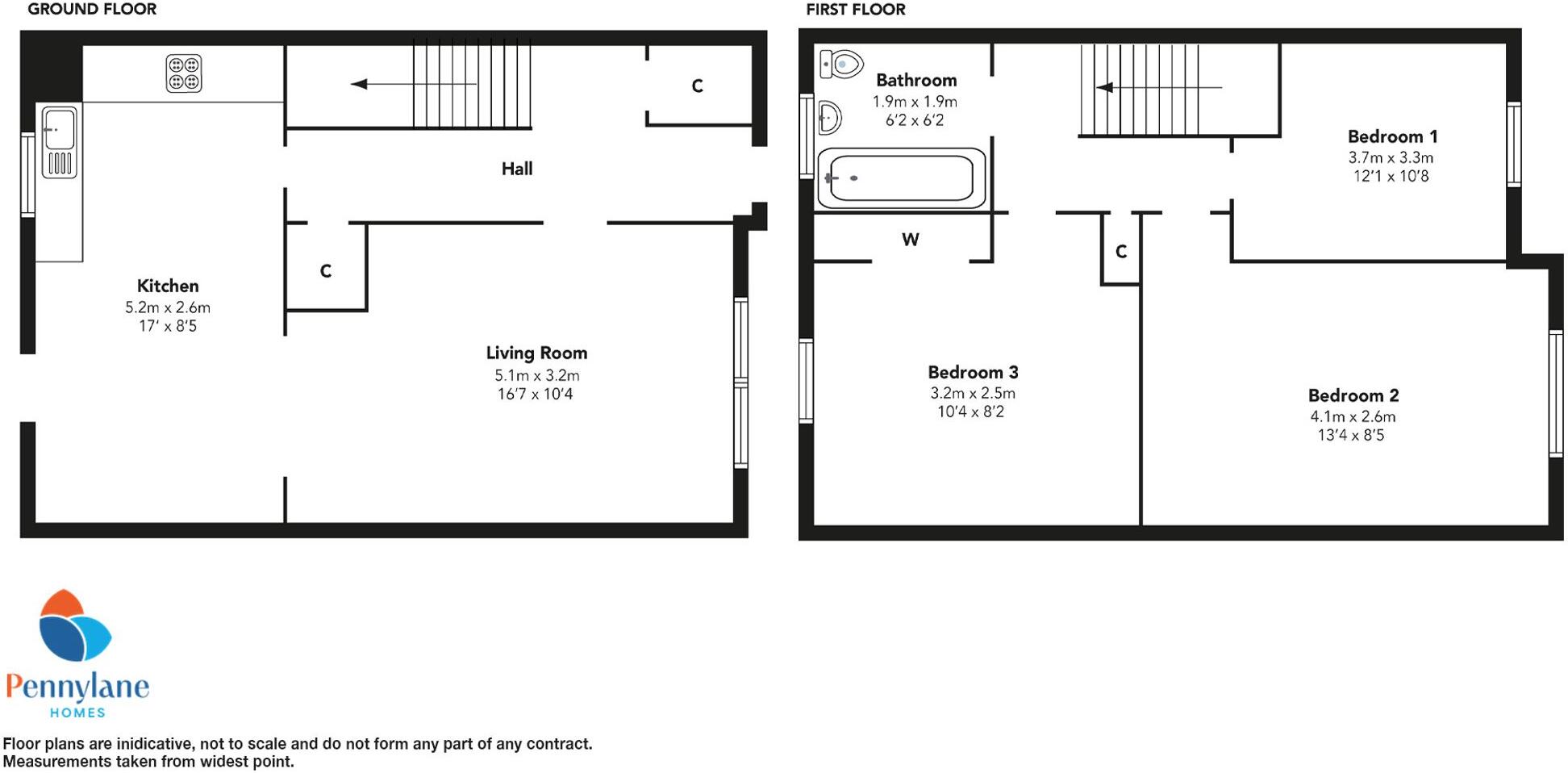
A well appointed three bedroom, mid terraced villa within dining kitchen and private gardens set alongside Robertson Park.
Property Oracle says ..
Therefore, we give this property 6 / 10. *Disclaimer: This is our option and does constitute a recommendation or financial advice. Do your own research. *
- Price
- 8
- Condition
- 5
- Location
- 6
- Land
- 6
- Bedrooms
- 3
- Bathrooms
- 1
The heatmap indicates the level of crime in the area. The color of the heatmap indicates the crime severity and recency.
Metrics Year-on-Year
- Average area value
- 171,783.00 £Decreased by 1.84 %
- Average area rental value
- 903.00 £/moDecreased by 1.42 %
- Est rental Yield
- 6.31 %Increased by 0.48 %
- Crime Rate
- 0.00 %
from 175,005.00 £
from 916.00 £/mo
from 6.28 %
from 0.00 %
Agent Activity
Penny Lane Homes created the listing.
Images
Nearby Streets
| Name | Average Price | Average Sqft | Distance |
|---|---|---|---|
| Murray Street | £ 0 | 0 | 0.00 KM |
| Albert Drive | £ 0 | 0 | 0.00 KM |
| Creran Drive | £ 0 | 0 | 0.00 KM |
| Brown Street South | £ 0 | 0 | 0.00 KM |
| Ferguson Street | £ 0 | 0 | 0.00 KM |
Nearby Transport
| Name | NLC | TLC | Distance |
|---|---|---|---|
| Yoker | 9990 | YOK | 2.09 KM |
| Clydebank | 9855 | CYK | 2.79 KM |
| Drumry | 9993 | DMY | 3.32 KM |
| Singer | 9988 | SIN | 3.56 KM |
| Hillington West | 9630 | HLW | 3.60 KM |
Nearby Listings
| Address | Price | Type | Score | Distance |
|---|---|---|---|---|
| Riglands Way, Renfrew, PA4 | £ 130,000 | BUY | 6 / 10 | 0.00 KM |
| Craigielea Road, Renfrew | £ 90,000 | BUY | 6 / 10 | 0.14 KM |
| Craigielea Road, Renfrew, Renfrewshire, PA4 | £ 64,995 | BUY | 6 / 10 | 0.14 KM |
| Craigielea Road, Renfrew, PA4 | £ 120,000 | BUY | 6 / 10 | 0.18 KM |
| Riglands Way, Renfrew, PA4 | £ 80,000 | BUY | 6 / 10 | 0.21 KM |