CH
Rudland Close, Thatcham, Berkshire, RG19, RG19
By Chancellors
£ 350,000
Reviews
3 out of 5 stars
Chancellors says ..
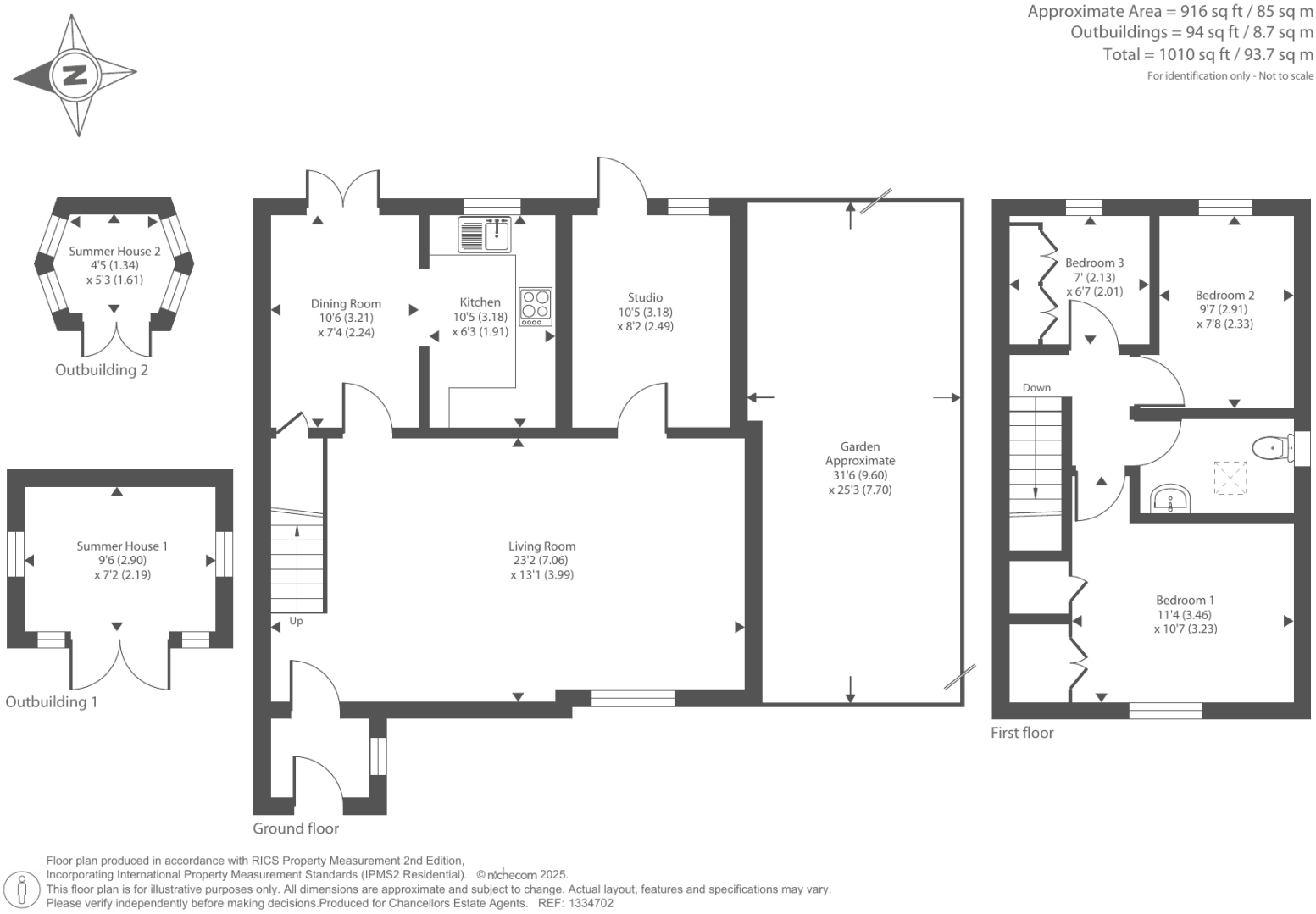
A well-presented 3-bedroom semi with a family bathroom and driveway for two cars. Includes a versatile craft room downstairs. The garden features an insulated outbuilding with heating and electricity — perfect as a workshop or studio. Great family home with extra space to suit your needs.
Property Oracle says ..
Therefore, we give this property 7 / 10. *Disclaimer: This is our option and does constitute a recommendation or financial advice. Do your own research. *
- Price
- 8
- Condition
- 6
- Location
- 7
- Land
- 7
- Bedrooms
- 3
- Bathrooms
- 1
The heatmap indicates the level of crime in the area. The color of the heatmap indicates the crime severity and recency.
Metrics Year-on-Year
- Average area value
- 525,000.00 £Increased by 70.84 %
- Average area rental value
- 1,050.00 £/moDecreased by 53.02 %
- Est rental Yield
- 2.40 %Decreased by 72.51 %
- Crime Rate
- 6.00 %Unchanged by 0.00 %
from 307,297.00 £
from 2,235.00 £/mo
from 8.73 %
from 6.00 %
Agent Activity
Chancellors created the listing.
Nearby Schools
| Name | Type | Ofsted | Distance |
|---|---|---|---|
| Spurcroft Primary School | Community School | Good | 0.45 KM |
| Kennet School | Academy Converter | Outstanding | 1.21 KM |
| Thatcham Park Cofe Primary | Voluntary Controlled School | Good | 1.27 KM |
| Central Family Hub - Thatcham | Children's Centre | 1.55 KM | |
| Francis Baily Primary School | Academy Converter | 1.56 KM |
Images
Nearby Streets
| Name | Average Price | Average Sqft | Distance |
|---|---|---|---|
| Oak Tree Road | £ 435,000 | 0 | 0.00 KM |
| Bluecoats | £ 254,000 | 0 | 0.00 KM |
| Coombe Square | £ 369,950 | 0 | 0.00 KM |
| Monkey Marsh Swing Bridge | £ 0 | 0 | 0.00 KM |
| Tudor Court | £ 0 | 0 | 0.00 KM |
Nearby Transport
| Name | NLC | TLC | Distance |
|---|---|---|---|
| Thatcham | 3152 | THA | 1.66 KM |
| Newbury Racecourse | 3071 | NRC | 5.51 KM |
| Newbury | 3074 | NBY | 7.17 KM |
| Midgham | 3159 | MDG | 8.88 KM |
Nearby Listings
| Address | Price | Type | Score | Distance |
|---|---|---|---|---|
| Thatcham, Berkshire, RG19 | £ 225,000 | BUY | 5 / 10 | 0.00 KM |
| Rudland Close, Thatcham, Berkshire, RG19, RG19 | £ 350,000 | BUY | 7 / 10 | 0.00 KM |
| Braemore Close, Thatcham, Berkshire, RG19 | £ 290,000 | BUY | 7 / 10 | 0.01 KM |
| RUDLAND CLOSE, THATCHAM | £ 300,000 | BUY | 6 / 10 | 0.06 KM |
| Braemore Close, Thatcham, RG19 | £ 275,000 | BUY | 6 / 10 | 0.07 KM |
Nearby Properties
| Address | Price | Distance |
|---|---|---|
| 211 Urquhart Road | £ 289,950 | 0.06 KM |
| 203 Urquhart Road | £ 320,000 | 0.06 KM |
| 20 Rudland Close | £ 88,000 | 0.07 KM |
| 17 Rudland Close | £ 350,000 | 0.07 KM |
| 32 Rudland Close | £ 179,950 | 0.07 KM |