Hudson Moody says ..
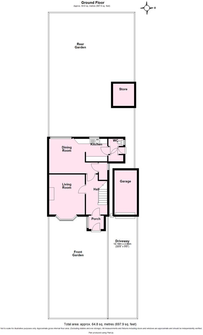
RENOVATION PROJECT, BURSTING WITH POTENTIAL!! Askham Lane is an attractive tree lined road situated in the area of Acomb. Here you will find this spacious traditional semi-detached house that requires a programme of renovation, yet offers tremendous potential to create a delightful family ...
Property Oracle says ..
Therefore, we give this property 6 / 10. *Disclaimer: This is our option and does constitute a recommendation or financial advice. Do your own research. *
- Price
- 7
- Condition
- 4
- Location
- 7
- Land
- 6
- Bedrooms
- 3
- Bathrooms
- 1
- Sqft (est)
- 669.19
The heatmap indicates the level of crime in the area. The color of the heatmap indicates the crime severity and recency.
Metrics Year-on-Year
- Average area value
- 282,914.00 £Increased by 0.69 %
- Est sale value
- 230,870.55 £Increased by 15.77 %
- Average area rental value
- 1,047.00 £/moDecreased by 2.70 %
- Est letting value
- 669.19 £/moUnchanged by 0.00 %
- Est rental Yield
- 4.44 %Decreased by 3.48 %
- Crime Rate
- 0.00 %
from 280,978.00 £
from 199,418.62 £
from 1,076.00 £/mo
from 669.19 £/mo
from 4.60 %
from 0.00 %
Agent Activity
Hudson Moody created the listing.
Nearby Schools
| Name | Type | Ofsted | Distance |
|---|---|---|---|
| Westfield Children'S Centre | Children's Centre | 0.03 KM | |
| Westfield Primary Community School | Community School | Good | 0.26 KM |
| York High School | Academy Sponsor Led | 0.83 KM | |
| Carr Infant School | Community School | Good | 1.72 KM |
| Carr Junior School | Academy Converter | 1.76 KM |
Images
Nearby Streets
| Name | Average Price | Average Sqft | Distance |
|---|---|---|---|
| Croft Way | £ 0 | 0 | 0.00 KM |
| Meeting House Lane | £ 0 | 0 | 0.00 KM |
| St Anthony Court | £ 0 | 0 | 0.00 KM |
| Vyner House | £ 0 | 0 | 0.00 KM |
| Rosemary Road | £ 356,412 | 0 | 0.00 KM |
Nearby Transport
| Name | NLC | TLC | Distance |
|---|---|---|---|
| Poppleton | 8254 | POP | 3.12 KM |
| York | 8263 | YRK | 4.92 KM |
Nearby Listings
| Address | Price | Type | Score | Distance |
|---|---|---|---|---|
| Askham Lane, York. YO24 3HP | £ 250,000 | BUY | 6 / 10 | 0.00 KM |
| Askham Lane, York, YO24 3HP | £ 350,000 | BUY | 7 / 10 | 0.03 KM |
| Askham Lane, York | £ 260,000 | BUY | 6 / 10 | 0.07 KM |
| Askham Lane, York, YO24 | £ 275,000 | BUY | 6 / 10 | 0.09 KM |
| Askham Lane, Acomb, YO24 | £ 465,000 | BUY | Unknown | 0.13 KM |
Nearby Properties
| Address | Price | Distance |
|---|---|---|
| 80 Askham Lane | £ 168,000 | 0.04 KM |
| 72 Askham Lane | £ 280,000 | 0.04 KM |
| 96 Askham Lane | £ 198,000 | 0.04 KM |
| 122 Askham Lane | £ 305,000 | 0.04 KM |
| 86 Askham Lane | £ 232,000 | 0.04 KM |