Moveli says ..
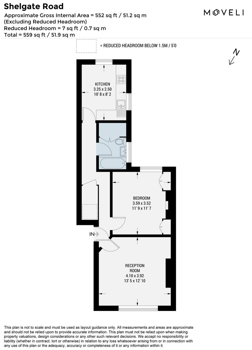
A very large one bedroom flat on one of the most highly sought-after roads ‘Between the Commons’. The property measures 559 sq ft / 51.9 sq m and is in good condition throughout. No Chain / share of freehold
Property Oracle says ..
Therefore, we give this property 6 / 10. *Disclaimer: This is our option and does constitute a recommendation or financial advice. Do your own research. *
- Price
- 7
- Condition
- 6
- Location
- 8
- Land
- 3
- Bedrooms
- 1
- Bathrooms
- 1
- Sqft (est)
- 559.00
The heatmap indicates the level of crime in the area. The color of the heatmap indicates the crime severity and recency.
Metrics Year-on-Year
- Average area value
- 939,476.00 £Decreased by 7.90 %
- Est sale value
- 529,932.00 £Increased by 7.73 %
- Average area rental value
- 3,276.00 £/moIncreased by 16.67 %
- Est letting value
- 1,677.00 £/moIncreased by 50.00 %
- Est rental Yield
- 4.18 %Increased by 26.67 %
- Crime Rate
- 5.00 %Unchanged by 0.00 %
from 1,020,087.00 £
from 491,920.00 £
from 2,808.00 £/mo
from 1,118.00 £/mo
from 3.30 %
from 5.00 %
Agent Activity
Moveli created the listing.
Nearby Schools
| Name | Type | Ofsted | Distance |
|---|---|---|---|
| Belleville Primary School | Academy Converter | 0.28 KM | |
| Dolphin School (Incorporating Noahs Ark Nursery Schools) | Other Independent School | 0.29 KM | |
| Ark Bolingbroke Academy | Free Schools | Good | 0.54 KM |
| Honeywell Junior School | Foundation School | Outstanding | 0.56 KM |
| Honeywell Infant School | Foundation School | Outstanding | 0.56 KM |
Images
Nearby Streets
| Name | Average Price | Average Sqft | Distance |
|---|---|---|---|
| Cairns Road | £ 818,750 | 0 | 0.00 KM |
| Auckland Road | £ 701,818 | 0 | 0.00 KM |
| Aliwal Road | £ 0 | 0 | 0.00 KM |
| Falcon Lane | £ 389,000 | 0 | 0.00 KM |
| Stonell's Road | £ 0 | 0 | 0.00 KM |
Nearby Transport
| Name | NLC | TLC | Distance |
|---|---|---|---|
| Clapham Junction | 5595 | CLJ | 0.81 KM |
| Wandsworth Common | 5395 | WSW | 1.48 KM |
| Balham | 5399 | BAL | 2.26 KM |
| Wandsworth Town | 5576 | WNT | 2.60 KM |
| Queenstown Road (Battersea) | 5596 | QRB | 2.64 KM |
Nearby Listings
| Address | Price | Type | Score | Distance |
|---|---|---|---|---|
| Shelgate Road, London, SW11 | £ 700,000 | BUY | Unknown | 0.00 KM |
| Shelgate Road, London, SW11 | £ 525,000 | BUY | 6 / 10 | 0.00 KM |
| Shelgate Road, London, SW11 | £ 625,000 | BUY | Unknown | 0.01 KM |
| Shelgate Road, Battersea, London, SW11 | £ 600,000 | BUY | 6 / 10 | 0.04 KM |
| Lindore Road, SW11 | £ 2,100,000 | BUY | 7 / 10 | 0.05 KM |
Nearby Properties
| Address | Price | Distance |
|---|---|---|
| 28a Shelgate Road | £ 550,000 | 0.05 KM |
| 30b Shelgate Road | £ 280,000 | 0.05 KM |
| 64 Shelgate Road | £ 585,000 | 0.05 KM |
| 30 Shelgate Road | £ 452,000 | 0.05 KM |
| 34 Shelgate Road | £ 1,340,000 | 0.05 KM |