PR
George Street, Rodbourne, Swindon
By Primary Homes and Lettings
£ 200,000
Reviews
3 out of 5 stars
Primary Homes and Lettings says ..
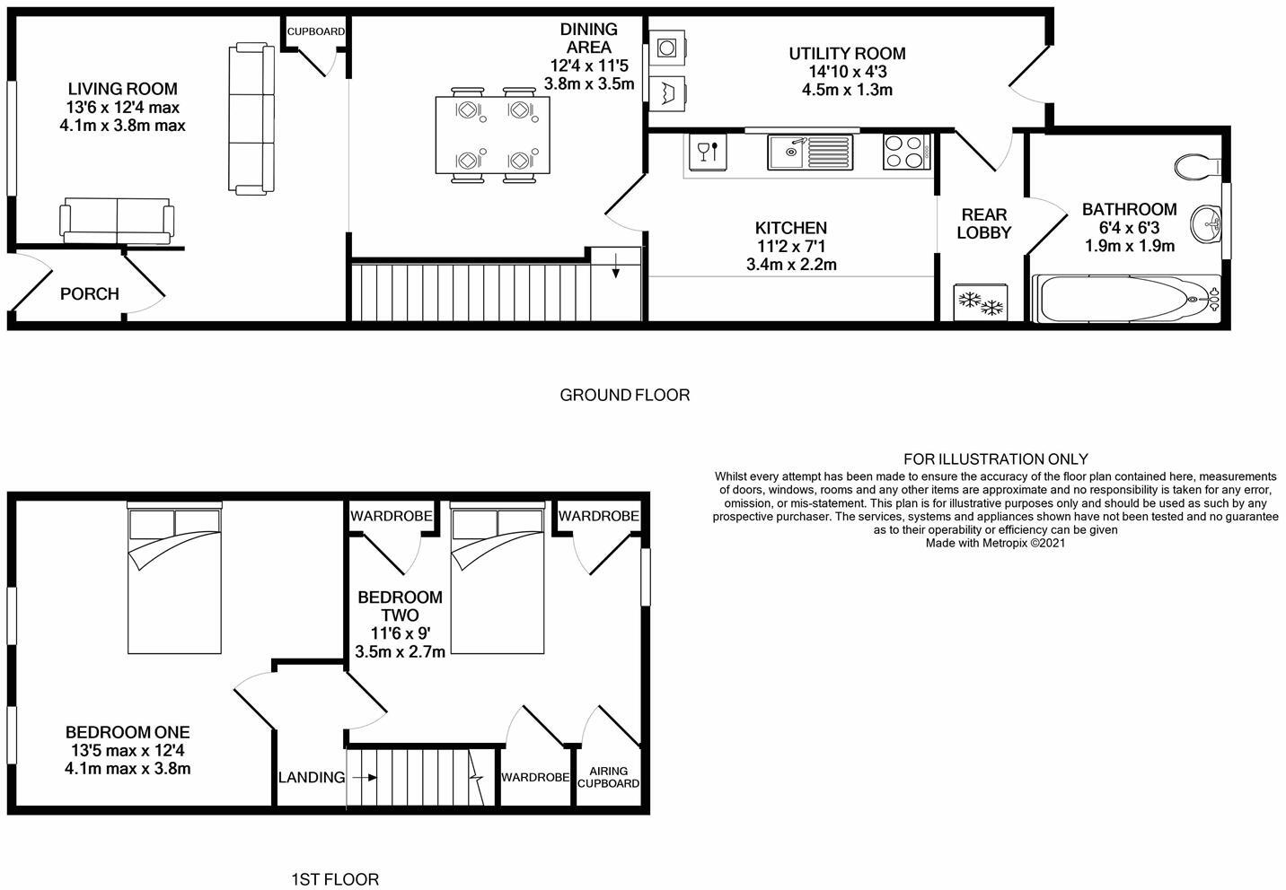
*** IDEAL FIRST TIME BUY OR INVESTMENT OPPORTUNITY *** We are pleased to offer this well presented two DOUBLE bedroom mid terrace house being sold with NO ONWARD CHAIN. The accommodation comprises of entrance porch, living room, dining area, kitchen, bathroom, lean to/utility and two bedrooms....
Property Oracle says ..
Therefore, we give this property 7 / 10. *Disclaimer: This is our option and does constitute a recommendation or financial advice. Do your own research. *
- Price
- 9
- Condition
- 7
- Location
- 7
- Land
- 6
- Bedrooms
- 2
- Bathrooms
- 1
- Sqft (est)
- 762.62
The heatmap indicates the level of crime in the area. The color of the heatmap indicates the crime severity and recency.
Metrics Year-on-Year
- Average area value
- 487,124.00 £Increased by 94.35 %
- Est sale value
- 469,773.92 £Increased by 112.41 %
- Average area rental value
- 1,220.00 £/moIncreased by 6.46 %
- Est letting value
- 762.62 £/moUnchanged by 0.00 %
- Est rental Yield
- 3.01 %Decreased by 45.17 %
- Crime Rate
- 7.00 %Unchanged by 0.00 %
from 250,641.00 £
from 221,159.80 £
from 1,146.00 £/mo
from 762.62 £/mo
from 5.49 %
from 7.00 %
Agent Activity
Primary Homes and Lettings created the listing.
Nearby Schools
| Name | Type | Ofsted | Distance |
|---|---|---|---|
| Robert Le Kyng Primary School | Community School | Good | 0.18 KM |
| Utc Swindon | University Technical College | Requires improvement | 0.50 KM |
| Even Swindon Primary School | Community School | Good | 1.21 KM |
| The Commonweal School | Academy Converter | Good | 1.55 KM |
| Ferndale Primary School & Nursery | Academy Converter | Good | 1.58 KM |
Images
Nearby Streets
| Name | Average Price | Average Sqft | Distance |
|---|---|---|---|
| Marlborough Street | £ 0 | 0 | 0.00 KM |
| Joseph Street | £ 0 | 0 | 0.00 KM |
| Turner Street | £ 0 | 0 | 0.00 KM |
| Church Place | £ 0 | 0 | 0.00 KM |
| Canal Cottages | £ 0 | 0 | 0.00 KM |
Nearby Transport
| Name | NLC | TLC | Distance |
|---|---|---|---|
| Swindon (Wilts) | 3333 | SWI | 1.51 KM |
Nearby Listings
| Address | Price | Type | Score | Distance |
|---|---|---|---|---|
| George Street, Rodbourne, Swindon | £ 200,000 | BUY | 7 / 10 | 0.00 KM |
| George Street, Swindon | £ 195,000 | BUY | 6 / 10 | 0.04 KM |
| George Street, Rodbourne, Swindon, SN1 | £ 200,000 | BUY | 7 / 10 | 0.08 KM |
| Butterworth Street, Rodbourne, Swindon, SN1 | £ 235,000 | BUY | 7 / 10 | 0.09 KM |
| Butterworth Street, Swindon, SN1 | £ 210,000 | BUY | 6 / 10 | 0.10 KM |
Nearby Properties
| Address | Price | Distance |
|---|---|---|
| 10 Dean Street | £ 130,000 | 0.03 KM |
| 37 Dean Street | £ 168,000 | 0.03 KM |
| 111 Dean Street | £ 130,000 | 0.03 KM |
| 14 Dean Street | £ 128,000 | 0.03 KM |
| 8 Dean Street | £ 123,000 | 0.03 KM |