Rampton Baseley says ..
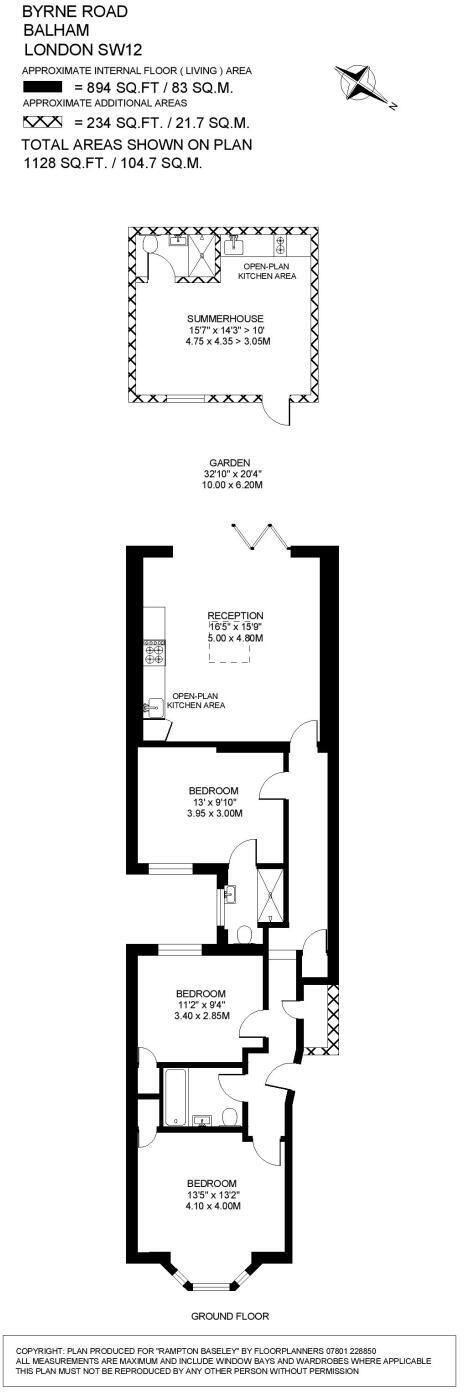
This stunning three-bedroom flat is arranged over the ground floor of a Victorian conversion, having recently been refurbished and benefits from a summerhouse with a kitchen and shower room.
Property Oracle says ..
This is a well-presented apartment in a sought-after location in Balham. The property boasts three bedrooms, three bathrooms, and a modern kitchen/living area. The private garden is a definite asset. While the price is above average for the area, the condition and location justify the premium.
Therefore, we give this property 7 / 10. *Disclaimer: This is our option and does constitute a recommendation or financial advice. Do your own research. *
- Price
- 6
- Condition
- 9
- Location
- 8
- Land
- 7
- Bedrooms
- 3
- Bathrooms
- 3
- Sqft (est)
- 1,126.98
The heatmap indicates the level of crime in the area. The color of the heatmap indicates the crime severity and recency.
Metrics Year-on-Year
- Average area value
- 946,667.00 £Increased by 7.29 %
- Est sale value
- 1,151,773.56 £Increased by 37.74 %
- Average area rental value
- 2,720.00 £/moIncreased by 4.21 %
- Est letting value
- 2,253.96 £/moUnchanged by 0.00 %
- Est rental Yield
- 3.45 %Decreased by 2.82 %
- Crime Rate
- 6.00 %Unchanged by 0.00 %
Agent Activity
Rampton Baseley created the listing.
Nearby Schools
| Name | Type | Ofsted | Distance |
|---|---|---|---|
| Henry Cavendish Primary School | Community School | Outstanding | 0.52 KM |
| London Steiner School | Other Independent School | Inadequate | 0.62 KM |
| The Michael Tippett College | Special Post 16 Institution | 0.81 KM | |
| St Bernadette Catholic Junior School | Voluntary Aided School | Good | 0.82 KM |
| La Retraite Roman Catholic Girls' School | Voluntary Aided School | Outstanding | 0.82 KM |
Images
Nearby Streets
| Name | Average Price | Average Sqft | Distance |
|---|---|---|---|
| Ryde Vale | £ 375,000 | 0 | 0.00 KM |
| Zennor Road | £ 0 | 0 | 0.00 KM |
| Oakmead Mews | £ 0 | 0 | 0.00 KM |
| Oakmead Road | £ 0 | 0 | 0.00 KM |
| Margaret Rutherford Place | £ 0 | 0 | 0.00 KM |
Nearby Transport
| Name | NLC | TLC | Distance |
|---|---|---|---|
| Balham | 5399 | BAL | 0.82 KM |
| Streatham Hill | 5435 | SRH | 2.04 KM |
| Wandsworth Common | 5395 | WSW | 2.08 KM |
| Streatham | 5383 | STE | 2.27 KM |
| Streatham Common | 5384 | SRC | 2.67 KM |
Nearby Listings
| Address | Price | Type | Score | Distance |
|---|---|---|---|---|
| Byrne Road, SW12 | £ 1,200,000 | BUY | 7 / 10 | 0.00 KM |
| Byrne Road, SW12 | £ 625,000 | BUY | 7 / 10 | 0.00 KM |
| Byrne Road, Balham | £ 1,200,000 | BUY | 7 / 10 | 0.00 KM |
| Byrne Road, SW12 | £ 625,000 | BUY | 6 / 10 | 0.00 KM |
| Byrne Road, Balham | £ 625,000 | BUY | 6 / 10 | 0.00 KM |
Nearby Properties
| Address | Price | Distance |
|---|---|---|
| 73 Cornford Grove | £ 211,200 | 0.10 KM |
| 57 Cornford Grove | £ 207,000 | 0.10 KM |
| 45 Cornford Grove | £ 76,500 | 0.10 KM |
| 59 Cornford Grove | £ 350,000 | 0.10 KM |
| 53 Cornford Grove | £ 7,170,000 | 0.10 KM |