Nested says ..
* Viewings suspended, offer under consideration | A well presented three bedroom detached villa nestled in the popular village of Croy.
Property Oracle says ..
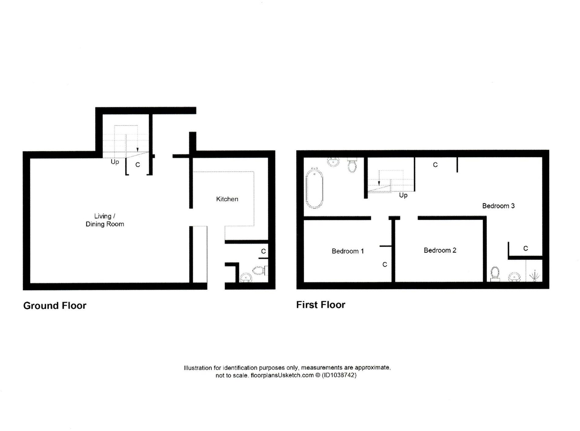
This property is a 3 bedroom, 2 bathroom detached house located in Croy, Inverness-shire. Based on the provided information and images, it appears to be in excellent condition. The interior and exterior are modern and well-maintained, with no visible need for renovation. The property includes a garden of reasonable size. Considering the list price of £285,000, the average price in the area of £198,212, and average price per sqft of £228, the property seems slightly overpriced. While the property is modern and in excellent condition, the plot size is small and the average price per sqft in the area is significantly lower. Nearby comparable properties are listed at similar prices, but without sqft data, a direct comparison is difficult. However, the absence of significant features to justify the higher price point compared to the average in the area needs to be considered. The location information is limited, preventing a comprehensive assessment of location quality. Based on the images, the property has a modern design and finish.
Therefore, we give this property 7 / 10. *Disclaimer: This is our option and does constitute a recommendation or financial advice. Do your own research. *
- Price
- 7
- Condition
- 10
- Location
- 0
- Land
- 6
- Bedrooms
- 3
- Bathrooms
- 2
- Sqft (est)
- 650.00
The heatmap indicates the level of crime in the area. The color of the heatmap indicates the crime severity and recency.
Metrics Year-on-Year
- Average area value
- 235,500.00 £Increased by 0.60 %
- Est sale value
- 207,350.00 £Increased by 38.70 %
- Average area rental value
- 788.00 £/moIncreased by 4.79 %
- Est letting value
- 650.00 £/mo
- Est rental Yield
- 4.02 %Increased by 4.42 %
- Crime Rate
- 0.00 %
Agent Activity
Nested marked this listing as sold.
Nested created the listing.
Images
Nearby Streets
| Name | Average Price | Average Sqft | Distance |
|---|---|---|---|
| Milne Avenue | £ 293,750 | 0 | 0.00 KM |
| Miller Road | £ 285,000 | 0 | 0.00 KM |
| Campbell Court | £ 343,333 | 0 | 0.00 KM |
| Macleod Gardens | £ 0 | 0 | 0.00 KM |
| Heathfield | £ 0 | 0 | 0.00 KM |
Nearby Listings
| Address | Price | Type | Score | Distance |
|---|---|---|---|---|
| 3 Milne Avenue, Croy | £ 295,000 | BUY | Unknown | 0.01 KM |
| 12 MacLeod Gardens, Croy, Inverness, IV2 5JT | £ 425,000 | BUY | Unknown | 0.12 KM |
| Croy, Inverness, IV2 5JS | £ 395,000 | BUY | 8 / 10 | 0.13 KM |
| Macleod Gardens, Inverness, IV2 | £ 270,000 | BUY | 7 / 10 | 0.14 KM |
| 13 Campbell Court, Croy | £ 385,000 | BUY | Unknown | 0.14 KM |