Milburys says ..
Residential development opportunity in a desirable location off the A38, near the village green, primary school and parish church. Convenient For M5 Junction 14 at Falfield and the market town of Thornbury to the south. Planning Ref:S.23/2517/FUL (Dated: 22/10/2024) for the ‘Construction...
Property Oracle says ..
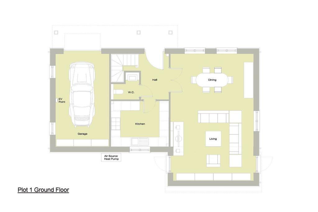
This is a plot in Stone, Berkeley, being marketed by Milburys. The property is listed as a plot, suggesting it is a new build or development opportunity. The location offers a balance between rural living and accessibility, with a nearby primary school and reasonable road connections. The architectural drawings indicate a modern design with a garage and EV charging point. The asking price of £400,000 is below the local average, potentially offering good value for a new or modernised home in this area. The inclusion of a garden and parking enhances the property’s appeal.
Therefore, we give this property 7 / 10. *Disclaimer: This is our option and does constitute a recommendation or financial advice. Do your own research. *
- Price
- 8
- Condition
- 9
- Location
- 7
- Land
- 6
- Bedrooms
- 0
- Bathrooms
- 0
The heatmap indicates the level of crime in the area. The color of the heatmap indicates the crime severity and recency.
Metrics Year-on-Year
- Average area value
- 526,875.00 £Increased by 21.61 %
- Average area rental value
- 1,950.00 £/moIncreased by 49.54 %
- Est rental Yield
- 4.44 %Increased by 22.99 %
- Crime Rate
- 50.00 %Unchanged by 0.00 %
Agent Activity
Milburys created the listing.
Nearby Schools
| Name | Type | Ofsted | Distance |
|---|---|---|---|
| Stone With Woodford Church Of England Primary School | Academy Converter | 0.31 KM | |
| Tortworth Vc Primary School | Voluntary Controlled School | Good | 3.52 KM |
| Berkeley Primary School | Academy Converter | Good | 4.17 KM |
| St Andrew'S Church Of England Primary School, Cromhall | Voluntary Controlled School | Good | 5.04 KM |
| Oneschoolglobal Bristol Campus | Other Independent School | 5.93 KM |
Images
Nearby Streets
| Name | Average Price | Average Sqft | Distance |
|---|---|---|---|
| Church Close | £ 225,000 | 0 | 0.00 KM |
| Lower Stone Lane | £ 550,000 | 0 | 0.00 KM |
| Moorslade Lane | £ 698,500 | 0 | 0.00 KM |
| Anstey Gardens | £ 0 | 0 | 0.00 KM |
| Selman Drive | £ 529,000 | 0 | 0.00 KM |
Nearby Listings
| Address | Price | Type | Score | Distance |
|---|---|---|---|---|
| Stone, Berkeley, GL13 | £ 400,000 | BUY | 7 / 10 | 0.00 KM |
| Church Cottage, Stone, GL13 | £ 750,000 | BUY | 7 / 10 | 0.04 KM |
| Stone, Berkeley, GL13 9JY | £ 575,000 | BUY | 6 / 10 | 0.04 KM |
| Stone, Gloucestershire | £ 1,000,000 | BUY | 8 / 10 | 0.11 KM |
| Damery Lane, Berkeley, GL13 | £ 1,250,000 | BUY | 7 / 10 | 0.12 KM |
Nearby Properties
| Address | Price | Distance |
|---|---|---|
| 13 Vale Orchard | £ 395,000 | 0.15 KM |
| 30 Court Meadow | £ 100,000 | 0.28 KM |
| 53 Court Meadow | £ 113,000 | 0.28 KM |
| 60 Court Meadow | £ 101,000 | 0.28 KM |
| 82 Court Meadow | £ 208,000 | 0.28 KM |