GA
Heyes Lane, Alderley Edge
By Gascoigne Halman
£ 350,000
Reviews
3 out of 5 stars
Gascoigne Halman says ..
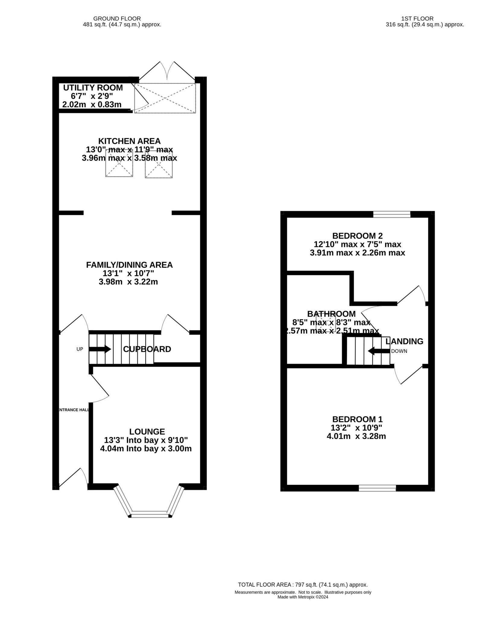
A well presented, thoughtfully extended two bedroom cottage, situated in a pleasant leafy position off Heyes Lane within close proximity to all amenities in Alderley Edge Village.
Property Oracle says ..
Therefore, we give this property 6 / 10. *Disclaimer: This is our option and does constitute a recommendation or financial advice. Do your own research. *
- Price
- 6
- Condition
- 7
- Location
- 8
- Land
- 6
- Bedrooms
- 2
- Bathrooms
- 1
- Sqft (est)
- 736.71
The heatmap indicates the level of crime in the area. The color of the heatmap indicates the crime severity and recency.
Metrics Year-on-Year
- Average area value
- 430,000.00 £Decreased by 45.17 %
- Est sale value
- 226,906.68 £Decreased by 45.87 %
- Average area rental value
- 4,000.00 £/moIncreased by 70.00 %
- Est letting value
- 1,473.42 £/moIncreased by 100.00 %
- Est rental Yield
- 11.16 %Increased by 210.00 %
- Crime Rate
- 3.00 %Unchanged by 0.00 %
from 784,260.00 £
from 419,187.99 £
from 2,353.00 £/mo
from 736.71 £/mo
from 3.60 %
from 3.00 %
Agent Activity
Gascoigne Halman created the listing.
Nearby Schools
| Name | Type | Ofsted | Distance |
|---|---|---|---|
| Alderley Edge School For Girls | Other Independent School | 1.28 KM | |
| Alderley Edge Community Primary School | Community School | Outstanding | 1.46 KM |
| Wilmslow High School | Community School | Good | 1.74 KM |
| The Ryleys School | Other Independent School | 1.95 KM | |
| Wilmslow Preparatory School | Other Independent School | 2.39 KM |
Images
Nearby Streets
| Name | Average Price | Average Sqft | Distance |
|---|---|---|---|
| Oakfield Close | £ 0 | 0 | 0.00 KM |
| Marlborough Avenue | £ 1,000,000 | 0 | 0.00 KM |
| Underwood Road | £ 0 | 0 | 0.00 KM |
| Greystoke Drive | £ 0 | 0 | 0.00 KM |
| West Bank | £ 0 | 0 | 0.00 KM |
Nearby Transport
| Name | NLC | TLC | Distance |
|---|---|---|---|
| Alderley Edge | 2760 | ALD | 1.16 KM |
| Wilmslow | 2774 | WML | 2.23 KM |
| Handforth | 2767 | HTH | 4.64 KM |
| Styal | 2868 | SYA | 4.86 KM |
| Heald Green | 2860 | HDG | 7.04 KM |
Nearby Listings
| Address | Price | Type | Score | Distance |
|---|---|---|---|---|
| Heyes Lane, Alderley Edge | £ 350,000 | BUY | 6 / 10 | 0.00 KM |
| Heyes Lane, Alderley Edge, SK9 | £ 615,000 | BUY | 7 / 10 | 0.09 KM |
| Heyes Lane, Alderley Edge, Cheshire, SK9 | £ 975,000 | BUY | 8 / 10 | 0.09 KM |
| Heyes Lane, Alderley Edge | £ 537,500 | BUY | 6 / 10 | 0.12 KM |
| Heyes Lane, Alderley Edge | £ 535,000 | BUY | 6 / 10 | 0.12 KM |
Nearby Properties
| Address | Price | Distance |
|---|---|---|
| 86 Heyes Lane | £ 480,000 | 0.09 KM |
| 76 Heyes Lane | £ 1,360,100 | 0.09 KM |
| 82 Heyes Lane | £ 335,000 | 0.09 KM |
| 120 Heyes Lane | £ 600,000 | 0.09 KM |
| 104 Heyes Lane | £ 339,000 | 0.09 KM |