Lockside, Marple, Stockport
By Gascoigne Halman
£ 439,950
Reviews
3 out of 5 stars
Gascoigne Halman says ..
A beautifully presented THREE bedroom end terrace property situated in an enviable lockside location close to the centre of Marple and boasting beautiful views of the Peak Forest Canal and surrounding countryside
Property Oracle says ..
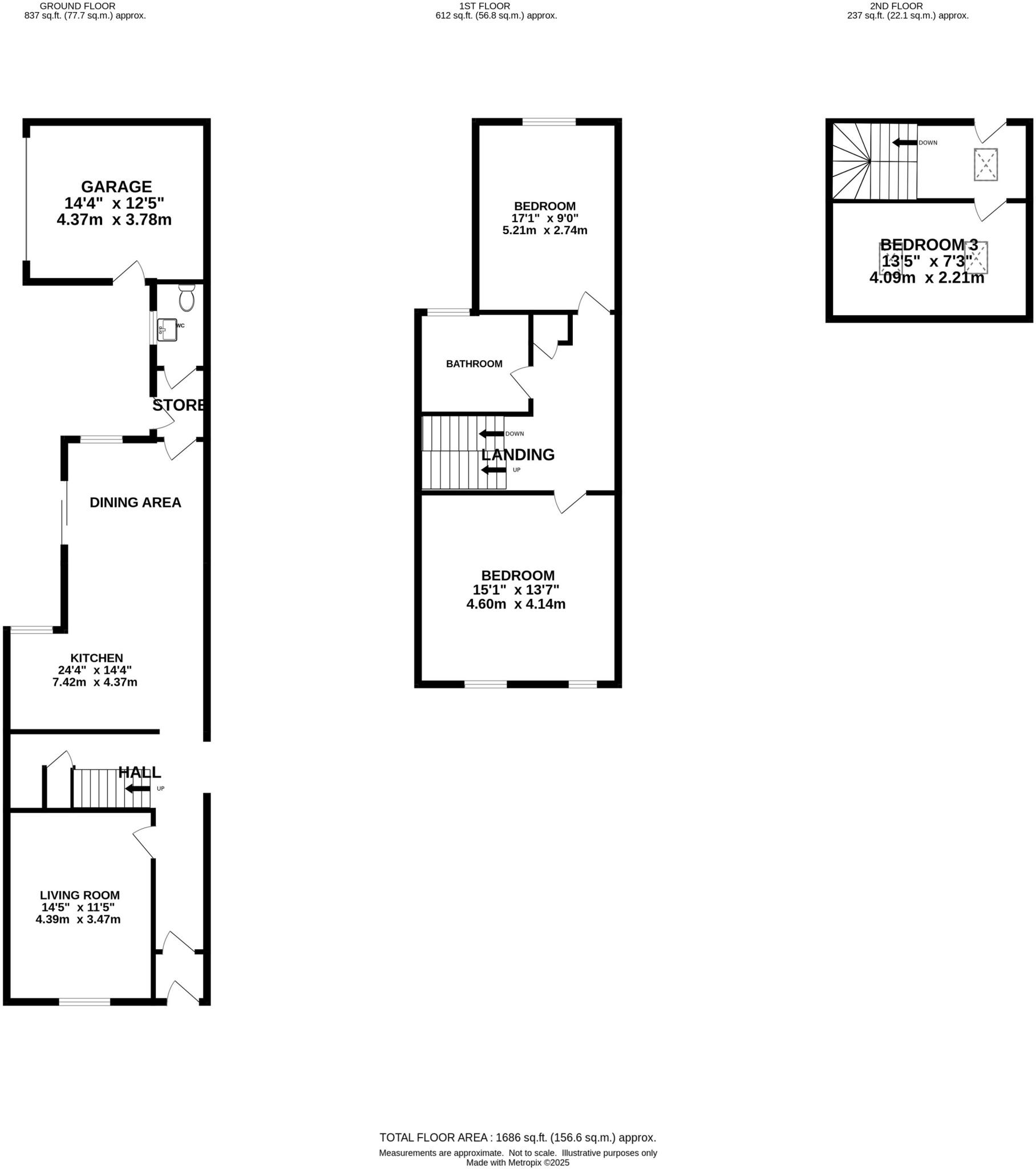
This three-bedroom terraced house in Marple, Stockport, is listed at £439,950. The property benefits from a recently renovated kitchen, featuring modern cabinets, a new range cooker, and contemporary finishes. The living room includes a feature fireplace with a wood-burning stove and has undergone updating with new flooring. However, other areas like the bathrooms and some bedrooms appear slightly dated and could benefit from some modernisation. The property’s location on Lockside offers proximity to Marple’s amenities and the train station, which provides good links to Manchester city center. While nearby schools are present, the exact proximity would need verification with the estate agent. The house includes a small garden and there is an additional garage to the rear of the property. The property size is listed as 1,685.63 sq ft. Overall, the property presents a mixed picture with attractive features balanced against some areas that would require further investment. The lack of information regarding the property’s plot size and specific comparable sales data is noticeable making it difficult to determine the precise value-for-money proposition.
Therefore, we give this property 6 / 10. *Disclaimer: This is our option and does constitute a recommendation or financial advice. Do your own research. *
- Price
- 7
- Condition
- 6
- Location
- 7
- Land
- 4
- Bedrooms
- 3
- Bathrooms
- 1
- Sqft (est)
- 1,685.63
The heatmap indicates the level of crime in the area. The color of the heatmap indicates the crime severity and recency.
Metrics Year-on-Year
- Average area value
- 600,417.00 £Increased by 40.45 %
- Est sale value
- 647,281.92 £Increased by 2.67 %
- Average area rental value
- 1,815.00 £/moIncreased by 55.39 %
- Est letting value
- 1,685.63 £/moUnchanged by 0.00 %
- Est rental Yield
- 3.63 %Increased by 10.67 %
- Crime Rate
- 41.00 %Unchanged by 0.00 %
Agent Activity
Gascoigne Halman created the listing.
Nearby Schools
| Name | Type | Ofsted | Distance |
|---|---|---|---|
| All Saints Church Of England Primary School Marple | Voluntary Controlled School | Good | 0.32 KM |
| Brabyns Preparatory School | Other Independent School | 0.62 KM | |
| Acorns School | Other Independent Special School | Requires improvement | 0.72 KM |
| Ludworth Primary School | Community School | Outstanding | 1.33 KM |
| St Mary'S Catholic Voluntary Academy | Academy Converter | 1.39 KM |
Images
Nearby Streets
| Name | Average Price | Average Sqft | Distance |
|---|---|---|---|
| John Street | £ 0 | 0 | 0.00 KM |
| Oldknow Road | £ 700,000 | 0 | 0.00 KM |
| Suttons Lane | £ 0 | 0 | 0.00 KM |
| Derby Way | £ 0 | 0 | 0.00 KM |
| Field House Lane | £ 950,000 | 0 | 0.00 KM |
Nearby Transport
| Name | NLC | TLC | Distance |
|---|---|---|---|
| Marple | 2830 | MPL | 0.81 KM |
| Rose Hill Marple | 2873 | RSH | 1.80 KM |
| Strines | 2834 | SRN | 3.62 KM |
| Romiley | 2833 | RML | 3.89 KM |
| Disley | 2765 | DSL | 4.46 KM |
Nearby Listings
| Address | Price | Type | Score | Distance |
|---|---|---|---|---|
| Lockside, Marple, Stockport | £ 439,950 | BUY | 6 / 10 | 0.00 KM |
| Townley Terrace, Canal Street, Marple, Stockport, SK6 | £ 350,000 | BUY | 7 / 10 | 0.04 KM |
| Townley Terrace, Marple, Stockport | £ 300,000 | BUY | 6 / 10 | 0.04 KM |
| Mellor View, Lockside, Marple, Stockport, Cheshire, SK6 | £ 450,000 | BUY | Unknown | 0.08 KM |
| 1 Top Lock Cottage, Lockside, Marple, Stockport, Cheshire, SK6 6BN | £ 225,000 | BUY | 6 / 10 | 0.10 KM |
Nearby Properties
| Address | Price | Distance |
|---|---|---|
| 26 Lockside | £ 392,500 | 0.10 KM |
| 6 Lockside | £ 250,000 | 0.10 KM |
| 24 Lockside | £ 180,000 | 0.10 KM |
| 15 Lockside | £ 200,000 | 0.10 KM |
| 13 Lockside | £ 210,000 | 0.10 KM |