Dibles Road, Warsash
Taylor Hill & Bond logo

Dibles Road, Warsash

By Taylor Hill & Bond

£ 765,000

Reviews

3 out of 5 stars

Taylor Hill & Bond says ..

Situated along a quiet no through lane, a short stroll to Warsash Common, a stunning residence which has been the subject of extensive works since my clients’ ownership in 2022.

Property Oracle says ..

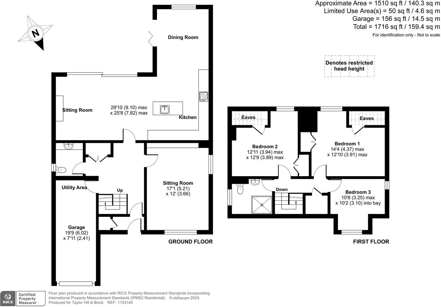
This is a detached property in Warsash, Hampshire, listed for £765,000. It features three bedrooms and one bathroom, with a total square footage of 1,716. The property benefits from a well-maintained garden and a garage. The interiors appear modern and in good condition, suggesting recent renovations. While the location is desirable with good schools, the price seems slightly high compared to the local average. The property offers a blend of modern living in a sought-after area, making it an attractive option for potential buyers.

Therefore, we give this property 7 / 10. *Disclaimer: This is our option and does constitute a recommendation or financial advice. Do your own research. *

Price
6
Condition
8
Location
7
Land
7
Bedrooms
3
Bathrooms
1
Sqft (est)
1,716.00

The heatmap indicates the level of crime in the area. The color of the heatmap indicates the crime severity and recency.

Metrics Year-on-Year

Average area value
691,555.00 £
Increased by 13.60 %
from 608,749.00 £
Est sale value
720,720.00 £
Decreased by 1.18 %
from 729,300.00 £
Average area rental value
1,511.00 £/mo
Decreased by 13.06 %
from 1,738.00 £/mo
Est letting value
0.00 £/mo
Decreased by 100.00 %
from 1,716.00 £/mo
Est rental Yield
2.62 %
Decreased by 23.62 %
from 3.43 %
Crime Rate
7.00 %
Unchanged by 0.00 %
from 7.00 %

Agent Activity

  • Taylor Hill & Bond created the listing.

Nearby Schools

NameTypeOfstedDistance
Hook-With-Warsash Church Of England AcademyAcademy ConverterGood0.28 KM
Sovereign And Strawberry Meadow Children'S CentreChildren's Centre1.68 KM
Brookfield Community SchoolCommunity SchoolGood1.84 KM
Sarisbury Infant SchoolCommunity SchoolOutstanding1.85 KM
Locks Heath Junior SchoolCommunity SchoolGood2.18 KM

Images

1153144 (14).jpg 1153144 (13).jpg 1153144 (18).jpg 1153144 (9).jpg 1153144 (3).jpg 1153144 (4).jpg 1153144 (5).jpg 1153144 (11).jpg 1153144 (17).jpg 1153144 (2).jpg 1153144 (19).jpg 1153144 (6).jpg 1153144 (7).jpg 1153144 (8).jpg 1153144 (12).jpg 1153144 (15).jpg

Nearby Streets

NameAverage PriceAverage SqftDistance
Dibles Road (West) £ 550,00000.00 KM
Sartoris Close £ 250,00000.00 KM
Warsash Road £ 399,95000.00 KM
Phoenix Drive £ 000.00 KM
Anson Drive £ 000.00 KM

Nearby Transport

NameNLCTLCDistance
Bursledon5927BUO3.70 KM
Swanwick5920SNW4.02 KM
Hamble5947HME4.46 KM
Netley5911NTL5.89 KM
Botley5894BOE8.08 KM

Nearby Listings

AddressPriceTypeScoreDistance
Dibles Road, Warsash £ 765,000BUY7 / 100.00 KM
Dibles Road, Warsaash SO31 £ 550,000BUY6 / 100.09 KM
Sartoris Close, Warsash £ 229,950BUYUnknown0.11 KM
Elmdale Close, Warsash, SO31 £ 575,000BUY6 / 100.15 KM
Church Road, Warsash £ 475,000BUY7 / 100.16 KM

Nearby Properties

AddressPriceDistance
10 Dibles Road £ 750,0000.01 KM
4 Dibles Road £ 140,0000.01 KM
22 Dibles Road £ 645,0000.01 KM
28 Dibles Road £ 425,0000.01 KM
12 Dibles Road £ 290,0000.04 KM