Elmwood Road, Woking, Surrey, GU21
By Seymours Estate Agents
£ 650,000
Reviews
3 out of 5 stars
Seymours Estate Agents says ..
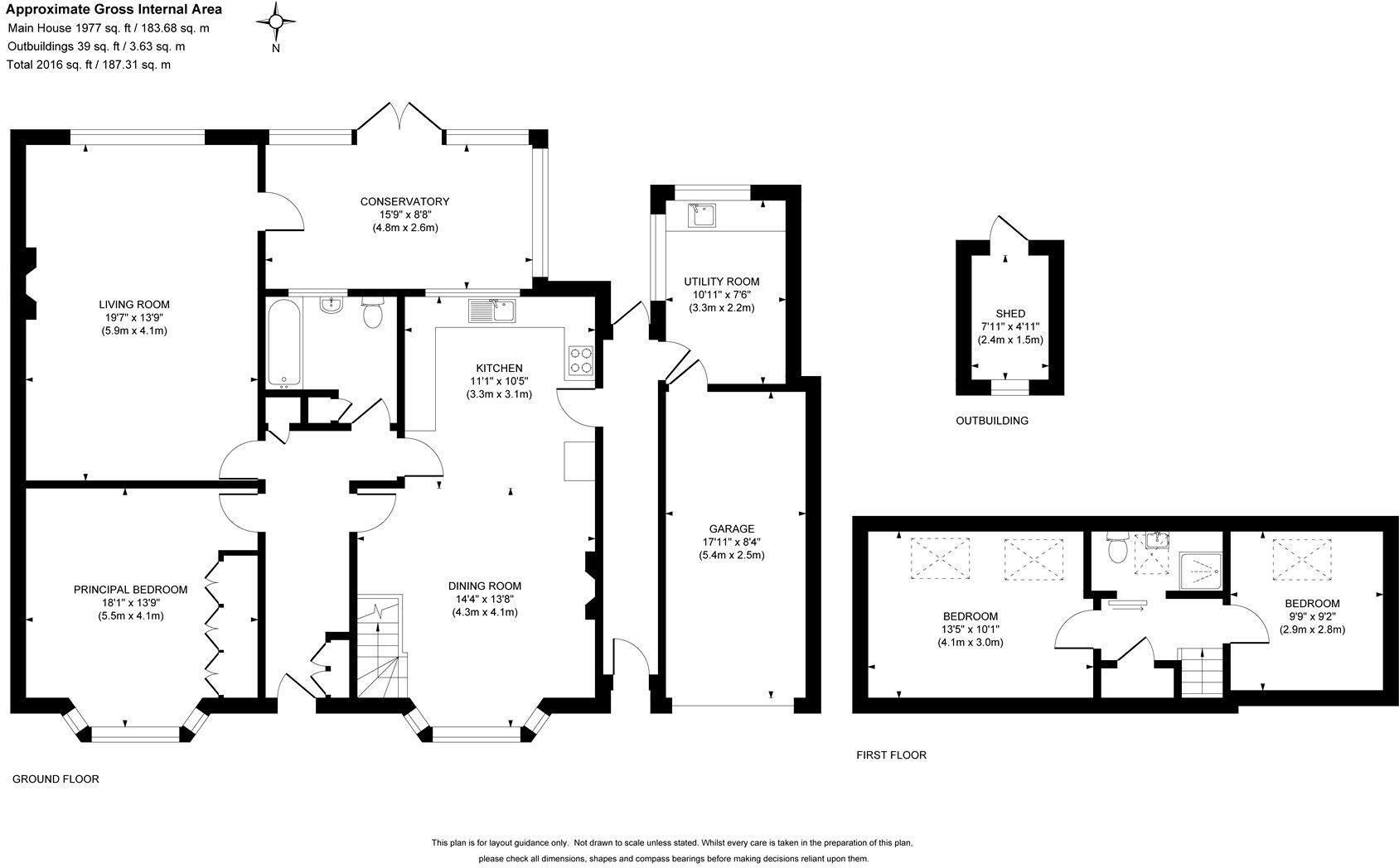
Situated on the sought after Hermitage development in St Johns, this spacious detached chalet style property offers flexible family accommodation and a wonderful south facing garden stretching approximately 100ft in length. The ground floor features a welcoming rear aspect lounge complete wi...
Property Oracle says ..
This detached property on Elmwood Road, St John’s, Woking, presents a blend of appealing features and areas for potential improvement. The house benefits from a good location with access to schools and transportation. The interior is generally well-maintained, with a modern kitchen. However, the conservatory and utility room could use updating. A large garden provides ample outdoor space, enhancing the property’s appeal. The asking price of £650,000 appears somewhat high relative to the local market, suggesting there might be room for negotiation.
Therefore, we give this property 7 / 10. *Disclaimer: This is our option and does constitute a recommendation or financial advice. Do your own research. *
- Price
- 6
- Condition
- 7
- Location
- 7
- Land
- 8
- Bedrooms
- 3
- Bathrooms
- 2
- Sqft (est)
- 1,216.33
The heatmap indicates the level of crime in the area. The color of the heatmap indicates the crime severity and recency.
Metrics Year-on-Year
- Average area value
- 384,737.00 £Decreased by 1.20 %
- Est sale value
- 495,046.31 £Increased by 15.95 %
- Average area rental value
- 1,963.00 £/moIncreased by 39.81 %
- Est letting value
- 2,432.66 £/moIncreased by 100.00 %
- Est rental Yield
- 6.12 %Increased by 41.34 %
- Crime Rate
- 2.00 %Unchanged by 0.00 %
Agent Activity
Seymours Estate Agents created the listing.
Nearby Schools
| Name | Type | Ofsted | Distance |
|---|---|---|---|
| St Hugh Of Lincoln Catholic Primary School | Academy Converter | Good | 0.17 KM |
| The Oaktree School | Academy Converter | 0.41 KM | |
| The Hermitage School | Academy Converter | Good | 0.44 KM |
| St John'S Primary School | Academy Sponsor Led | Requires improvement | 0.77 KM |
| St John'S Primary School And Sure Start Children'S Centre | Children's Centre | 0.77 KM |
Images
Nearby Streets
| Name | Average Price | Average Sqft | Distance |
|---|---|---|---|
| Elmgrove Close | £ 425,000 | 0 | 0.00 KM |
| Oakway | £ 475,000 | 0 | 0.00 KM |
| Oakwood Road | £ 0 | 0 | 0.00 KM |
| Rose Lodge | £ 0 | 0 | 0.00 KM |
| Beechwood Close | £ 0 | 0 | 0.00 KM |
Nearby Transport
| Name | NLC | TLC | Distance |
|---|---|---|---|
| Brookwood | 5687 | BKO | 2.79 KM |
| Worplesdon | 5686 | WPL | 3.94 KM |
| Woking | 5685 | WOK | 6.08 KM |
| Longcross | 5674 | LNG | 8.56 KM |
| Guildford | 5631 | GLD | 8.82 KM |
Nearby Listings
| Address | Price | Type | Score | Distance |
|---|---|---|---|---|
| Elmwood Road, Woking, Surrey, GU21 | £ 650,000 | BUY | 7 / 10 | 0.00 KM |
| Elmwood Road, Woking, Surrey, GU21 | £ 650,000 | BUY | 7 / 10 | 0.00 KM |
| Elmwood Road, St Johns, Woking, Surrey, GU21 | £ 499,950 | BUY | 7 / 10 | 0.03 KM |
| Brackenwood Road, Woking, Surrey, GU21 | £ 650,000 | BUY | 6 / 10 | 0.06 KM |
| St. Johns | £ 650,000 | BUY | Unknown | 0.07 KM |
Nearby Properties
| Address | Price | Distance |
|---|---|---|
| 2 Elmwood Road | £ 342,500 | 0.03 KM |
| 9 Elmwood Road | £ 243,000 | 0.03 KM |
| 16 Elmwood Road | £ 608,590 | 0.03 KM |
| 14 Elmwood Road | £ 228,000 | 0.03 KM |
| 3 Elmwood Road | £ 391,000 | 0.03 KM |