Julie Philpot says ..
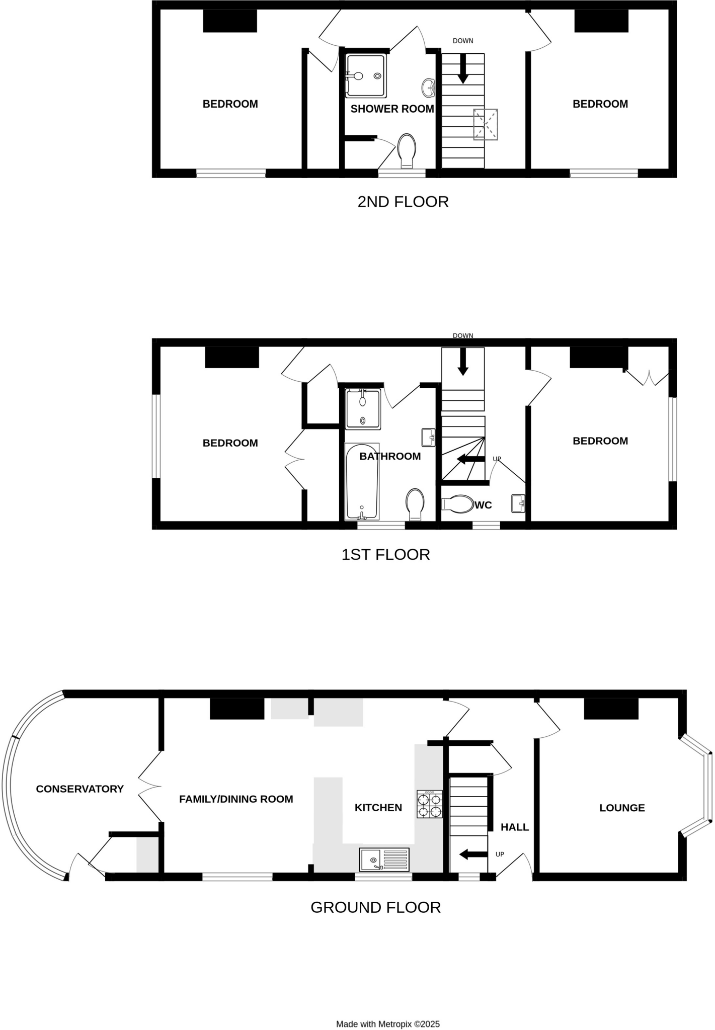
If looking for a large, traditional family home with an extensive rear garden - this must be the home for you. A unique opportunity to purchase this attractive, very spacious and well planned semi detached home with brand new carpeting throughout. Four double bedrooms, two bathrooms, a modern op...
Property Oracle says ..
This property is a 4-bedroom, 2-bathroom semi-detached house located on Arthur Street in Kenilworth, Warwickshire. The property benefits from a modern kitchen and conservatory extension. It is situated in a desirable residential area with good access to local schools and transport links. The property also has a sizeable garden, a feature that is not always common in this area. The list price of £429,950 is slightly above the average price for the area, but this is likely justified given the property’s size, condition, and additional features such as the conservatory and garden. The average price per square foot in the area is £402, and while the exact square footage of this property is not provided, the list price appears reasonable considering the market conditions.
Therefore, we give this property 8 / 10. *Disclaimer: This is our option and does constitute a recommendation or financial advice. Do your own research. *
- Price
- 7
- Condition
- 9
- Location
- 9
- Land
- 8
- Bedrooms
- 4
- Bathrooms
- 2
- Sqft (est)
- 1,525.00
The heatmap indicates the level of crime in the area. The color of the heatmap indicates the crime severity and recency.
Metrics Year-on-Year
- Average area value
- 450,680.00 £Increased by 2.66 %
- Est sale value
- 718,275.00 £Increased by 11.61 %
- Average area rental value
- 1,290.00 £/moIncreased by 8.77 %
- Est letting value
- 1,525.00 £/moUnchanged by 0.00 %
- Est rental Yield
- 3.43 %Increased by 5.86 %
- Crime Rate
- 7.00 %Unchanged by 0.00 %
Agent Activity
Julie Philpot created the listing.
Nearby Schools
| Name | Type | Ofsted | Distance |
|---|---|---|---|
| St Nicholas Cofe Primary School | Voluntary Controlled School | Good | 0.48 KM |
| Kenilworth Nursery School & Early Years Training Centre | Local Authority Nursery School | Outstanding | 0.75 KM |
| Thorns Community Infant School | Community School | Good | 0.78 KM |
| Crackley Hall School | Other Independent School | 0.90 KM | |
| Park Hill Junior School | Community School | Good | 1.22 KM |
Images
Nearby Streets
| Name | Average Price | Average Sqft | Distance |
|---|---|---|---|
| Glendale Avenue | £ 0 | 0 | 0.00 KM |
| Stoneleigh Avenue | £ 0 | 0 | 0.00 KM |
| Denemoor Court | £ 0 | 0 | 0.00 KM |
| Brooke Road | £ 750,000 | 0 | 0.00 KM |
| Field Close | £ 0 | 0 | 0.00 KM |
Nearby Transport
| Name | NLC | TLC | Distance |
|---|---|---|---|
| Kenilworth | 7985 | KNW | 0.59 KM |
| Tile Hill | 1035 | THL | 5.99 KM |
| Canley | 1129 | CNL | 6.30 KM |
| Warwick | 4600 | WRW | 6.91 KM |
| Leamington Spa | 4597 | LMS | 8.03 KM |
Nearby Listings
| Address | Price | Type | Score | Distance |
|---|---|---|---|---|
| Arthur Street, Kenilworth | £ 429,950 | BUY | 8 / 10 | 0.00 KM |
| Arthur Street, Kenilworth | £ 280,000 | BUY | 7 / 10 | 0.03 KM |
| Arthur Street, Kenilworth | £ 475,000 | BUY | 7 / 10 | 0.04 KM |
| Henry Street, Kenilworth | £ 299,950 | BUY | Unknown | 0.11 KM |
| Henry Street, Kenilworth | £ 305,000 | BUY | 7 / 10 | 0.11 KM |
Nearby Properties
| Address | Price | Distance |
|---|---|---|
| 82 Arthur Street | £ 71,000 | 0.00 KM |
| 74 Arthur Street | £ 280,000 | 0.00 KM |
| 60 Arthur Street | £ 305,000 | 0.00 KM |
| 14 Arthur Street | £ 240,000 | 0.00 KM |
| 26 Arthur Street | £ 235,000 | 0.00 KM |