BidX1 says ..
N/A
Property Oracle says ..
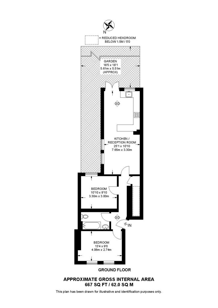
This is a two-bedroom flat located on Undine Street, in Tooting, London. The property is in generally good condition, with a modern kitchen and bathroom. It also benefits from a garden, which is a desirable feature in London. The property is located close to local amenities, shops, restaurants and highly rated schooling. The list price of £480,000 seems slightly overpriced compared to the average price per sqft in the area, but is in line with similar properties in the area. Overall, this property would make a good home for a small family or couple. It is also a good investment opportunity, as the rental yield in the area is relatively high.
Therefore, we give this property 6 / 10. *Disclaimer: This is our option and does constitute a recommendation or financial advice. Do your own research. *
- Price
- 7
- Condition
- 7
- Location
- 7
- Land
- 6
- Bedrooms
- 2
- Bathrooms
- 1
The heatmap indicates the level of crime in the area. The color of the heatmap indicates the crime severity and recency.
Metrics Year-on-Year
- Average area value
- 685,278.00 £Increased by 17.39 %
- Average area rental value
- 2,413.00 £/moDecreased by 6.91 %
- Est rental Yield
- 4.23 %Decreased by 20.64 %
- Crime Rate
- 25.00 %Unchanged by 0.00 %
Agent Activity
BidX1 created the listing.
Nearby Schools
| Name | Type | Ofsted | Distance |
|---|---|---|---|
| St Boniface Rc Primary School | Voluntary Aided School | Outstanding | 0.06 KM |
| Francis Barber Pupil Referral Unit | Pupil Referral Unit | Good | 0.31 KM |
| Tooting Primary School | Free Schools | Outstanding | 0.35 KM |
| Sellincourt Primary School | Community School | Good | 0.49 KM |
| Gatton (Va) Primary School | Voluntary Aided School | Outstanding | 0.51 KM |
Images
Nearby Streets
| Name | Average Price | Average Sqft | Distance |
|---|---|---|---|
| St. Cyprians Street | £ 650,000 | 0 | 0.00 KM |
| Laurel Close | £ 0 | 0 | 0.00 KM |
| Upper Tooting Road | £ 410,000 | 0 | 0.00 KM |
| London Road | £ 0 | 0 | 0.00 KM |
| Watson Close | £ 375,000 | 0 | 0.00 KM |
Nearby Transport
| Name | NLC | TLC | Distance |
|---|---|---|---|
| Tooting | 5389 | TOO | 0.89 KM |
| Wandsworth Common | 5395 | WSW | 2.18 KM |
| Balham | 5399 | BAL | 2.33 KM |
| Mitcham Eastfields | 5069 | MTC | 2.42 KM |
| Haydons Road | 5289 | HYR | 2.60 KM |
Nearby Listings
| Address | Price | Type | Score | Distance |
|---|---|---|---|---|
| Undine Street, London, SW17 | £ 480,000 | BUY | 6 / 10 | 0.00 KM |
| Undine Street, Tooting, London, SW17 | £ 365,000 | BUY | Unknown | 0.00 KM |
| Undine Street, London, SW17 | £ 1,300,000 | BUY | 7 / 10 | 0.05 KM |
| Bickley Street, Tooting | £ 425,000 | BUY | 6 / 10 | 0.07 KM |
| Undine Street, Tooting, London, SW17 | £ 480,000 | BUY | Unknown | 0.09 KM |
Nearby Properties
| Address | Price | Distance |
|---|---|---|
| 99a Mitcham Road | £ 187,500 | 0.06 KM |
| 93 Mitcham Road | £ 190,000 | 0.07 KM |
| 33 Undine Street | £ 375,000 | 0.10 KM |
| 31 Undine Street | £ 134,000 | 0.10 KM |
| 51 Undine Street | £ 355,000 | 0.10 KM |