Acorn says ..
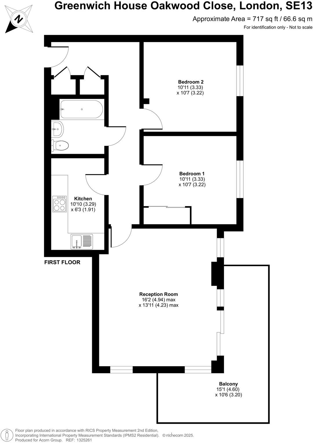
A highly requested two-bedroom two-bathroom, modern apartment sitting circa 717 sq/ft internal floor space with direct access onto a patio, furthermore, being situated in prime a sought-after development in prime Hither Green near Mountsfield Park. Situated on the first floor of a well...
Property Oracle says ..
This is a two-bedroom apartment in Lewisham Central, London. The property is in reasonable condition and offers convenient access to transport links, schools, and local amenities. The apartment features a balcony. The price appears to be competitive for the area. Overall, this property presents a good opportunity for first-time buyers or investors looking for a well-connected London property.
Therefore, we give this property 6 / 10. *Disclaimer: This is our option and does constitute a recommendation or financial advice. Do your own research. *
- Price
- 8
- Condition
- 7
- Location
- 7
- Land
- 4
- Bedrooms
- 2
- Bathrooms
- 1
The heatmap indicates the level of crime in the area. The color of the heatmap indicates the crime severity and recency.
Metrics Year-on-Year
- Average area value
- 474,750.00 £Increased by 4.39 %
- Average area rental value
- 2,030.00 £/moIncreased by 10.33 %
- Est rental Yield
- 5.13 %Increased by 5.77 %
- Crime Rate
- 7.00 %Unchanged by 0.00 %
Agent Activity
Acorn created the listing.
Nearby Schools
| Name | Type | Ofsted | Distance |
|---|---|---|---|
| The Young Women'S Hub | Other Independent Special School | Requires improvement | 0.38 KM |
| Brindishe Green School | Community School | Outstanding | 0.38 KM |
| Sandhurst Primary School | Community School | Good | 0.64 KM |
| Brindishe Manor School | Community School | Outstanding | 0.89 KM |
| Torridon Primary School | Community School | Outstanding | 1.29 KM |
Images
Nearby Streets
| Name | Average Price | Average Sqft | Distance |
|---|---|---|---|
| Oakley Drive | £ 0 | 0 | 0.00 KM |
| Arlington Close | £ 0 | 0 | 0.00 KM |
| Broadfield Road | £ 0 | 0 | 0.00 KM |
| St. Mildred's Road | £ 0 | 0 | 0.00 KM |
| Orchard Mews | £ 475,000 | 0 | 0.00 KM |
Nearby Transport
| Name | NLC | TLC | Distance |
|---|---|---|---|
| Hither Green | 5107 | HGR | 0.47 KM |
| Lee | 5110 | LEE | 1.82 KM |
| Ladywell | 5057 | LAD | 1.99 KM |
| Lewisham | 5051 | LEW | 2.30 KM |
| Blackheath | 5095 | BKH | 2.35 KM |
Nearby Listings
| Address | Price | Type | Score | Distance |
|---|---|---|---|---|
| Oakwood Close, London | £ 350,000 | BUY | 6 / 10 | 0.00 KM |
| Oakwood Close, London, SE13 | £ 270,000 | BUY | 7 / 10 | 0.01 KM |
| Cherrywood Lodge, Hither Green, SE13 | £ 250,000 | BUY | 6 / 10 | 0.01 KM |
| Desvignes Drive, Hither Green, London, SE13 | £ 450,000 | BUY | 6 / 10 | 0.03 KM |
| Desvignes Drive, Hither Green, London, SE13 | £ 375,000 | BUY | 6 / 10 | 0.03 KM |
Nearby Properties
| Address | Price | Distance |
|---|---|---|
| 8 Woodlands Street | £ 222,000 | 0.09 KM |
| 25 Woodlands Street | £ 499,995 | 0.09 KM |
| 12 Woodlands Street | £ 300,000 | 0.10 KM |
| 29 Blashford Street | £ 315,000 | 0.17 KM |
| 9b Blashford Street | £ 197,000 | 0.17 KM |