Pearsons says ..
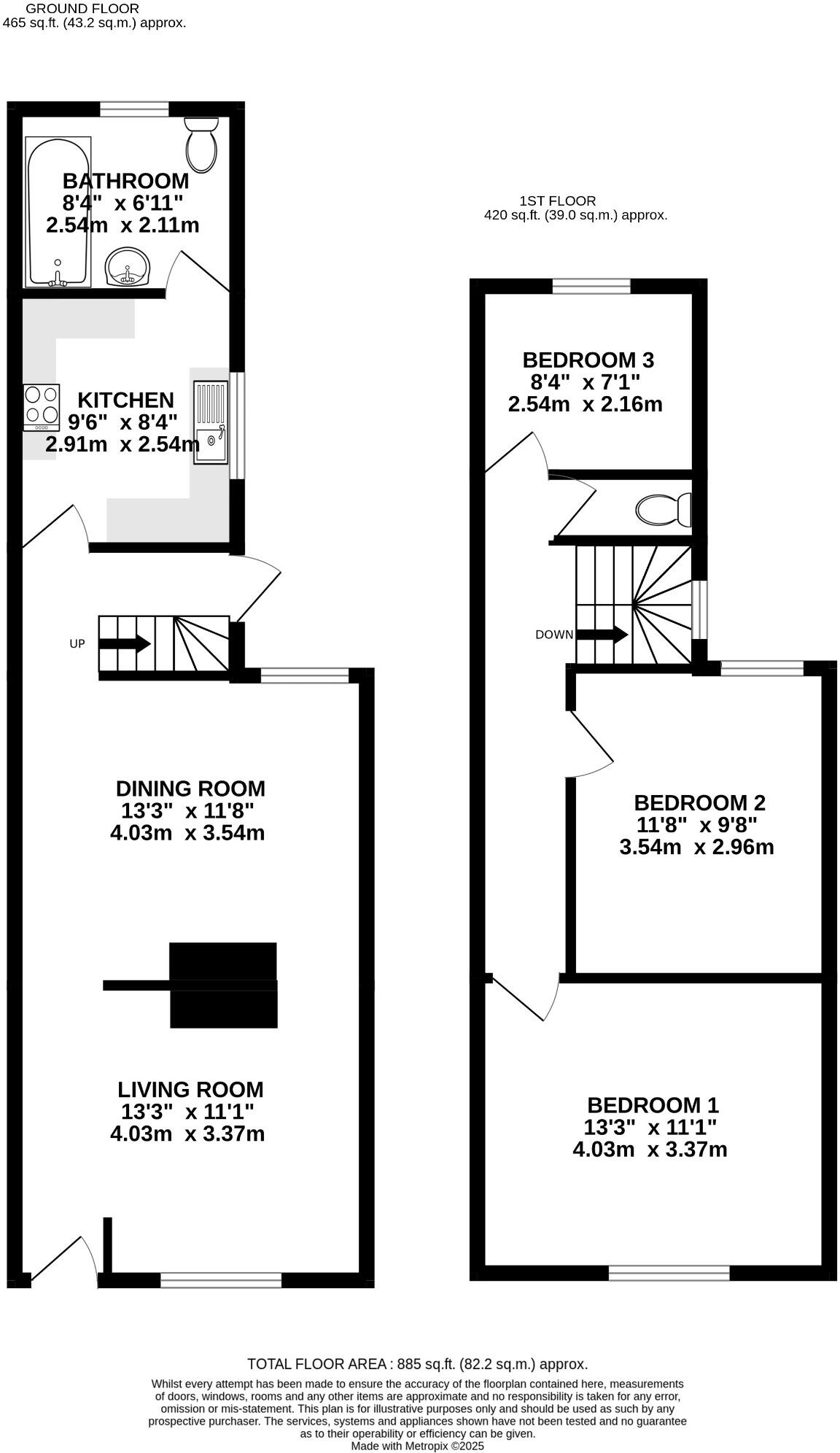
Sold with no forward chain, this well-presented terraced home has been fully refurbished in recent years to create a modern and stylish property with fresh, neutral decor throughout. On the ground floor, there are two reception rooms leading through to a modern fitted kitchen and a sleek bathroom...
Property Oracle says ..
This is a 3-bedroom terraced house in Fratton, Portsmouth. The interior has been modernized, particularly the kitchen and bathroom, presenting a fresh and appealing living space. While the exterior and garden need some attention, the property is well-located near local amenities and transportation links, including the Fratton train station. The asking price of £235,000 seems reasonable given the square footage and recent renovations, making it a potentially attractive option for first-time buyers or investors willing to invest in some landscaping.
Therefore, we give this property 6 / 10. *Disclaimer: This is our option and does constitute a recommendation or financial advice. Do your own research. *
- Price
- 7
- Condition
- 7
- Location
- 6
- Land
- 4
- Bedrooms
- 3
- Bathrooms
- 1
- Sqft (est)
- 757.45
The heatmap indicates the level of crime in the area. The color of the heatmap indicates the crime severity and recency.
Metrics Year-on-Year
- Average area value
- 225,874.00 £Increased by 4.56 %
- Est sale value
- 265,864.95 £Increased by 35.00 %
- Average area rental value
- 914.00 £/moDecreased by 25.20 %
- Est letting value
- 757.45 £/moUnchanged by 0.00 %
- Est rental Yield
- 4.86 %Decreased by 28.42 %
- Crime Rate
- 6.00 %Unchanged by 0.00 %
Agent Activity
Pearsons created the listing.
Nearby Schools
| Name | Type | Ofsted | Distance |
|---|---|---|---|
| Manor Infant And Nursery School | Community School | Good | 0.26 KM |
| New Horizons Primary School | Academy Converter | Good | 0.44 KM |
| Madani Academy | Other Independent School | Good | 0.45 KM |
| The Portsmouth Academy | Academy Sponsor Led | Good | 0.56 KM |
| North End And Willows Children'S Centre | Children's Centre | 0.60 KM |
Images
Nearby Streets
| Name | Average Price | Average Sqft | Distance |
|---|---|---|---|
| Drayton Road | £ 297,500 | 0 | 0.00 KM |
| Emsworth Road | £ 229,995 | 0 | 0.00 KM |
| Watts Road | £ 240,000 | 0 | 0.00 KM |
| Heathfield Road | £ 170,000 | 0 | 0.00 KM |
| Trafalgar Place | £ 0 | 0 | 0.00 KM |
Nearby Transport
| Name | NLC | TLC | Distance |
|---|---|---|---|
| Fratton | 5509 | FTN | 1.44 KM |
| Portsmouth And Southsea | 5537 | PMS | 1.96 KM |
| Hilsea | 5539 | HLS | 2.92 KM |
| Portsmouth Harbour | 5540 | PMH | 3.70 KM |
| Cosham | 5896 | CSA | 3.81 KM |
Nearby Listings
| Address | Price | Type | Score | Distance |
|---|---|---|---|---|
| Toronto Road, Portsmouth | £ 235,000 | BUY | 6 / 10 | 0.00 KM |
| Toronto Road, Buckland, Portsmouth, Hampshire | £ 145,500 | BUY | 6 / 10 | 0.01 KM |
| Toronto Road, Buckland, Portsmouth, Hampshire | £ 220,000 | BUY | 5 / 10 | 0.01 KM |
| Toronto Road, Portsmouth | £ 260,000 | BUY | 6 / 10 | 0.01 KM |
| Toronto Road, Portsmouth | £ 230,000 | BUY | 7 / 10 | 0.03 KM |
Nearby Properties
| Address | Price | Distance |
|---|---|---|
| 2a Toronto Road | £ 128,000 | 0.01 KM |
| 14 Toronto Road | £ 125,000 | 0.01 KM |
| 3 Toronto Road | £ 136,000 | 0.01 KM |
| 1 Toronto Road | £ 180,500 | 0.01 KM |
| 21 Toronto Road | £ 225,000 | 0.01 KM |