Killerton Park Drive, West Bridgford, Nottingham, Nottinghamshire, NG2
By Rex Gooding
£ 400,000
Reviews
3 out of 5 stars
Rex Gooding says ..
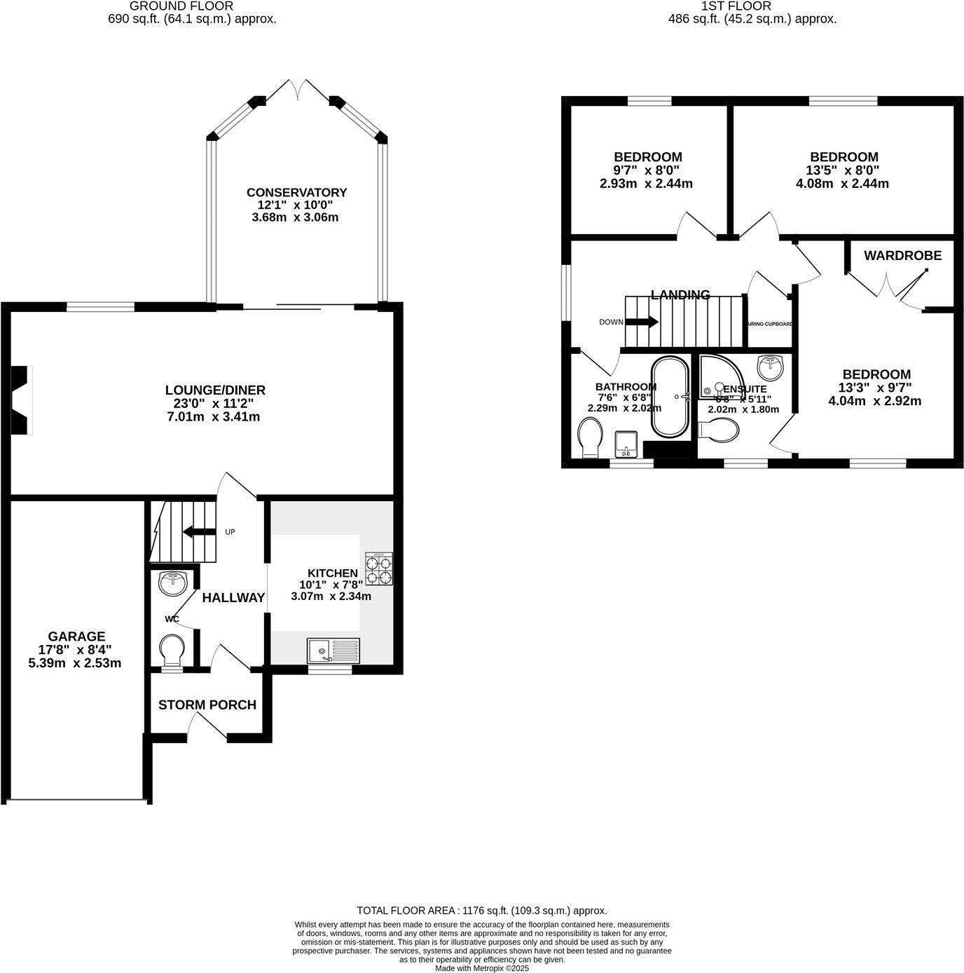
Guide Price £400,000 - £425,000. Looking for a modern detached home in West Bridgford? This three-bedroom property offers a bright conservatory, private garden, garage, and easy access to local schools and amenities. Located in West Bridgford, this modern detached house off...
Property Oracle says ..
This detached property on Killerton Park Drive in West Bridgford presents a solid opportunity. Its location is a major draw, being situated in a sought-after area with good schools and transport links. The house itself is in generally good order, with a modern kitchen being a particular highlight. While some areas could benefit from cosmetic improvements, the property is move-in ready. The garden offers a pleasant outdoor space, and the price appears reasonable compared to the local average. Overall, this property is a well-rounded option for families or anyone seeking a comfortable home in a desirable location.
Therefore, we give this property 7 / 10. *Disclaimer: This is our option and does constitute a recommendation or financial advice. Do your own research. *
- Price
- 7
- Condition
- 7
- Location
- 8
- Land
- 7
- Bedrooms
- 3
- Bathrooms
- 1
- Sqft (est)
- 1,176.00
The heatmap indicates the level of crime in the area. The color of the heatmap indicates the crime severity and recency.
Metrics Year-on-Year
- Average area value
- 307,772.00 £Increased by 19.74 %
- Est sale value
- 615,048.00 £Increased by 90.88 %
- Average area rental value
- 871.00 £/moDecreased by 8.32 %
- Est letting value
- 1,176.00 £/moUnchanged by 0.00 %
- Est rental Yield
- 3.40 %Decreased by 23.42 %
- Crime Rate
- 2.00 %Unchanged by 0.00 %
Agent Activity
Rex Gooding created the listing.
Nearby Schools
| Name | Type | Ofsted | Distance |
|---|---|---|---|
| Greythorn Primary School | Academy Converter | Good | 0.95 KM |
| Heymann Primary And Nursery School | Academy Converter | Good | 1.21 KM |
| The West Bridgford School | Academy Converter | Outstanding | 1.41 KM |
| The Becket School | Academy Converter | Good | 1.43 KM |
| Farnborough Spencer Academy | Academy Sponsor Led | 1.77 KM |
Images
Nearby Streets
| Name | Average Price | Average Sqft | Distance |
|---|---|---|---|
| Landmere Lane | £ 0 | 0 | 0.00 KM |
| Queensbury Avenue | £ 0 | 0 | 0.00 KM |
| Cheshire Court | £ 270,000 | 0 | 0.00 KM |
| Saint Mawes Avenue | £ 0 | 0 | 0.00 KM |
| The Cherries | £ 360,000 | 0 | 0.00 KM |
Nearby Transport
| Name | NLC | TLC | Distance |
|---|---|---|---|
| Nottingham | 1826 | NOT | 3.60 KM |
| Beeston | 1625 | BEE | 6.20 KM |
| Attenborough | 1624 | ATB | 8.85 KM |
| Netherfield | 6241 | NET | 9.48 KM |
| Carlton | 6201 | CTO | 9.82 KM |
Nearby Listings
| Address | Price | Type | Score | Distance |
|---|---|---|---|---|
| Killerton Park Drive, West Bridgford, Nottingham, Nottinghamshire, NG2 | £ 400,000 | BUY | 7 / 10 | 0.00 KM |
| Killerton Park Drive, West Bridgford | £ 765,000 | BUY | 7 / 10 | 0.08 KM |
| Hatfield Drive, West Bridgford, Nottingham, Nottinghamshire, NG2 | £ 595,000 | BUY | 7 / 10 | 0.10 KM |
| Cranford Gardens, West Bridgford, Nottinghamshire, NG2 | £ 400,000 | BUY | 7 / 10 | 0.16 KM |
| Cranford Gardens, West Bridgford, Nottingham, Nottinghamshire, NG2 | £ 265,000 | BUY | 5 / 10 | 0.18 KM |
Nearby Properties
| Address | Price | Distance |
|---|---|---|
| 4 Orchid Close | £ 325,000 | 0.05 KM |
| 1 Orchid Close | £ 350,000 | 0.05 KM |
| 3 Orchid Close | £ 395,000 | 0.05 KM |
| 8 Hatfield Drive | £ 245,000 | 0.12 KM |
| 3 Hatfield Drive | £ 410,000 | 0.12 KM |