ST
Melbourne Road, Clacton on Sea
By Stoneridge Estates
£ 249,995
Reviews
3 out of 5 stars
Stoneridge Estates says ..
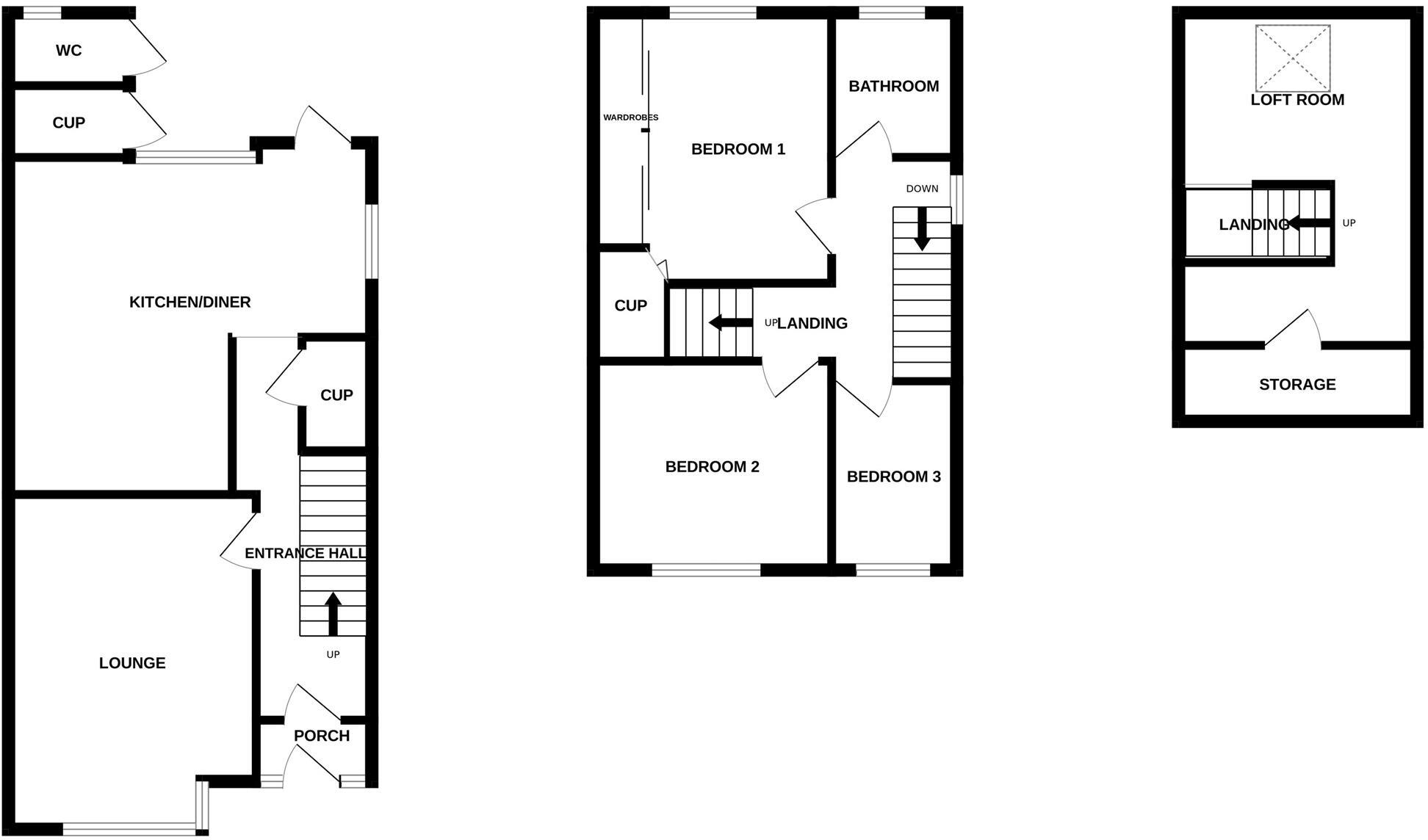
Move straight into this vastly improved and spacious three bedroom semi detached family home which boasts an additional loft room accessed via staircase, two ground floor reception rooms with brand new kitchen and three piece bathroom suite. The property enjoys off road parking via driveway (cont.)
Property Oracle says ..
Therefore, we give this property 6 / 10. *Disclaimer: This is our option and does constitute a recommendation or financial advice. Do your own research. *
- Price
- 8
- Condition
- 6
- Location
- 7
- Land
- 6
- Bedrooms
- 3
- Bathrooms
- 1
- Sqft (est)
- 1,241.00
The heatmap indicates the level of crime in the area. The color of the heatmap indicates the crime severity and recency.
Metrics Year-on-Year
- Average area value
- 350,323.00 £Decreased by 1.18 %
- Est sale value
- 534,871.00 £Increased by 20.73 %
- Average area rental value
- 1,334.00 £/moDecreased by 2.49 %
- Est letting value
- 1,241.00 £/moUnchanged by 0.00 %
- Est rental Yield
- 4.57 %Decreased by 1.30 %
- Crime Rate
- 3.00 %Unchanged by 0.00 %
from 354,508.00 £
from 443,037.00 £
from 1,368.00 £/mo
from 1,241.00 £/mo
from 4.63 %
from 3.00 %
Agent Activity
Stoneridge Estates created the listing.
Nearby Schools
| Name | Type | Ofsted | Distance |
|---|---|---|---|
| White Hall Academy | Academy Sponsor Led | Good | 0.31 KM |
| Clacton Coastal Academy | Academy Sponsor Led | Requires improvement | 0.39 KM |
| Alton Park Junior School | Academy Converter | 1.02 KM | |
| Oakwood Infant And Nursery School | Community School | Good | 1.03 KM |
| Ten2 St. James' Family Hub Delivery Site | Children's Centre Linked Site | 1.03 KM |
Images
Nearby Streets
| Name | Average Price | Average Sqft | Distance |
|---|---|---|---|
| Saint Martins Close | £ 0 | 0 | 0.00 KM |
| Saint Anns Road | £ 0 | 0 | 0.00 KM |
| Olivers Road | £ 0 | 0 | 0.00 KM |
| Pathfields Road | £ 0 | 0 | 0.00 KM |
| Estuary Crescent | £ 0 | 0 | 0.00 KM |
Nearby Transport
| Name | NLC | TLC | Distance |
|---|---|---|---|
| Clacton-On-Sea | 6850 | CLT | 1.10 KM |
| Thorpe-Le-Soken | 6857 | TLS | 5.75 KM |
| Weeley | 6859 | WEE | 6.91 KM |
| Kirby Cross | 6862 | KBX | 9.06 KM |
Nearby Listings
| Address | Price | Type | Score | Distance |
|---|---|---|---|---|
| Melbourne Road, Clacton on Sea | £ 249,995 | BUY | 6 / 10 | 0.00 KM |
| Melbourne Road, Clacton-on-Sea | £ 250,000 | BUY | 7 / 10 | 0.00 KM |
| Melbourne Road, Clacton-On-Sea | £ 290,000 | BUY | 6 / 10 | 0.00 KM |
| Melbourne Road, Clacton-On-Sea | £ 260,000 | BUY | 7 / 10 | 0.00 KM |
| Thomas Road, Clacton-on-Sea | £ 210,000 | BUY | 6 / 10 | 0.08 KM |
Nearby Properties
| Address | Price | Distance |
|---|---|---|
| 27 Melbourne Road | £ 177,000 | 0.00 KM |
| 21 Melbourne Road | £ 145,000 | 0.00 KM |
| 18 Melbourne Road | £ 73,000 | 0.00 KM |
| 29 Melbourne Road | £ 126,000 | 0.00 KM |
| 47 Melbourne Road | £ 130,000 | 0.00 KM |