Winkworth says ..
A lovely four bedroom family home close to amenities and transport at Kensal Green Station on the Bakerloo and London Overground lines.
Property Oracle says ..
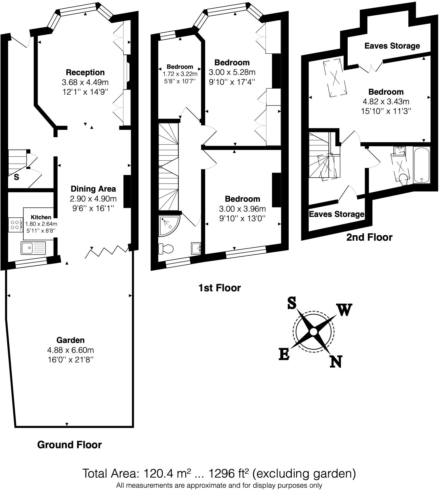
This four-bedroom Victorian terraced house in Trenmar Gardens, NW10, presents as a well-maintained and stylish family home. The property benefits from a recent refurbishment, evident in the modern kitchen and bathrooms. The interior is tastefully decorated and incorporates original features with contemporary elements. The open-plan ground floor layout is ideal for family living, and the additional bedrooms provide ample space. The inclusion of a rear garden, however small, adds a desirable element.
The location offers excellent transport links via Kensal Green station, accessing both the Bakerloo and Overground lines. Several highly-rated primary schools are also nearby. However, the price point of £975,000 requires further consideration against comparable properties in the immediate vicinity to confirm market value. A lack of plot size information in the provided data makes determining value more difficult. A professional valuation and survey are highly recommended before committing to a purchase. Overall, the property presents a potentially attractive option for a family seeking convenient transport and good schools but requires careful price evaluation against the market. Buyers should conduct thorough due diligence to ensure the asking price aligns with comparable properties in the area.
Therefore, we give this property 6 / 10. *Disclaimer: This is our option and does constitute a recommendation or financial advice. Do your own research. *
- Price
- 7
- Condition
- 8
- Location
- 7
- Land
- 3
- Bedrooms
- 4
- Bathrooms
- 2
- Sqft (est)
- 1,295.97
The heatmap indicates the level of crime in the area. The color of the heatmap indicates the crime severity and recency.
Metrics Year-on-Year
- Average area value
- 541,667.00 £Decreased by 44.13 %
- Est sale value
- 1,201,364.19 £Decreased by 8.76 %
- Average area rental value
- 2,752.00 £/moIncreased by 10.17 %
- Est letting value
- 5,183.88 £/moIncreased by 100.00 %
- Est rental Yield
- 6.10 %Increased by 97.41 %
- Crime Rate
- 15.00 %Unchanged by 0.00 %
Agent Activity
Winkworth created the listing.
Nearby Schools
| Name | Type | Ofsted | Distance |
|---|---|---|---|
| Kenmont Primary School | Community School | Good | 0.33 KM |
| Furness Primary School | Academy Converter | Good | 0.76 KM |
| Princess Frederica Cofe Primary School | Voluntary Aided School | Good | 0.80 KM |
| College Green School And Services | Local Authority Nursery School | Outstanding | 0.81 KM |
| Treetops Children'S Centre | Children's Centre | 0.87 KM |
Images
Nearby Streets
| Name | Average Price | Average Sqft | Distance |
|---|---|---|---|
| Wrottesley Road | £ 0 | 0 | 0.00 KM |
| Wrottesley Road | £ 0 | 0 | 0.00 KM |
| Wrottesley Road | £ 0 | 0 | 0.00 KM |
| Wrottesley Road | £ 0 | 0 | 0.00 KM |
| Wrottesley Road | £ 0 | 0 | 0.00 KM |
Nearby Transport
| Name | NLC | TLC | Distance |
|---|---|---|---|
| Kensal Green | 1447 | KNL | 0.81 KM |
| Willesden Junction | 1457 | WIJ | 1.36 KM |
| Kensal Rise | 1448 | KNR | 1.42 KM |
| Brondesbury Park | 1438 | BSP | 2.67 KM |
| Harlesden | 1521 | HDN | 2.85 KM |
Nearby Listings
| Address | Price | Type | Score | Distance |
|---|---|---|---|---|
| Trenmar Gardens, London, NW10 | £ 975,000 | BUY | 6 / 10 | 0.00 KM |
| Trenmar Gardens, Kensal Green , London, NW10 | £ 220,000 | BUY | 5 / 10 | 0.01 KM |
| Trenmar Gardens, London, NW10 | £ 975,000 | BUY | 6 / 10 | 0.02 KM |
| Albany Court, Trenmar Gardens, Kensal Green, London, NW10 | £ 205,000 | BUY | 6 / 10 | 0.02 KM |
| Trenmar Gardens, London, NW10 | £ 299,950 | BUY | 6 / 10 | 0.03 KM |
Nearby Properties
| Address | Price | Distance |
|---|---|---|
| 1108b Harrow Road | £ 295,000 | 0.07 KM |
| 46 Napier Road | £ 760,000 | 0.09 KM |
| 50 Napier Road | £ 449,950 | 0.09 KM |
| 40b Napier Road | £ 565,000 | 0.09 KM |
| 8b Napier Road | £ 380,000 | 0.09 KM |