Hall Lane, Hagley, Stourbridge, DY9 9LL
By eXp Luxury
£ 600,000
Reviews
3 out of 5 stars
eXp Luxury says ..
Where heritage meets opportunity – a rare 18th century cottage in the heart of Hagley. Birch Cottage is a truly unique stone-built property, reputed to have once been the cattle counting house for Hagley Hall in the 1700s, and possibly one of the oldest surviving houses in the village. R...
Property Oracle says ..
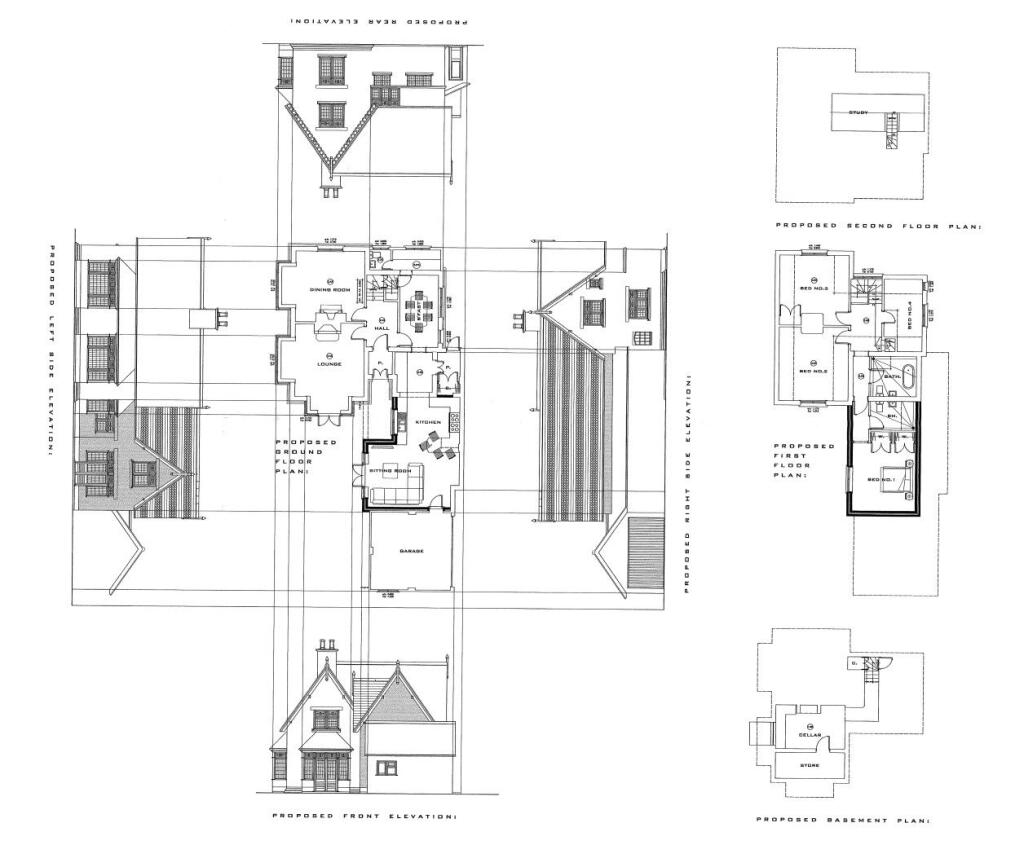
This is a well-presented detached property in the Hagley East area. The house offers three bedrooms and one bathroom, making it suitable for a small family or couple. The interior is in good condition, with a modern kitchen and bathroom, and the property benefits from a garden and a detached garage. The location is convenient for local schools and transportation, adding to its appeal. The asking price of £600,000 appears to be in line with the local market, making it a potentially attractive purchase.
Therefore, we give this property 7 / 10. *Disclaimer: This is our option and does constitute a recommendation or financial advice. Do your own research. *
- Price
- 7
- Condition
- 8
- Location
- 7
- Land
- 6
- Bedrooms
- 3
- Bathrooms
- 1
The heatmap indicates the level of crime in the area. The color of the heatmap indicates the crime severity and recency.
Metrics Year-on-Year
- Average area value
- 697,000.00 £Increased by 33.16 %
- Average area rental value
- 995.00 £/moDecreased by 49.62 %
- Est rental Yield
- 1.71 %Decreased by 62.25 %
- Crime Rate
- 18.00 %Unchanged by 0.00 %
Agent Activity
eXp Luxury created the listing.
Nearby Schools
| Name | Type | Ofsted | Distance |
|---|---|---|---|
| Hagley Primary School | Community School | Good | 1.35 KM |
| Sunfield Children'S Home Ltd | Other Independent Special School | Requires improvement | 1.55 KM |
| Conkers Children'S Centre | Children's Centre | 1.65 KM | |
| Ham Dingle Primary Academy | Academy Sponsor Led | 2.01 KM | |
| Hob Green Primary School | Academy Converter | Good | 2.10 KM |
Images
Nearby Streets
| Name | Average Price | Average Sqft | Distance |
|---|---|---|---|
| Monument Lane | £ 0 | 0 | 0.00 KM |
| Hagley Hill | £ 0 | 0 | 0.00 KM |
| Western Road | £ 875,000 | 0 | 0.00 KM |
| The Paddock | £ 0 | 0 | 0.00 KM |
| Violet Lane | £ 0 | 0 | 0.00 KM |
Nearby Transport
| Name | NLC | TLC | Distance |
|---|---|---|---|
| Hagley | 4577 | HAG | 2.42 KM |
| Stourbridge Junction | 4646 | SBJ | 2.59 KM |
| Stourbridge Town | 4643 | SBT | 3.79 KM |
| Lye (West Midlands) | 4640 | LYE | 3.90 KM |
| Blakedown | 4574 | BKD | 6.15 KM |
Nearby Listings
| Address | Price | Type | Score | Distance |
|---|---|---|---|---|
| Hall Lane, Hagley, Stourbridge, DY9 9LL | £ 600,000 | BUY | 7 / 10 | 0.00 KM |
| Hall Lane, Hagley, Stourbridge | £ 725,000 | BUY | 7 / 10 | 0.03 KM |
| School Lane, Hagley, Stourbridge | £ 425,000 | BUY | 6 / 10 | 0.15 KM |
| Birmingham Road, Hagley | £ 475,000 | BUY | 6 / 10 | 0.16 KM |
| Birmingham Road, Hagley | £ 399,500 | BUY | Unknown | 0.16 KM |
Nearby Properties
| Address | Price | Distance |
|---|---|---|
| 28 Hall Lane | £ 390,000 | 0.01 KM |
| 5 Hall Lane | £ 265,000 | 0.01 KM |
| 30 Hall Lane | £ 382,000 | 0.01 KM |
| 8 Hall Lane | £ 416,000 | 0.01 KM |
| 22 Hall Lane | £ 698,000 | 0.01 KM |