Lang Drive, Wadebridge, PL27
By Cole Rayment & White
£ 128,000
Reviews
3 out of 5 stars
Cole Rayment & White says ..
A fantastic opportunity to purchase a shared ownership extremely well presented modern 3 bedroom house with great views, parking and landscaped garden. Leasehold. Council Tax Band C. EPC Rating B.
Property Oracle says ..
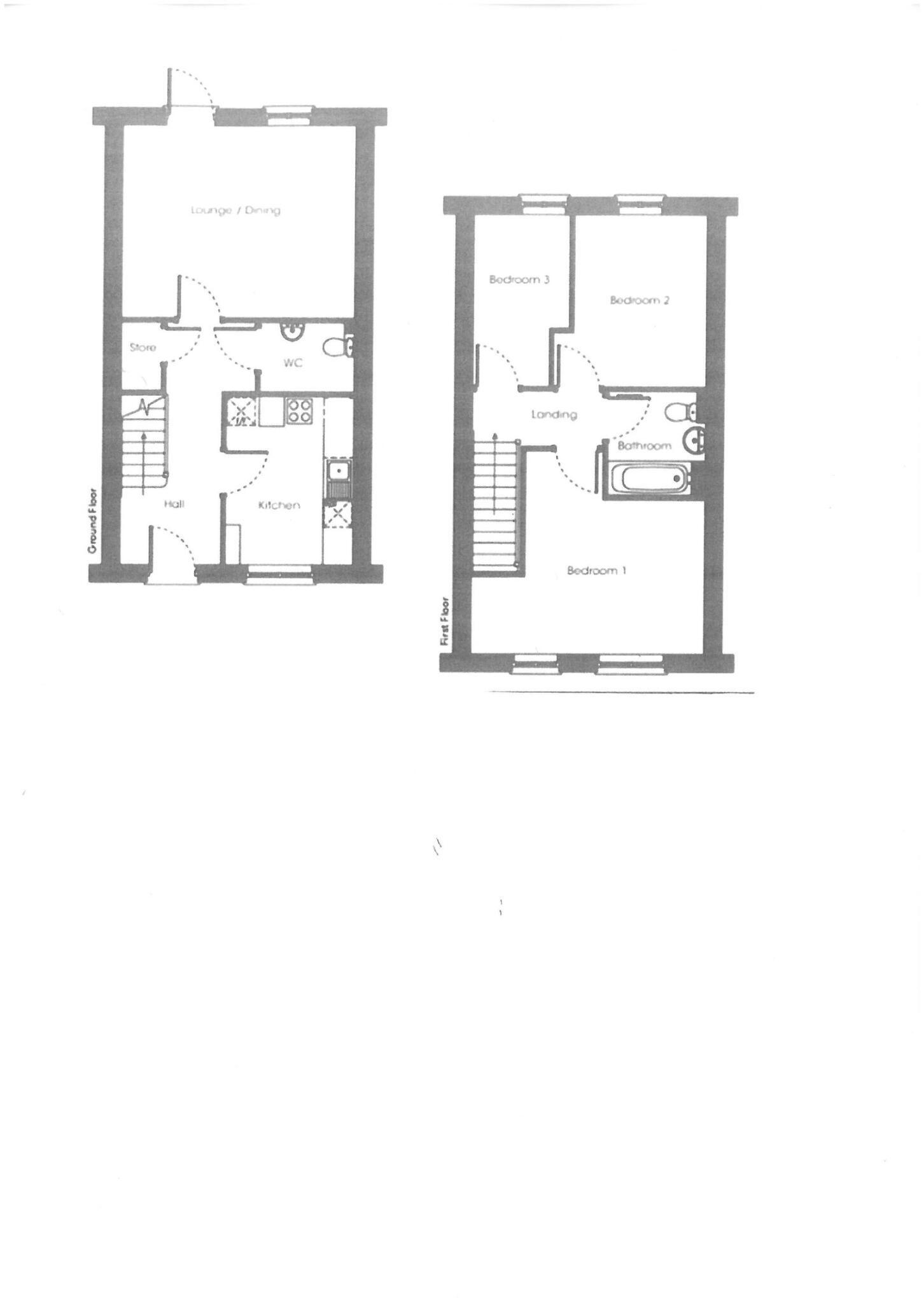
This three-bedroom semi-detached house in Wadebridge, Cornwall is listed at £128,000. The property is modern and well-maintained, as seen in the provided images. It features two bathrooms, a good-sized garden with a shed, and is conveniently located near several highly-rated primary and secondary schools. While the average house price in the area is significantly higher (£468,178), this property is considerably smaller (640 sqft compared to the average of 1,992 sqft) and its list price reflects this difference. The location is positive, given its proximity to good schools. However, information on nearby transportation links is missing, which could impact the overall desirability.
Therefore, we give this property 7 / 10. *Disclaimer: This is our option and does constitute a recommendation or financial advice. Do your own research. *
- Price
- 7
- Condition
- 9
- Location
- 8
- Land
- 7
- Bedrooms
- 3
- Bathrooms
- 2
- Sqft (est)
- 640.00
The heatmap indicates the level of crime in the area. The color of the heatmap indicates the crime severity and recency.
Metrics Year-on-Year
- Average area value
- 1,036,538.00 £Increased by 46.88 %
- Est sale value
- 499,840.00 £Increased by 37.74 %
- Average area rental value
- 1,192.00 £/moDecreased by 22.50 %
- Est letting value
- 0.00 £/moDecreased by 100.00 %
- Est rental Yield
- 1.38 %Decreased by 47.33 %
- Crime Rate
- 18.00 %Unchanged by 0.00 %
Agent Activity
Cole Rayment & White created the listing.
Nearby Schools
| Name | Type | Ofsted | Distance |
|---|---|---|---|
| Wadebridge Primary Academy | Academy Converter | Good | 0.62 KM |
| Wadebridge School | Academy Converter | Good | 0.62 KM |
| Wadebridge & Camelford Children'S Centre | Children's Centre | 0.74 KM | |
| St Breock Primary School | Academy Converter | Good | 1.26 KM |
| St Kew Ace Academy | Academy Converter | Good | 5.95 KM |
Images
Nearby Streets
| Name | Average Price | Average Sqft | Distance |
|---|---|---|---|
| Hill Park | £ 0 | 0 | 0.00 KM |
| The Camel Trail | £ 0 | 0 | 0.00 KM |
| Orchard Walk | £ 0 | 0 | 0.00 KM |
| Valley View | £ 425,000 | 0 | 0.00 KM |
| Cleavelands | £ 0 | 0 | 0.00 KM |
Nearby Listings
| Address | Price | Type | Score | Distance |
|---|---|---|---|---|
| Lang Drive, Wadebridge, PL27 | £ 128,000 | BUY | 7 / 10 | 0.00 KM |
| Wadebridge, Cornwall | £ 425,000 | BUY | 7 / 10 | 0.06 KM |
| Egloshayle Road, Wadebridge, Cornwall, PL27 | £ 325,000 | BUY | 5 / 10 | 0.08 KM |
| Egloshayle Road, Wadebridge, Cornwall, PL27 | £ 700,000 | BUY | 7 / 10 | 0.08 KM |
| Egloshayle Road, Wadebridge, Cornwall, PL27 | £ 175,000 | BUY | 6 / 10 | 0.08 KM |
Nearby Properties
| Address | Price | Distance |
|---|---|---|
| 16 Egloshayle Road | £ 100,000 | 0.08 KM |
| 27 Egloshayle Road | £ 400,000 | 0.08 KM |
| 32 Egloshayle Road | £ 360,000 | 0.08 KM |
| 21 Egloshayle Road | £ 360,000 | 0.08 KM |
| 18 Egloshayle Road | £ 322,500 | 0.08 KM |