Bazely & Co says ..
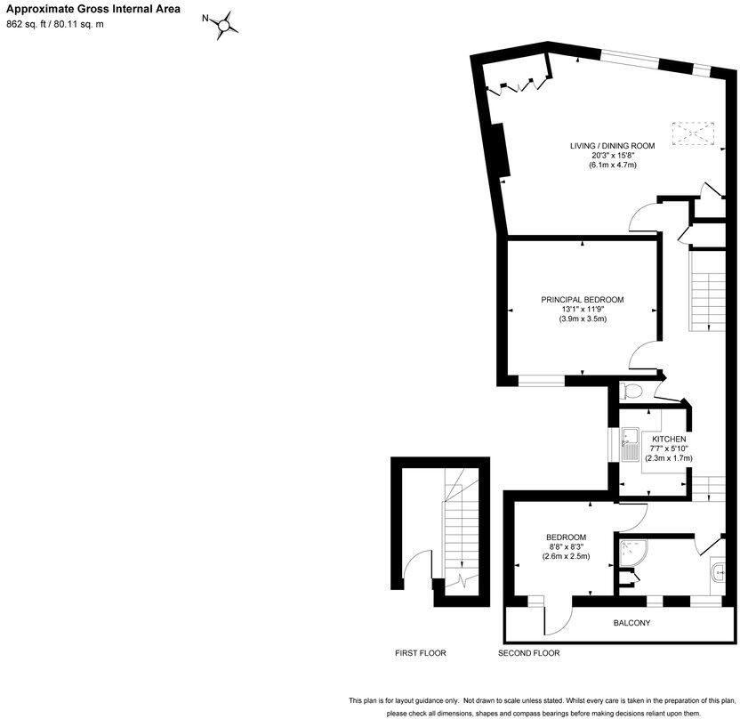
Ideally situated on Shepperton’s vibrant High Street, this well-presented two-bedroom top-floor apartment offers generous living space and a private rear-facing balcony. Spanning over 860 sq ft, the property is noticeably larger than most two-bedroom apartments in the area. The accommoda...
Property Oracle says ..
This is a two-bedroom apartment located on the High Street in Shepperton. The property is in good condition and benefits from its central location, with close proximity to local amenities, schools, and transportation links. The apartment includes a modern kitchen and bathroom, and a balcony. The price per square foot is higher than the average for the area, but this is offset by the property’s good condition.
Therefore, we give this property 6 / 10. *Disclaimer: This is our option and does constitute a recommendation or financial advice. Do your own research. *
- Price
- 7
- Condition
- 8
- Location
- 7
- Land
- 3
- Bedrooms
- 2
- Bathrooms
- 1
- Sqft (est)
- 476.95
The heatmap indicates the level of crime in the area. The color of the heatmap indicates the crime severity and recency.
Metrics Year-on-Year
- Average area value
- 587,488.00 £Decreased by 12.73 %
- Est sale value
- 212,719.70 £Decreased by 26.64 %
- Average area rental value
- 2,195.00 £/moIncreased by 2.33 %
- Est letting value
- 476.95 £/moUnchanged by 0.00 %
- Est rental Yield
- 4.48 %Increased by 17.28 %
- Crime Rate
- 43.00 %Unchanged by 0.00 %
Agent Activity
Bazely & Co created the listing.
Nearby Schools
| Name | Type | Ofsted | Distance |
|---|---|---|---|
| St Nicholas Cofe Primary School | Voluntary Aided School | Good | 0.33 KM |
| Manor Mead School | Community Special School | Outstanding | 0.56 KM |
| Halliford School | Other Independent School | 0.78 KM | |
| Thamesmead School | Academy Converter | Good | 0.80 KM |
| Saxon Primary School | Academy Converter | Good | 1.49 KM |
Images
Nearby Streets
| Name | Average Price | Average Sqft | Distance |
|---|---|---|---|
| Pearmain Close | £ 0 | 0 | 0.00 KM |
| Ferry Square | £ 1,150,000 | 0 | 0.00 KM |
| Church Square | £ 499,950 | 0 | 0.00 KM |
| Preston Road | £ 0 | 0 | 0.00 KM |
| Squire's Road | £ 565,000 | 0 | 0.00 KM |
Nearby Transport
| Name | NLC | TLC | Distance |
|---|---|---|---|
| Shepperton | 5605 | SHP | 0.28 KM |
| Upper Halliford | 5613 | UPH | 2.78 KM |
| Weybridge | 5577 | WYB | 3.90 KM |
| Sunbury | 5608 | SUU | 4.27 KM |
| Walton-On-Thames | 5575 | WAL | 4.57 KM |
Nearby Listings
| Address | Price | Type | Score | Distance |
|---|---|---|---|---|
| High Street, Shepperton, TW17 | £ 275,000 | BUY | 6 / 10 | 0.00 KM |
| High Street, Shepperton | £ 230,000 | BUY | 5 / 10 | 0.01 KM |
| High Street, SHEPPERTON | £ 300,000 | BUY | 6 / 10 | 0.02 KM |
| High Street, Shepperton, TW17 | £ 325,000 | BUY | Unknown | 0.04 KM |
| 11 Laleham Road, Shepperton, Surrey, TW17 | £ 300,000 | BUY | Unknown | 0.05 KM |
Nearby Properties
| Address | Price | Distance |
|---|---|---|
| 17a High Street | £ 321,000 | 0.03 KM |
| 9a High Street | £ 225,000 | 0.03 KM |
| 3a High Street | £ 255,000 | 0.03 KM |
| 7b High Street | £ 169,950 | 0.03 KM |
| 21a High Street | £ 360,000 | 0.03 KM |