Bychoice says ..
SHAREOWNERSHIP 40% Share Advertised - We are delighted to welcome these sharedownership homes for sale on the new Abbots Vale development, supplied by Havebury Housing. 1 Bedroom, lounge/diner, Ground Floor WC, allocated parking. Shares available between 10%-75%.
Property Oracle says ..
This terraced property on Beauregard Road, Bury St Edmunds, presents a promising opportunity. The house appears to be in excellent condition, with a modern interior and a well-maintained garden. Its location in the Southgate locality offers convenient access to schools, transportation, and local amenities. The asking price of £104,000 seems competitive, especially when compared to the average property prices in the area. Overall, this property combines affordability, modern living, and a desirable location, making it an attractive option for potential buyers.
Therefore, we give this property 7 / 10. *Disclaimer: This is our option and does constitute a recommendation or financial advice. Do your own research. *
- Price
- 8
- Condition
- 9
- Location
- 7
- Land
- 6
- Bedrooms
- 1
- Bathrooms
- 1
- Sqft (est)
- 6,594.00
The heatmap indicates the level of crime in the area. The color of the heatmap indicates the crime severity and recency.
Metrics Year-on-Year
- Average area value
- 488,748.00 £Decreased by 5.95 %
- Est sale value
- 3,283,812.00 £Decreased by 4.60 %
- Average area rental value
- 1,587.00 £/moDecreased by 5.76 %
- Est letting value
- 6,594.00 £/moUnchanged by 0.00 %
- Est rental Yield
- 3.90 %Increased by 0.26 %
- Crime Rate
- 0.00 %
Agent Activity
Bychoice created the listing.
Nearby Schools
| Name | Type | Ofsted | Distance |
|---|---|---|---|
| South Lee School | Other Independent School | 1.10 KM | |
| Hardwick Children'S Centre | Children's Centre | 1.47 KM | |
| Hardwick Primary School | Academy Converter | 1.65 KM | |
| Riverwalk School | Academy Special Converter | 1.70 KM | |
| Sebert Wood Community Primary School | Community School | Outstanding | 1.90 KM |
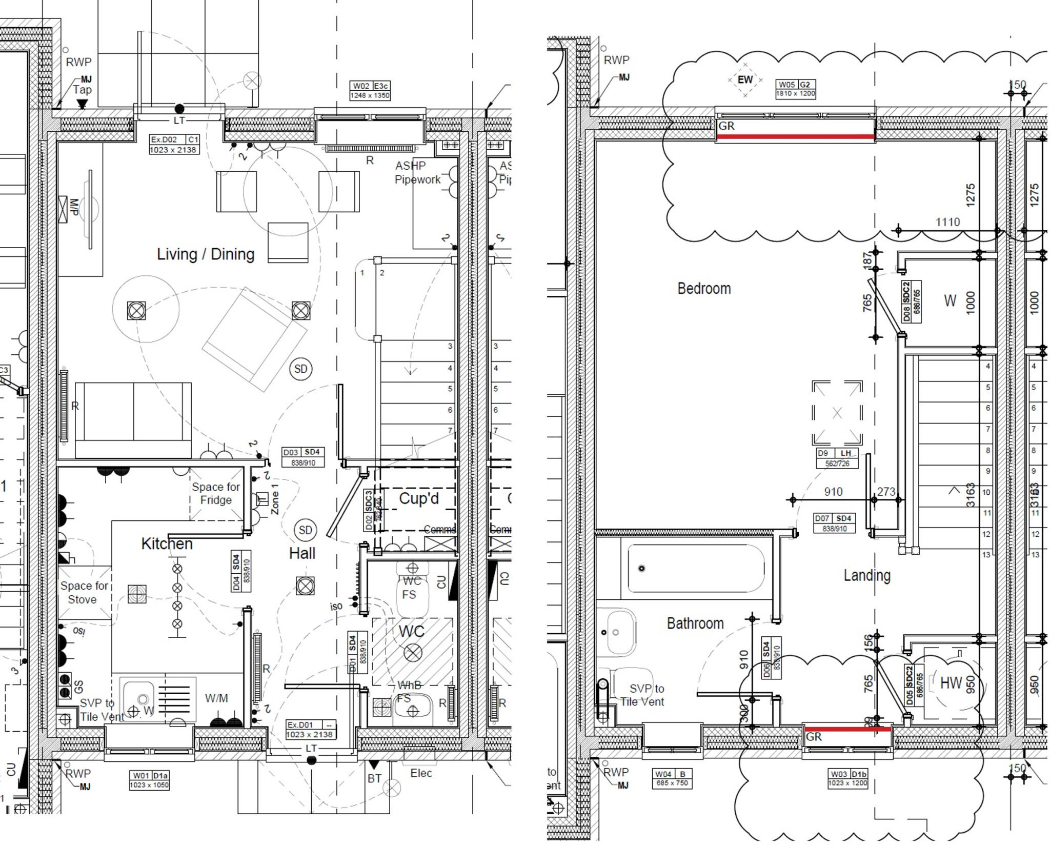
Images
Nearby Streets
| Name | Average Price | Average Sqft | Distance |
|---|---|---|---|
| Nowton Road | £ 647,498 | 0 | 0.00 KM |
| Vale Lane | £ 180,000 | 0 | 0.00 KM |
| Victory Close | £ 0 | 0 | 0.00 KM |
| Haven Close | £ 0 | 0 | 0.00 KM |
| Raven Road | £ 255,000 | 0 | 0.00 KM |
Nearby Transport
| Name | NLC | TLC | Distance |
|---|---|---|---|
| Bury St Edmunds | 7008 | BSE | 3.94 KM |
| Thurston | 7356 | TRS | 8.51 KM |
Nearby Listings
| Address | Price | Type | Score | Distance |
|---|---|---|---|---|
| Beauregard Road, Bury St Edmunds | £ 143,000 | BUY | 7 / 10 | 0.00 KM |
| Beauregard Road, Bury St Edmunds | £ 143,000 | BUY | 7 / 10 | 0.00 KM |
| Beauregard Road, Bury St Edmunds | £ 104,000 | BUY | 7 / 10 | 0.00 KM |
| Sicklesmere Road, Bury St Edmunds, Suffolk | £ 380,000 | BUY | Unknown | 0.39 KM |
| Sicklesmere Road, Bury St Edmunds, Suffolk | £ 410,000 | BUY | 7 / 10 | 0.39 KM |
Nearby Properties
| Address | Price | Distance |
|---|---|---|
| 75 Sicklesmere Road | £ 225,000 | 0.62 KM |
| 87 Sicklesmere Road | £ 211,000 | 0.62 KM |
| 65 Sicklesmere Road | £ 248,450 | 0.62 KM |
| 93 Sicklesmere Road | £ 470,000 | 0.62 KM |
| 97 Sicklesmere Road | £ 277,500 | 0.62 KM |