Minors & Brady says ..
Situated in the heart of Stalham, this beautifully presented chain-free family home offers spacious, high-quality accommodation within easy reach of High Street amenities. Previously a successful holiday let generating over £22,000 gross income annually, this property has also proven to be a prof...
Property Oracle says ..
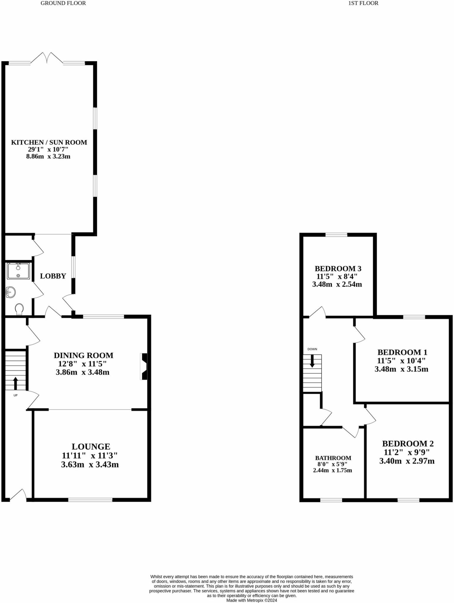
This three-bedroom, two-bathroom property located on St. Johns Road in Stalham, North Norfolk presents itself as a charming family home. The property boasts a well-maintained interior that appears to have undergone recent modernisation. The kitchen is modern and spacious with a light and airy feel and is open plan to the dining area and family living area which is also generously sized. The bedrooms are adequately sized and are furnished to a good standard. Exterior images suggest a well kept garden, ideal for outdoor enjoyment. The property is situated in the attractive village of Stalham, offering a desirable balance between rural and convenient living. While not directly on the doorstep, train stations are relatively accessible via transport although the distance to these is not insignificant. The proximity of several schools adds to its suitability for families. However, a thorough professional survey would be recommended to assess the property’s structural condition and any potential underlying issues prior to purchase. The absence of comparative pricing data in the surrounding area makes it more difficult to evaluate the property’s overall value in the current market. Therefore, further market research to compare the list price to current local comparable property data is recommended before a final purchasing decision is made.
Therefore, we give this property 6 / 10. *Disclaimer: This is our option and does constitute a recommendation or financial advice. Do your own research. *
- Price
- 7
- Condition
- 8
- Location
- 7
- Land
- 4
- Bedrooms
- 3
- Bathrooms
- 2
- Sqft (est)
- 943.67
The heatmap indicates the level of crime in the area. The color of the heatmap indicates the crime severity and recency.
Metrics Year-on-Year
- Average area value
- 462,500.00 £Increased by 64.84 %
- Est sale value
- 278,382.65 £Decreased by 0.34 %
- Average area rental value
- 1,250.00 £/moIncreased by 66.67 %
- Est letting value
- 0.00 £/mo
- Est rental Yield
- 3.24 %Increased by 0.93 %
- Crime Rate
- 46.00 %Unchanged by 0.00 %
Agent Activity
Minors & Brady created the listing.
Nearby Schools
| Name | Type | Ofsted | Distance |
|---|---|---|---|
| Stalham And Sutton Children'S Centre | Children's Centre | 0.61 KM | |
| Stalham Infant School And Nursery | Academy Converter | 0.67 KM | |
| Stalham High School | Academy Sponsor Led | Good | 0.67 KM |
| Stalham Academy | Academy Sponsor Led | Good | 1.54 KM |
| The Stables Independent School | Other Independent Special School | Requires improvement | 2.09 KM |
Images
Nearby Streets
| Name | Average Price | Average Sqft | Distance |
|---|---|---|---|
| Baker Street | £ 300,000 | 0 | 0.00 KM |
| Recreation Road | £ 0 | 0 | 0.00 KM |
| Chapelfield | £ 947,500 | 0 | 0.00 KM |
| Wilson Road | £ 366,667 | 0 | 0.00 KM |
| Granville Close | £ 0 | 0 | 0.00 KM |
Nearby Listings
| Address | Price | Type | Score | Distance |
|---|---|---|---|---|
| St. Johns Road, Stalham, NR12 | £ 125,000 | BUY | 6 / 10 | 0.02 KM |
| St. Johns Road, Stalham, Norwich | £ 290,000 | BUY | 7 / 10 | 0.06 KM |
| Lawns Loke, Norwich, NR12 | £ 325,000 | BUY | 7 / 10 | 0.08 KM |
| High Street, Stalham NR12 | £ 97,500 | BUY | 6 / 10 | 0.10 KM |
| St. Johns Road, Stalham | £ 290,000 | BUY | 7 / 10 | 0.12 KM |
Nearby Properties
| Address | Price | Distance |
|---|---|---|
| Glencairn | £ 268,400 | 0.06 KM |
| Barton | £ 260,000 | 0.06 KM |
| Harcourt House | £ 257,373 | 0.07 KM |
| Wesley House | £ 160,000 | 0.07 KM |
| Fernleigh | £ 124,950 | 0.07 KM |