Chancellors says ..
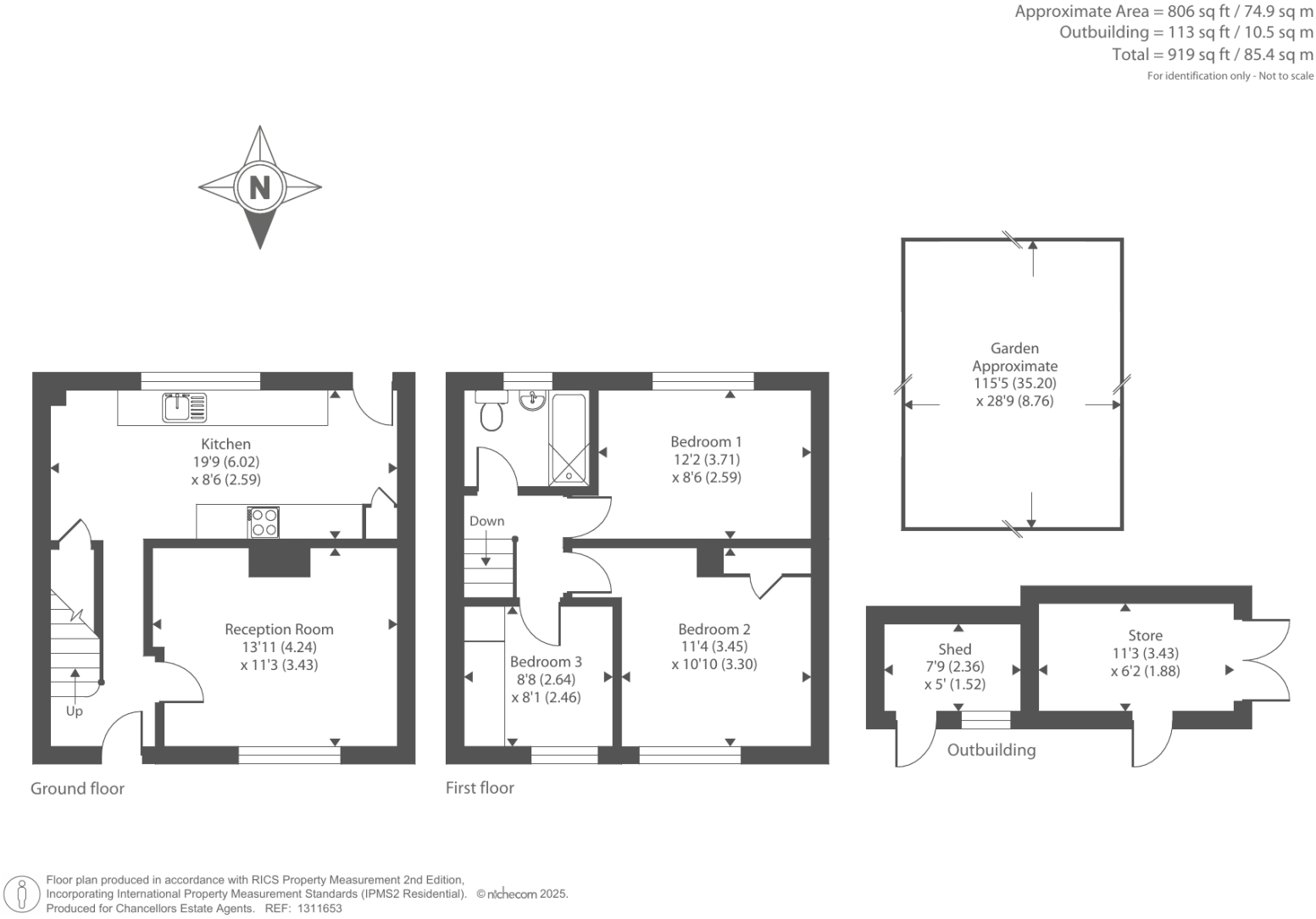
A three bedroom semi-detached home, situated in a cul-de-sac location in the ever popular village of East Hagbourne. The property benefits from a circa 100ft south facing rear garden, family bathroom and reception room along with driveway parking. Property will need some renovations.
Property Oracle says ..
Therefore, we give this property 6 / 10. *Disclaimer: This is our option and does constitute a recommendation or financial advice. Do your own research. *
- Price
- 8
- Condition
- 4
- Location
- 7
- Land
- 7
- Bedrooms
- 3
- Bathrooms
- 1
- Sqft (est)
- 622.45
The heatmap indicates the level of crime in the area. The color of the heatmap indicates the crime severity and recency.
Metrics Year-on-Year
- Average area value
- 446,826.00 £Increased by 0.22 %
- Est sale value
- 258,939.20 £Increased by 9.19 %
- Average area rental value
- 1,514.00 £/moDecreased by 8.57 %
- Est letting value
- 622.45 £/moUnchanged by 0.00 %
- Est rental Yield
- 4.07 %Decreased by 8.74 %
- Crime Rate
- 2.00 %Unchanged by 0.00 %
from 445,846.00 £
from 237,153.45 £
from 1,656.00 £/mo
from 622.45 £/mo
from 4.46 %
from 2.00 %
Agent Activity
Chancellors marked this listing as sold.
Chancellors created the listing.
Nearby Schools
| Name | Type | Ofsted | Distance |
|---|---|---|---|
| Hagbourne Church Of England Primary School | Voluntary Controlled School | Good | 0.20 KM |
| Northbourne Church Of England Primary School | Academy Converter | 0.82 KM | |
| St Birinus School | Academy Converter | Good | 0.95 KM |
| Willowcroft Community School | Academy Converter | Good | 1.06 KM |
| Didcot Children And Family Centre | Children's Centre | 1.55 KM |
Images
Nearby Streets
| Name | Average Price | Average Sqft | Distance |
|---|---|---|---|
| Lake Road | £ 0 | 0 | 0.00 KM |
| St. Andrews Crescent | £ 605,000 | 0 | 0.00 KM |
| The Crescent | £ 335,000 | 0 | 0.00 KM |
| Northbourne Court | £ 0 | 0 | 0.00 KM |
| Ernest Road | £ 0 | 0 | 0.00 KM |
Nearby Transport
| Name | NLC | TLC | Distance |
|---|---|---|---|
| Didcot Parkway | 3030 | DID | 2.00 KM |
| Appleford | 3109 | APF | 5.19 KM |
| Culham | 3107 | CUM | 6.80 KM |
| Cholsey | 3031 | CHO | 9.73 KM |
Nearby Listings
| Address | Price | Type | Score | Distance |
|---|---|---|---|---|
| East Hagbourne, Didcot, OX11 | £ 350,000 | BUY | 6 / 10 | 0.00 KM |
| Windsor Crescent, East Hagbourne, Didcot, OX11 | £ 700,000 | BUY | 7 / 10 | 0.04 KM |
| Main Road, East Hagbourne, OX11 | £ 550,000 | BUY | 6 / 10 | 0.14 KM |
| Wilcher Close, East Hagbourne, Didcot, Oxfordshire, OX11 | £ 240,000 | BUY | 7 / 10 | 0.18 KM |
| Wilcher Close, East Hagbourne, Didcot | £ 249,950 | BUY | 7 / 10 | 0.18 KM |
Nearby Properties
| Address | Price | Distance |
|---|---|---|
| 23 Harwood Road | £ 650,000 | 0.03 KM |
| 1 Harwood Road | £ 250,000 | 0.03 KM |
| 5a Harwood Road | £ 356,000 | 0.03 KM |
| 16 Harwood Road | £ 368,000 | 0.03 KM |
| 12 Harwood Road | £ 611,000 | 0.03 KM |