Pedder says ..
**OVER 50% NOW SOLD - Showhome Available to View** Ashwood Gate is a stunning collection of nine 1, 2 and 3-bedroom apartments, in the heart of Herne Hill.
Property Oracle says ..
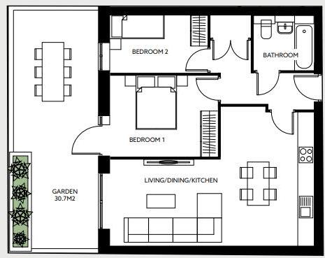
This is a modern 2-bedroom apartment located in Ashwood Gate, Herne Hill, London. The property is listed for £585,000 and has a square footage of 656.60 sqft. It features one bathroom and a small garden/patio area. The apartment is in excellent condition, with modern interiors and fixtures. The location is desirable, with good access to local amenities, transportation, and schools. Compared to the average property price in the area, this apartment appears to be reasonably priced.
Therefore, we give this property 7 / 10. *Disclaimer: This is our option and does constitute a recommendation or financial advice. Do your own research. *
- Price
- 7
- Condition
- 9
- Location
- 7
- Land
- 6
- Bedrooms
- 2
- Bathrooms
- 1
- Sqft (est)
- 656.60
- Lot (est)
- 330.45
The heatmap indicates the level of crime in the area. The color of the heatmap indicates the crime severity and recency.
Metrics Year-on-Year
- Average area value
- 1,158,333.00 £Decreased by 5.42 %
- Est sale value
- 636,902.00 £Increased by 15.48 %
- Average area rental value
- 2,794.00 £/moDecreased by 10.39 %
- Est letting value
- 1,313.20 £/moUnchanged by 0.00 %
- Est rental Yield
- 2.89 %Decreased by 5.25 %
- Crime Rate
- 1.00 %Unchanged by 0.00 %
Agent Activity
Pedder created the listing.
Nearby Schools
| Name | Type | Ofsted | Distance |
|---|---|---|---|
| St Saviour'S Church Of England Primary School | Voluntary Aided School | Good | 0.59 KM |
| The Michael Tippett School | Community Special School | Good | 0.60 KM |
| Herne Hill School | Other Independent School | 0.64 KM | |
| Jessop Primary School & Children'S Centre | Children's Centre | 0.69 KM | |
| Jessop Primary School | Community School | Outstanding | 0.69 KM |
Images
Nearby Streets
| Name | Average Price | Average Sqft | Distance |
|---|---|---|---|
| Deepdene Road | £ 0 | 0 | 0.00 KM |
| Red Post Hill | £ 0 | 0 | 0.00 KM |
| Tram Close | £ 0 | 0 | 0.00 KM |
| Half Moon Lane | £ 0 | 0 | 0.00 KM |
| Ruskin Park House | £ 0 | 0 | 0.00 KM |
Nearby Transport
| Name | NLC | TLC | Distance |
|---|---|---|---|
| North Dulwich | 5429 | NDL | 0.96 KM |
| Herne Hill | 5066 | HNH | 1.01 KM |
| Loughborough Junction | 5082 | LGJ | 1.10 KM |
| Denmark Hill | 5421 | DMK | 1.20 KM |
| East Dulwich | 5358 | EDW | 1.65 KM |
Nearby Listings
| Address | Price | Type | Score | Distance |
|---|---|---|---|---|
| Ashwood Gate, Herne Hill, SE24 | £ 585,000 | BUY | 7 / 10 | 0.00 KM |
| Ashwood Gate, Herne Hill, SE24 | £ 585,000 | BUY | 6 / 10 | 0.00 KM |
| Ashwood Gate, Herne Hill, SE24 | £ 450,000 | BUY | 7 / 10 | 0.00 KM |
| Herne Hill Road, London, SE24 | £ 1,800,000 | BUY | Unknown | 0.10 KM |
| Ashwood Gate, Herne Hill, SE24 | £ 615,000 | BUY | 6 / 10 | 0.10 KM |
Nearby Properties
| Address | Price | Distance |
|---|---|---|
| 24a Herne Hill | £ 325,000 | 0.01 KM |
| 20a Herne Hill | £ 475,000 | 0.01 KM |
| 20b Herne Hill | £ 120,000 | 0.01 KM |
| 22a Herne Hill | £ 447,500 | 0.01 KM |
| 24b Herne Hill | £ 330,000 | 0.01 KM |