Brooks Road, Formby, Liverpool, L37
By Stephanie Macnab Estate Agents
£ 390,000
Reviews
3 out of 5 stars
Stephanie Macnab Estate Agents says ..
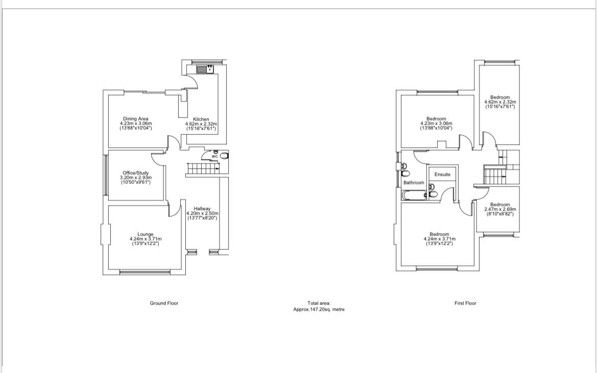
A Delightful Semi-Detached House in a Highly Sought-After AreaBuilt by the local family builder’s Rostron in the 1950s, this lovely semi-detached house has been thoughtfully EXTENDED to the rear by previous owners. Since their purchase in 2013, the current family has lovingly care...
Property Oracle says ..
This four-bedroom, two-bathroom house located on Brooks Road in Formby presents a compelling opportunity for buyers. Formby is a highly sought-after residential area, boasting good schools, convenient transport links via Formby train station (Merseyrail), and the attractive natural environment of Formby beach and pinewoods. The property itself appears well-maintained, with evidence of recent renovations or updates to the kitchen and at least one of the bathrooms. The interior is presented in a modern style, appealing to a range of buyers. The presence of a garden with potentially more outdoor space than the average property represents an additional draw. The list price requires further analysis to confirm the complete value proposition, as additional information like precise plot size and price-per-square-foot data in the immediate location are unavailable. Overall, the property combines a desirable location with a presentable and updated interior. This combination could make it attractive to various buyer profiles, particularly families and those looking for a comfortable home in a convenient location.
Therefore, we give this property 7 / 10. *Disclaimer: This is our option and does constitute a recommendation or financial advice. Do your own research. *
- Price
- 7
- Condition
- 7
- Location
- 8
- Land
- 6
- Bedrooms
- 4
- Bathrooms
- 2
- Sqft (est)
- 1,584.45
The heatmap indicates the level of crime in the area. The color of the heatmap indicates the crime severity and recency.
Metrics Year-on-Year
- Average area value
- 971,667.00 £Increased by 80.27 %
- Est sale value
- 1,034,645.85 £Increased by 79.89 %
- Average area rental value
- 4,667.00 £/moIncreased by 20.81 %
- Est letting value
- 4,753.35 £/moIncreased by 50.00 %
- Est rental Yield
- 5.76 %Decreased by 33.02 %
- Crime Rate
- 1.00 %Unchanged by 0.00 %
Agent Activity
Stephanie Macnab Estate Agents created the listing.
Nearby Schools
| Name | Type | Ofsted | Distance |
|---|---|---|---|
| St Luke'S Church Of England Primary School | Voluntary Controlled School | Good | 0.21 KM |
| Woodlands Primary School | Community School | Good | 0.46 KM |
| Range High School | Academy Converter | Requires improvement | 0.92 KM |
| St Jerome'S Catholic Primary School | Voluntary Aided School | Good | 1.03 KM |
| Formby High School | Academy Converter | 1.40 KM |
Images
Nearby Streets
| Name | Average Price | Average Sqft | Distance |
|---|---|---|---|
| Mere Road | £ 0 | 0 | 0.00 KM |
| Pinewood Close | £ 300,000 | 0 | 0.00 KM |
| The Pines | £ 0 | 0 | 0.00 KM |
| Springfield Close | £ 0 | 0 | 0.00 KM |
| Chestnut Way | £ 280,000 | 0 | 0.00 KM |
Nearby Transport
| Name | NLC | TLC | Distance |
|---|---|---|---|
| Formby | 2354 | FBY | 0.68 KM |
| Freshfield | 2355 | FRE | 1.67 KM |
| Hightown | 2356 | HTO | 3.69 KM |
| Ainsdale | 2350 | ANS | 6.74 KM |
| Hall Road | 2229 | HLR | 6.76 KM |
Nearby Listings
| Address | Price | Type | Score | Distance |
|---|---|---|---|---|
| Brooks Road, Formby, Liverpool, L37 | £ 390,000 | BUY | 7 / 10 | 0.00 KM |
| Brooks Road, Formby, Liverpool | £ 450,000 | BUY | 8 / 10 | 0.05 KM |
| Brooks Road, Formby, Liverpool | £ 425,000 | BUY | 6 / 10 | 0.10 KM |
| Woodlands Road, Formby, Liverpool, L37 | £ 600,000 | BUY | 8 / 10 | 0.14 KM |
| Bushbys Park, Formby, Liverpool, L37 | £ 380,000 | BUY | 6 / 10 | 0.18 KM |
Nearby Properties
| Address | Price | Distance |
|---|---|---|
| 2 Brooks Road | £ 1,950 | 0.01 KM |
| 23 Brooks Road | £ 300,000 | 0.01 KM |
| 9 Brooks Road | £ 220,000 | 0.01 KM |
| 28 Brooks Road | £ 295,000 | 0.01 KM |
| 12 Brooks Road | £ 218,500 | 0.01 KM |