Brookfield Road, Aldershot, Hampshire, GU12
By Bridges Estate Agents
£ 415,000
Reviews
3 out of 5 stars
Bridges Estate Agents says ..
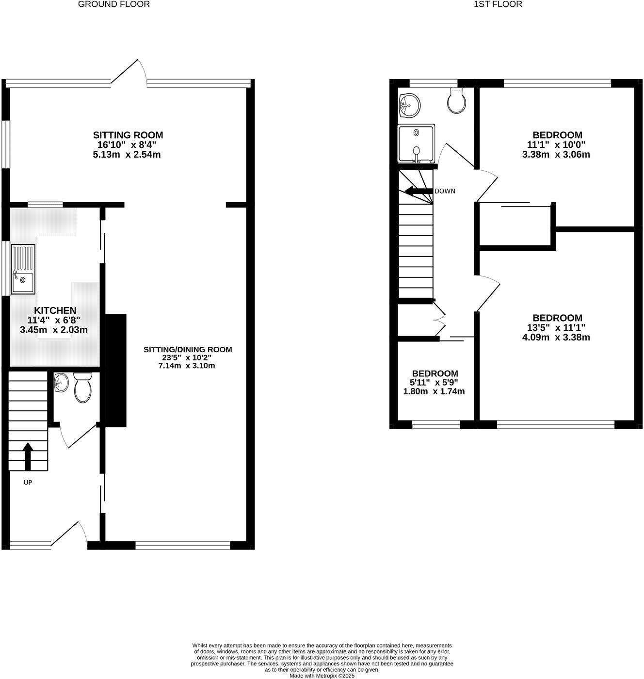
A well presented semi-detached family home, which is offered to the market for the first time in sixty years. Positioned in one of Aldershot's most sought after residential locations with the Blackwater river at the rear of the garden. Set over two floors and with internal accommodation presente...
Property Oracle says ..
This property is a 3-bedroom, 2-bathroom semi-detached house located in Aldershot, Hampshire. The property benefits from a good-sized garden, though it appears to be somewhat overgrown and in need of some attention. The interior of the house appears dated and would likely benefit from some modernisation. The kitchen and bathrooms appear functional but are also showing their age. The location is convenient, with several schools and transportation options within a reasonable distance. However, the provided information does not give a precise location score. The list price of £415,000 seems slightly high compared to the average price in the area (£307,026). However, the lack of square footage data for both the property and comparable properties makes a definitive price-per-square-foot comparison impossible. The property is likely to appeal to buyers looking for a project property with potential in a reasonably convenient location.
Therefore, we give this property 6 / 10. *Disclaimer: This is our option and does constitute a recommendation or financial advice. Do your own research. *
- Price
- 6
- Condition
- 6
- Location
- 7
- Land
- 7
- Bedrooms
- 3
- Bathrooms
- 2
- Sqft (est)
- 860.04
The heatmap indicates the level of crime in the area. The color of the heatmap indicates the crime severity and recency.
Metrics Year-on-Year
- Average area value
- 336,995.00 £Increased by 12.55 %
- Est sale value
- 391,318.20 £Increased by 43.53 %
- Average area rental value
- 1,032.00 £/moDecreased by 12.32 %
- Est letting value
- 860.04 £/moUnchanged by 0.00 %
- Est rental Yield
- 3.67 %Decreased by 22.25 %
- Crime Rate
- 2.00 %Unchanged by 0.00 %
Agent Activity
Bridges Estate Agents created the listing.
Nearby Schools
| Name | Type | Ofsted | Distance |
|---|---|---|---|
| Walsh Memorial Cofe Controlled Infant School | Voluntary Controlled School | Outstanding | 0.96 KM |
| Walsh Cofe Junior School | Voluntary Controlled School | Requires improvement | 0.96 KM |
| Shawfield Primary School | Community School | Good | 1.04 KM |
| Ash Manor School | Community School | Good | 1.27 KM |
| Maple Vue Children'S Centre | Children's Centre | 1.35 KM |
Images
Nearby Streets
| Name | Average Price | Average Sqft | Distance |
|---|---|---|---|
| Lea Way | £ 350,000 | 0 | 0.00 KM |
| Harvest Lane | £ 0 | 0 | 0.00 KM |
| Windsor Gardens | £ 0 | 0 | 0.00 KM |
| Tudor Court | £ 0 | 0 | 0.00 KM |
| Manor Road cycle path | £ 0 | 0 | 0.00 KM |
Nearby Transport
| Name | NLC | TLC | Distance |
|---|---|---|---|
| Ash | 5641 | ASH | 2.14 KM |
| Ash Vale | 5547 | AHV | 2.58 KM |
| North Camp | 5636 | NCM | 2.70 KM |
| Aldershot | 5623 | AHT | 3.13 KM |
| Farnborough (Main) | 5521 | FNB | 5.66 KM |
Nearby Listings
| Address | Price | Type | Score | Distance |
|---|---|---|---|---|
| Brookfield Road, Aldershot, Hampshire, GU12 | £ 415,000 | BUY | 6 / 10 | 0.00 KM |
| Brookfield Road, Aldershot, GU12 | £ 435,000 | BUY | 7 / 10 | 0.03 KM |
| Brookfield Road, Aldershot | £ 370,000 | BUY | 6 / 10 | 0.04 KM |
| Brookfield Road, Aldershot, Hampshire, GU12 | £ 400,000 | BUY | 7 / 10 | 0.08 KM |
| Brookfield Road, Aldershot, Hampshire | £ 465,000 | BUY | 7 / 10 | 0.17 KM |
Nearby Properties
| Address | Price | Distance |
|---|---|---|
| 30 Brookfield Road | £ 220,000 | 0.01 KM |
| 36 Brookfield Road | £ 327,500 | 0.01 KM |
| 80 Brookfield Road | £ 67,000 | 0.01 KM |
| 62 Brookfield Road | £ 321,000 | 0.01 KM |
| 28 Brookfield Road | £ 295,000 | 0.01 KM |