Acorn says ..
NO ONWARD CHAIN Introducing 224 Old Road East, a three-bedroom end-of-terrace home in a sought-after Gravesend location, offered with a guide price of £300,000–£325,000. This property presents an exciting opportunity for buyers looking to add value, refurbish to thei...
Property Oracle says ..
This end-of-terrace property on Old Road East, Gravesend, offers three bedrooms and one bathroom. While the location provides access to nearby schools and transportation, the property itself requires significant renovation. The interior, including the kitchen and bathroom, appears dated, and some flooring needs replacement. However, the property benefits from a good-sized garden. Priced at £300,000, it presents a potential opportunity for buyers willing to invest in refurbishment, as the price per square foot is below the local average.
Therefore, we give this property 6 / 10. *Disclaimer: This is our option and does constitute a recommendation or financial advice. Do your own research. *
- Price
- 7
- Condition
- 4
- Location
- 6
- Land
- 7
- Bedrooms
- 3
- Bathrooms
- 1
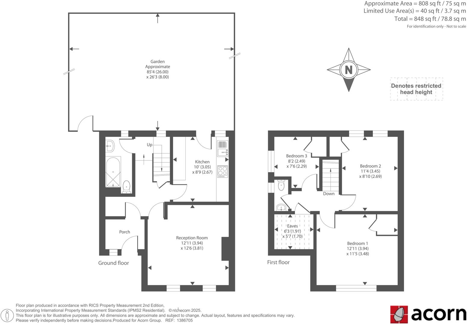
- Sqft (est)
- 848.00
The heatmap indicates the level of crime in the area. The color of the heatmap indicates the crime severity and recency.
Metrics Year-on-Year
- Average area value
- 277,018.00 £Decreased by 9.31 %
- Est sale value
- 339,200.00 £Increased by 21.95 %
- Average area rental value
- 1,179.00 £/moIncreased by 1.11 %
- Est letting value
- 848.00 £/moUnchanged by 0.00 %
- Est rental Yield
- 5.11 %Increased by 11.57 %
- Crime Rate
- 10.00 %Unchanged by 0.00 %
Agent Activity
Acorn created the listing.
Nearby Schools
| Name | Type | Ofsted | Distance |
|---|---|---|---|
| Westcourt Primary School | Academy Converter | Good | 0.30 KM |
| Riverside Children'S Centre (Gravesend) | Children's Centre | 0.33 KM | |
| North West Kent Alternative Provision Service | Academy Alternative Provision Sponsor Led | 0.43 KM | |
| Link19 College | Special Post 16 Institution | 0.53 KM | |
| St John'S Catholic Primary School, Gravesend | Academy Converter | Good | 0.67 KM |
Images
Nearby Streets
| Name | Average Price | Average Sqft | Distance |
|---|---|---|---|
| Silver Road | £ 0 | 0 | 0.00 KM |
| Farriers Close | £ 0 | 0 | 0.00 KM |
| West Court Lane | £ 500,000 | 0 | 0.00 KM |
| St. Chad's Drive | £ 299,500 | 0 | 0.00 KM |
| The Parade | £ 0 | 0 | 0.00 KM |
Nearby Transport
| Name | NLC | TLC | Distance |
|---|---|---|---|
| Gravesend | 5172 | GRV | 2.87 KM |
| Tilbury Town | 7462 | TIL | 5.28 KM |
| Sole Street | 5126 | SOR | 5.65 KM |
| Meopham | 5116 | MEP | 6.34 KM |
| East Tilbury | 7471 | ETL | 6.34 KM |
Nearby Listings
| Address | Price | Type | Score | Distance |
|---|---|---|---|---|
| Old Road East, Gravesend, Kent | £ 300,000 | BUY | 6 / 10 | 0.00 KM |
| Old Road East, Gravesend, Kent, DA12 | £ 350,000 | BUY | 6 / 10 | 0.06 KM |
| Old Road East, Gravesend, DA12 1PW | £ 325,000 | BUY | 7 / 10 | 0.07 KM |
| Old Road East, Gravesend, Kent, DA12 | £ 325,000 | BUY | 6 / 10 | 0.08 KM |
| Hampton Crescent, Gravesend, Kent, DA12 | £ 400,000 | BUY | 7 / 10 | 0.08 KM |
Nearby Properties
| Address | Price | Distance |
|---|---|---|
| 259 Old Road East | £ 210,000 | 0.08 KM |
| 217 Old Road East | £ 225,000 | 0.08 KM |
| 199 Old Road East | £ 328,000 | 0.08 KM |
| 261 Old Road East | £ 265,000 | 0.08 KM |
| 225 Old Road East | £ 151,000 | 0.08 KM |