Cartmel Close, Holmes Chapel
By Gascoigne Halman
£ 445,000
Reviews
4 out of 5 stars
Gascoigne Halman says ..
Set in a generous garden plot with a driveway either side providing ample off road parking, with many recent enhancements by the current owner yet with the ability for a buyer to still add their own finishing touches.
Property Oracle says ..
Therefore, we give this property 8 / 10. *Disclaimer: This is our option and does constitute a recommendation or financial advice. Do your own research. *
- Price
- 8
- Condition
- 8
- Location
- 9
- Land
- 7
- Bedrooms
- 3
- Bathrooms
- 1
- Sqft (est)
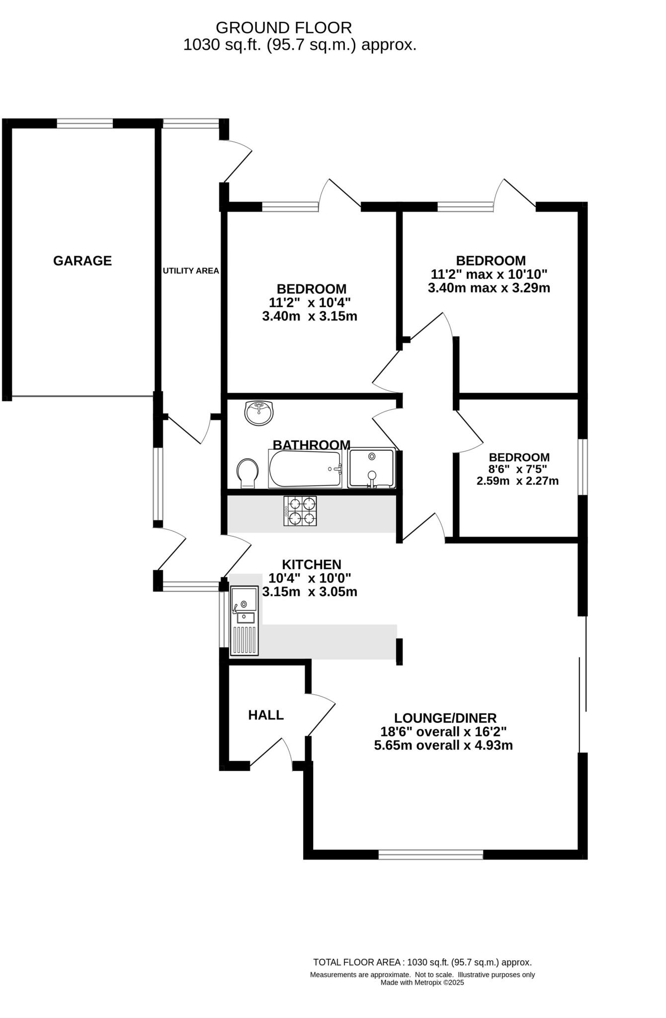
- 1,030.00
The heatmap indicates the level of crime in the area. The color of the heatmap indicates the crime severity and recency.
Metrics Year-on-Year
- Average area value
- 420,645.00 £Increased by 5.85 %
- Est sale value
- 486,160.00 £Increased by 43.90 %
- Average area rental value
- 1,250.00 £/moDecreased by 18.03 %
- Est letting value
- 1,030.00 £/moUnchanged by 0.00 %
- Est rental Yield
- 3.57 %Decreased by 22.56 %
- Crime Rate
- 2.00 %Unchanged by 0.00 %
from 397,385.00 £
from 337,840.00 £
from 1,525.00 £/mo
from 1,030.00 £/mo
from 4.61 %
from 2.00 %
Agent Activity
Gascoigne Halman created the listing.
Nearby Schools
| Name | Type | Ofsted | Distance |
|---|---|---|---|
| Holmes Chapel Comprehensive School | Academy Converter | Good | 0.37 KM |
| Holmes Chapel Primary School | Academy Converter | Outstanding | 0.73 KM |
| Hermitage Primary School | Academy Converter | 1.97 KM | |
| Brereton Cofe Primary School | Academy Converter | 4.75 KM | |
| Goostrey Community Primary School | Community School | Outstanding | 4.88 KM |
Images
Nearby Streets
| Name | Average Price | Average Sqft | Distance |
|---|---|---|---|
| Cartmel Close | £ 0 | 0 | 0.00 KM |
| Cavendish Way | £ 0 | 0 | 0.00 KM |
| Broad Lane | £ 0 | 0 | 0.00 KM |
| Northway | £ 330,000 | 0 | 0.00 KM |
| Southlands | £ 0 | 0 | 0.00 KM |
Nearby Transport
| Name | NLC | TLC | Distance |
|---|---|---|---|
| Holmes Chapel | 1221 | HCH | 1.91 KM |
| Goostrey | 1220 | GTR | 5.26 KM |
| Sandbach | 1261 | SDB | 6.22 KM |
Nearby Listings
| Address | Price | Type | Score | Distance |
|---|---|---|---|---|
| Cartmel Close, Holmes Chapel | £ 445,000 | BUY | 8 / 10 | 0.00 KM |
| Elmore Close, Holmes Chapel | £ 425,000 | BUY | 6 / 10 | 0.22 KM |
| Middlewich Road, Holmes Chapel | £ 260,000 | BUY | 7 / 10 | 0.23 KM |
| Middlewich Road, Holmes Chapel | £ 295,000 | BUY | 7 / 10 | 0.24 KM |
| Middlewich Road, Holmes Chapel | £ 285,000 | BUY | Unknown | 0.24 KM |
Nearby Properties
| Address | Price | Distance |
|---|---|---|
| 19 Grasmere Drive | £ 330,000 | 0.09 KM |
| 17 Grasmere Drive | £ 160,000 | 0.09 KM |
| 10 Grasmere Drive | £ 225,000 | 0.09 KM |
| 9 Grasmere Drive | £ 215,000 | 0.09 KM |
| 8 Grasmere Drive | £ 335,000 | 0.10 KM |