Bradleys says ..
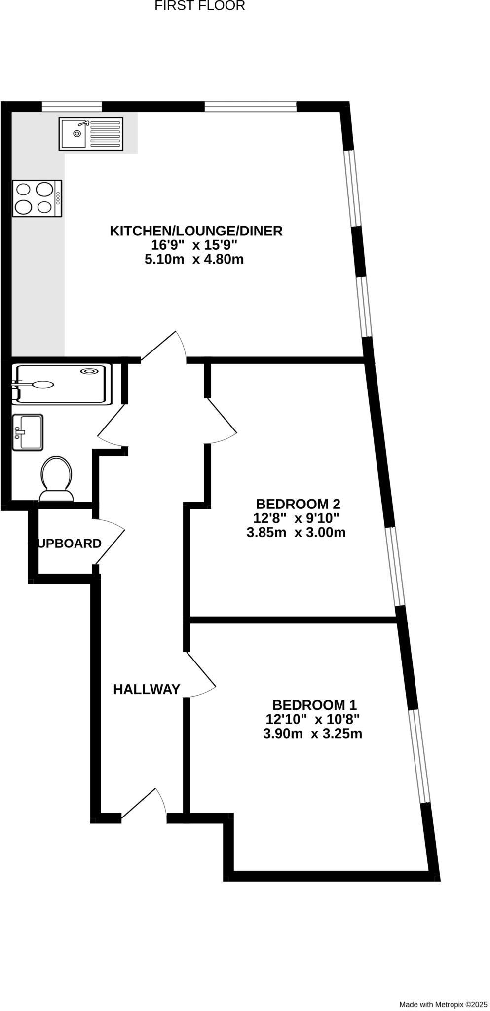
MODERN TWO BEDROOM APARTMENT This contemporary upper-floor apartment, located in the heart of Town, offers modern living with the convenience of lift access. The property features two bedrooms and a generous open-plan living area, complete with a well-equipped kitchen and space to dinin...
Property Oracle says ..
Therefore, we give this property 6 / 10. *Disclaimer: This is our option and does constitute a recommendation or financial advice. Do your own research. *
- Price
- 7
- Condition
- 8
- Location
- 7
- Land
- 3
- Bedrooms
- 2
- Bathrooms
- 1
- Sqft (est)
- 524.26
The heatmap indicates the level of crime in the area. The color of the heatmap indicates the crime severity and recency.
Metrics Year-on-Year
- Average area value
- 353,125.00 £Increased by 13.69 %
- Est sale value
- 224,907.54 £Increased by 22.92 %
- Average area rental value
- 1,100.00 £/moDecreased by 4.18 %
- Est letting value
- 524.26 £/moUnchanged by 0.00 %
- Est rental Yield
- 3.74 %Decreased by 15.77 %
- Crime Rate
- 108.00 %Unchanged by 0.00 %
from 310,608.00 £
from 182,966.74 £
from 1,148.00 £/mo
from 524.26 £/mo
from 4.44 %
from 108.00 %
Agent Activity
Bradleys created the listing.
Nearby Schools
| Name | Type | Ofsted | Distance |
|---|---|---|---|
| The Beacon Church Of England (Va) Primary School | Voluntary Aided School | Good | 0.36 KM |
| Exeter Road Community Primary School | Foundation School | Good | 0.55 KM |
| Exeter Royal Academy For Deaf Education | Non-maintained Special School | Requires improvement | 1.15 KM |
| St Joseph'S Catholic Primary School, Exmouth | Academy Converter | Good | 1.28 KM |
| Exmouth Community College | Academy Converter | Requires improvement | 1.33 KM |
Images
Nearby Streets
| Name | Average Price | Average Sqft | Distance |
|---|---|---|---|
| Beacon Hill | £ 0 | 0 | 0.00 KM |
| South Street | £ 0 | 0 | 0.00 KM |
| Albion Terrace | £ 200,000 | 0 | 0.00 KM |
| Southern Road | £ 425,000 | 0 | 0.00 KM |
| Bicton Villas | £ 0 | 0 | 0.00 KM |
Nearby Transport
| Name | NLC | TLC | Distance |
|---|---|---|---|
| Exmouth | 5756 | EXM | 0.23 KM |
| Lympstone Village | 5761 | LYM | 3.61 KM |
| Starcross | 3413 | SCS | 3.67 KM |
| Dawlish Warren | 3409 | DWW | 3.87 KM |
| Lympstone Commando | 5762 | LYC | 5.50 KM |
Nearby Listings
| Address | Price | Type | Score | Distance |
|---|---|---|---|---|
| Elm Grove, Exmouth | £ 275,000 | BUY | 5 / 10 | 0.00 KM |
| Elm Grove, Exmouth, Devon | £ 270,000 | BUY | 6 / 10 | 0.00 KM |
| Elm Grove, Exmouth, Devon, EX8 | £ 250,000 | BUY | 6 / 10 | 0.00 KM |
| Estuary Reach, Elm Grove, Exmouth, East Devon, Devon, EX8 | £ 250,000 | BUY | Unknown | 0.00 KM |
| Estuary Reach, Elm Grove, Exmouth, EX8 | £ 450,000 | BUY | 6 / 10 | 0.05 KM |
Nearby Properties
| Address | Price | Distance |
|---|---|---|
| 5 Manchester Road | £ 128,000 | 0.06 KM |
| 13 Manchester Street | £ 272,500 | 0.07 KM |
| 9 Manchester Street | £ 150,000 | 0.07 KM |
| Elm Cottage | £ 150,000 | 0.07 KM |
| 11a Victoria Road | £ 97,000 | 0.07 KM |