Walton Road, Brooklands, Sale, M33
By Northwood
£ 525,000
Reviews
3 out of 5 stars
Northwood says ..
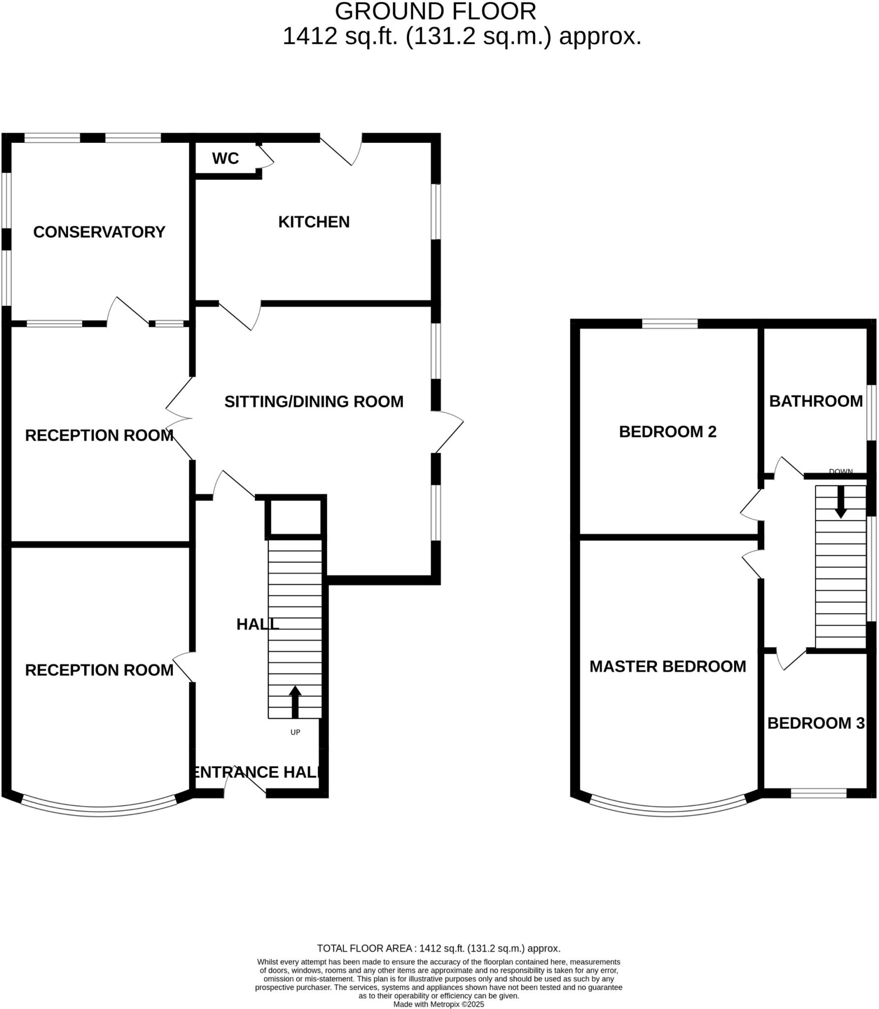
A rare opportunity to purchase this three-bedroom freehold home on a corner plot in a sought-after Sale location. Featuring two reception rooms, kitchen, orangery, landscaped gardens, driveway, and garage, this chain-free property offers excellent potential to make your own.
Property Oracle says ..
This is a 3-bedroom semi-detached property on Walton Road, Brooklands, Sale. The property offers 1,412 sq ft of living space, which is significantly larger than the average for the area. The property benefits from a garden and appears to be in generally good condition, with modern fixtures. The location is desirable due to its proximity to schools and transportation. The price is higher than average for the area, but the increased square footage may justify the cost. The property has a garage and patio.
Therefore, we give this property 6 / 10. *Disclaimer: This is our option and does constitute a recommendation or financial advice. Do your own research. *
- Price
- 6
- Condition
- 7
- Location
- 7
- Land
- 7
- Bedrooms
- 3
- Bathrooms
- 1
- Sqft (est)
- 1,412.00
The heatmap indicates the level of crime in the area. The color of the heatmap indicates the crime severity and recency.
Metrics Year-on-Year
- Average area value
- 380,332.00 £Increased by 1.15 %
- Est sale value
- 769,540.00 £Increased by 46.11 %
- Average area rental value
- 1,544.00 £/moUnchanged by 0.00 %
- Est letting value
- 2,824.00 £/moIncreased by 100.00 %
- Est rental Yield
- 4.87 %Decreased by 1.22 %
- Crime Rate
- 0.00 %
Agent Activity
Northwood created the listing.
Nearby Schools
| Name | Type | Ofsted | Distance |
|---|---|---|---|
| Park Road Academy Primary School | Academy Converter | 0.68 KM | |
| St Hugh'S Catholic Primary School | Voluntary Aided School | Outstanding | 0.94 KM |
| Tyntesfield Primary School | Academy Converter | 0.99 KM | |
| Ashton-On-Mersey School | Academy Converter | Good | 1.04 KM |
| Woodheys Primary School | Community School | Good | 1.13 KM |
Images
Nearby Streets
| Name | Average Price | Average Sqft | Distance |
|---|---|---|---|
| Tiverton Avenue | £ 700,000 | 0 | 0.00 KM |
| Rugby Drive | £ 0 | 0 | 0.00 KM |
| The Drive | £ 0 | 0 | 0.00 KM |
| Westwood Avenue | £ 0 | 0 | 0.00 KM |
| Harboro Way | £ 0 | 0 | 0.00 KM |
Nearby Transport
| Name | NLC | TLC | Distance |
|---|---|---|---|
| Navigation Road | 2940 | NVR | 1.89 KM |
| Altrincham | 2806 | ALT | 2.83 KM |
| Hale (Manchester) | 2845 | HAL | 3.77 KM |
| Urmston | 2938 | URM | 4.63 KM |
| Humphrey Park | 2937 | HUP | 4.71 KM |
Nearby Listings
| Address | Price | Type | Score | Distance |
|---|---|---|---|---|
| Walton Road, SALE, Cheshire, M33 | £ 490,000 | BUY | Unknown | 0.00 KM |
| Walton Road, Brooklands, Sale, M33 | £ 525,000 | BUY | 6 / 10 | 0.00 KM |
| Walton Road, Sale | £ 500,000 | BUY | 7 / 10 | 0.05 KM |
| Walton Road, Sale | £ 550,000 | BUY | 6 / 10 | 0.13 KM |
| Walton Road, Sale, M33 | £ 425,000 | BUY | 6 / 10 | 0.14 KM |
Nearby Properties
| Address | Price | Distance |
|---|---|---|
| 164 Walton Road | £ 300,000 | 0.00 KM |
| 136 Walton Road | £ 345,000 | 0.00 KM |
| 131 Walton Road | £ 490,000 | 0.05 KM |
| 137 Walton Road | £ 227,000 | 0.05 KM |
| 109 Walton Road | £ 282,000 | 0.05 KM |