Henlys Estate Agents says ..
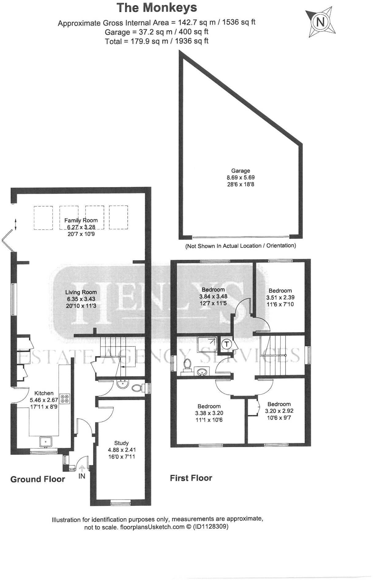
CHAIN FREE on this EXTREMELY WELL PRESENTED four-bedroom detached family home in Blackwater, within walking distance to the local amenities, easy access onto the A30 & M3, walking distance to Blackwater main line train station & bus links & within a good catchment area for the local schools.
Property Oracle says ..
This four-bedroom detached house in Blackwater, Hampshire, presents a compelling proposition for families seeking a convenient location with good transport links and access to local amenities. The property’s modern kitchen and open-plan living area offer contemporary living spaces. Although photos show a significant amount of the interior, not all areas of the house are shown. The proximity to Blackwater train station, the A30, and the M3 provides easy access to commuting routes, and the nearby reputable schools make it attractive to families. The lack of explicit detail regarding the garden size makes a complete assessment of the property difficult. Overall, the property shows signs of modernisation, looks comfortable, and benefits from a convenient location in a sought-after area. However, more data on plot size and local comparable sales would allow for a more precise evaluation.
Therefore, we give this property 6 / 10. *Disclaimer: This is our option and does constitute a recommendation or financial advice. Do your own research. *
- Price
- 7
- Condition
- 7
- Location
- 7
- Land
- 4
- Bedrooms
- 4
- Bathrooms
- 1
- Sqft (est)
- 1,936.43
The heatmap indicates the level of crime in the area. The color of the heatmap indicates the crime severity and recency.
Metrics Year-on-Year
- Average area value
- 468,750.00 £Increased by 26.03 %
- Est sale value
- 1,051,481.49 £Increased by 30.84 %
- Average area rental value
- 1,700.00 £/moIncreased by 8.42 %
- Est letting value
- 1,936.43 £/moUnchanged by 0.00 %
- Est rental Yield
- 4.35 %Decreased by 14.03 %
- Crime Rate
- 6.00 %Unchanged by 0.00 %
Agent Activity
Henlys Estate Agents created the listing.
Nearby Schools
| Name | Type | Ofsted | Distance |
|---|---|---|---|
| Hawley Primary School | Community School | Good | 0.86 KM |
| Hurst Lodge School | Other Independent School | 1.32 KM | |
| Frogmore Junior School | Academy Sponsor Led | Good | 1.55 KM |
| Water Lilies Children'S Centre | Children's Centre Linked Site | 1.55 KM | |
| Frogmore Infant School | Community School | Outstanding | 1.73 KM |
Images
Nearby Streets
| Name | Average Price | Average Sqft | Distance |
|---|---|---|---|
| The Lake Side | £ 595,000 | 0 | 0.00 KM |
| Meadow Close | £ 0 | 0 | 0.00 KM |
| The Oaks | £ 0 | 0 | 0.00 KM |
| Marshall Road | £ 0 | 0 | 0.00 KM |
| Woodside | £ 0 | 0 | 0.00 KM |
Nearby Transport
| Name | NLC | TLC | Distance |
|---|---|---|---|
| Blackwater | 5625 | BAW | 0.65 KM |
| Sandhurst (Berks) | 5646 | SND | 3.14 KM |
| Camberley | 5682 | CAM | 4.27 KM |
| Frimley | 5683 | FML | 4.37 KM |
| Farnborough (Main) | 5521 | FNB | 4.69 KM |
Nearby Listings
| Address | Price | Type | Score | Distance |
|---|---|---|---|---|
| Willow Lane, GU17 | £ 595,000 | BUY | 6 / 10 | 0.00 KM |
| French Gardens, Blackwater, Camberley, Hampshire, GU17 | £ 375,000 | BUY | 7 / 10 | 0.11 KM |
| The Elms, Broom Way, GU17 | £ 120,000 | BUY | 6 / 10 | 0.13 KM |
| Broom Way, Blackwater, Camberley | £ 105,000 | BUY | 5 / 10 | 0.13 KM |
| Beech Drive, Blackwater | £ 475,000 | BUY | 6 / 10 | 0.19 KM |
Nearby Properties
| Address | Price | Distance |
|---|---|---|
| Nash Cottage | £ 380,000 | 0.00 KM |
| Blenheim | £ 338,000 | 0.00 KM |
| Pineview | £ 275,000 | 0.00 KM |
| The Monkeys | £ 249,995 | 0.00 KM |
| Brynderwyn | £ 249,950 | 0.00 KM |