KE
Disraeli Road, Rayleigh, SS6
By Keller Williams
£ 900,000
Reviews
2 out of 5 stars
Keller Williams says ..
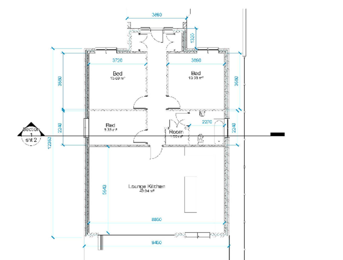
Guide Price £900k–£1M | 3-bed bungalow + building plot with full planning for 3-bed detached | Rare PD rights on new build & existing — potential to double footprint | Semi-rural, woodland walks, huge potential | Call now!
Property Oracle says ..
Therefore, we give this property 5 / 10. *Disclaimer: This is our option and does constitute a recommendation or financial advice. Do your own research. *
- Price
- 3
- Condition
- 5
- Location
- 8
- Land
- 7
- Bedrooms
- 3
- Bathrooms
- 1
- Sqft (est)
- 1,153.89
The heatmap indicates the level of crime in the area. The color of the heatmap indicates the crime severity and recency.
Metrics Year-on-Year
- Average area value
- 643,750.00 £Increased by 14.53 %
- Est sale value
- 386,553.15 £Decreased by 12.99 %
- Average area rental value
- 1,550.00 £/moDecreased by 1.96 %
- Est letting value
- 0.00 £/moDecreased by 100.00 %
- Est rental Yield
- 2.89 %Decreased by 14.50 %
- Crime Rate
- 0.00 %
from 562,063.00 £
from 444,247.65 £
from 1,581.00 £/mo
from 1,153.89 £/mo
from 3.38 %
from 0.00 %
Agent Activity
Keller Williams created the listing.
Nearby Schools
| Name | Type | Ofsted | Distance |
|---|---|---|---|
| Roc5 The Oak Tree Family Hub | Children's Centre | 0.85 KM | |
| Grove Wood Primary School | Academy Converter | Outstanding | 0.85 KM |
| Edwards Hall Primary School | Academy Converter | 1.43 KM | |
| Wyburns Primary School | Academy Converter | 1.94 KM | |
| Fairways Primary School | Community School | Good | 2.12 KM |
Images
Nearby Streets
| Name | Average Price | Average Sqft | Distance |
|---|---|---|---|
| Royal Court | £ 542,500 | 0 | 0.00 KM |
| Boundary Road | £ 386,667 | 0 | 0.00 KM |
| The Drive | £ 0 | 0 | 0.00 KM |
| Rayleigh Road | £ 0 | 0 | 0.00 KM |
| The Gables | £ 0 | 0 | 0.00 KM |
Nearby Transport
| Name | NLC | TLC | Distance |
|---|---|---|---|
| Hockley | 6880 | HOC | 3.60 KM |
| Leigh-On-Sea | 7446 | LES | 4.22 KM |
| Rayleigh | 6884 | RLG | 4.31 KM |
| Chalkwell | 7469 | CHW | 5.79 KM |
| Rochford | 6885 | RFD | 7.16 KM |
Nearby Listings
| Address | Price | Type | Score | Distance |
|---|---|---|---|---|
| Disraeli Road, Rayleigh, SS6 | £ 500,000 | BUY | 6 / 10 | 0.00 KM |
| Disraeli Road, Rayleigh, SS6 | £ 900,000 | BUY | 5 / 10 | 0.00 KM |
| Rayleigh Avenue Leigh-on-Sea SS9 | £ 390,000 | BUY | 7 / 10 | 0.24 KM |
| Rayleigh Avenue, SEMI RURAL RAYLEIGH BORDERS, Leigh-on-Sea, SS9 | £ 600,000 | BUY | Unknown | 0.27 KM |
| Rayleigh Avenue, Leigh-on-sea, SS9 | £ 1,300,000 | BUY | Unknown | 0.28 KM |
Nearby Properties
| Address | Price | Distance |
|---|---|---|
| 7 Disraeli Road | £ 280,000 | 0.05 KM |
| Woodside | £ 575,000 | 0.05 KM |
| 9 Disraeli Road | £ 425,000 | 0.05 KM |
| 2 Disraeli Road | £ 276,500 | 0.05 KM |
| 8 Disraeli Road | £ 365,000 | 0.05 KM |