Chepstow Drive, Bourne, Lincolnshire, PE10
By Winkworth
£ 220,000
Reviews
3 out of 5 stars
Winkworth says ..
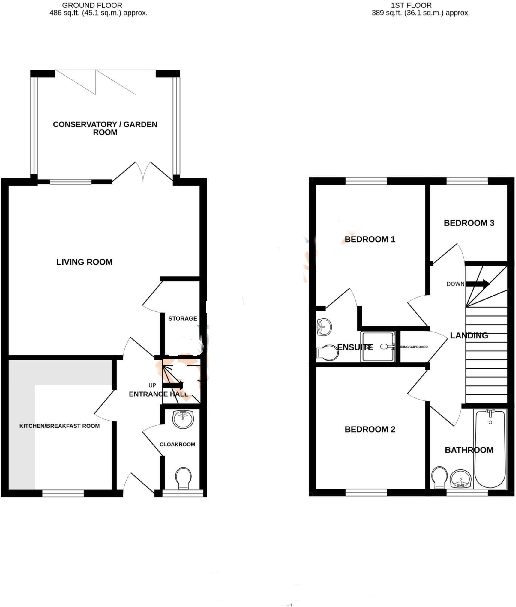
Winkworth are delighted to offer for sale this superbly presented and much improved three bedroom home with a quality garden room with bi folding doors onto the rear garden. The property is set over two floors with accommodation comprising, entrance hall, downstairs cloakroom, modern fitted kitch...
Property Oracle says ..
This is a three-bedroom end-of-terrace property located on Chepstow Drive in Bourne, Lincolnshire. The house has two bathrooms and a garden with a shed. The property appears to be in good condition and benefits from its proximity to local schools and amenities. The listing price of £220,000 seems reasonable for the area and property type.
Therefore, we give this property 7 / 10. *Disclaimer: This is our option and does constitute a recommendation or financial advice. Do your own research. *
- Price
- 8
- Condition
- 8
- Location
- 7
- Land
- 6
- Bedrooms
- 3
- Bathrooms
- 2
The heatmap indicates the level of crime in the area. The color of the heatmap indicates the crime severity and recency.
Metrics Year-on-Year
- Average area value
- 252,722.00 £Decreased by 7.54 %
- Average area rental value
- 1,183.00 £/moIncreased by 4.41 %
- Est rental Yield
- 5.62 %Increased by 13.08 %
- Crime Rate
- 7.00 %Unchanged by 0.00 %
Agent Activity
Winkworth created the listing.
Nearby Schools
| Name | Type | Ofsted | Distance |
|---|---|---|---|
| Bourne Elsea Park Church Of England Primary Academy | Academy Sponsor Led | Good | 0.46 KM |
| Bourne Grammar School | Academy Converter | 1.03 KM | |
| Willoughby Academy | Academy Special Converter | 1.08 KM | |
| Bourne Abbey Church Of England Primary Academy | Academy Converter | Good | 1.58 KM |
| Bourne Westfield Primary Academy | Academy Converter | Outstanding | 1.66 KM |
Images
Nearby Streets
| Name | Average Price | Average Sqft | Distance |
|---|---|---|---|
| Newton Abbot Way | £ 320,000 | 0 | 0.00 KM |
| Craigmore Close | £ 308,950 | 0 | 0.00 KM |
| Conway Drive | £ 250,000 | 0 | 0.00 KM |
| Ripon Close | £ 208,750 | 0 | 0.00 KM |
| Notley Way | £ 330,000 | 0 | 0.00 KM |
Nearby Listings
| Address | Price | Type | Score | Distance |
|---|---|---|---|---|
| Chepstow Drive, Bourne, Lincolnshire, PE10 | £ 220,000 | BUY | 7 / 10 | 0.00 KM |
| Chepstow Drive, Bourne, PE10 | £ 410,000 | BUY | 7 / 10 | 0.04 KM |
| Chepstow Drive, Bourne | £ 695,000 | BUY | Unknown | 0.06 KM |
| Chepstow Drive, Bourne | £ 167,500 | BUY | 7 / 10 | 0.10 KM |
| Newbury Crescent, Bourne, PE10 | £ 390,000 | BUY | 6 / 10 | 0.12 KM |
Nearby Properties
| Address | Price | Distance |
|---|---|---|
| 25 Chepstow Drive | £ 271,000 | 0.02 KM |
| 15 Chepstow Drive | £ 127,000 | 0.02 KM |
| 23 Chepstow Drive | £ 250,000 | 0.03 KM |
| 32 Chepstow Drive | £ 247,500 | 0.03 KM |
| 19 Chepstow Drive | £ 140,000 | 0.03 KM |