Westbury Drive, Macclesfield
By Gascoigne Halman
£ 330,000
Reviews
3 out of 5 stars
Gascoigne Halman says ..
Offering great size accommodation and a large west facing garden this semi detached three bedroom home is well presented throughout and is situated in a sought after location.
Property Oracle says ..
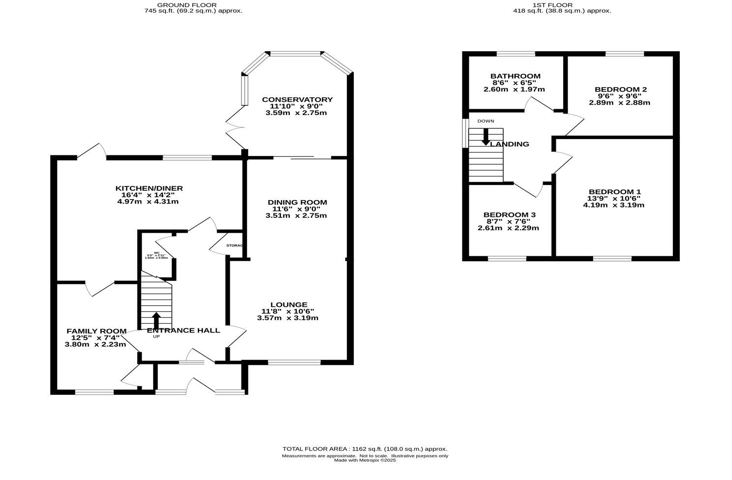
This three-bedroom semi-detached house in Macclesfield is located on Westbury Drive, within easy reach of several highly-rated schools including All Hallows Catholic College and St John The Evangelist Cofe Primary School. The property benefits from a good-sized garden, as shown in the provided images. The interior appears well-maintained and modern, with a recently updated bathroom. The kitchen includes integrated appliances and a laundry area. The asking price of £330,000 is slightly above the average price for the area (£259,500), but considering the property’s size (973.76 sqft), location, and condition, it could represent reasonable value. Nearby transport links include Macclesfield train station, approximately 2.54km away, providing access to Avanti West Coast services. Further analysis would require additional information regarding the property’s specific features and the local market conditions.
Therefore, we give this property 7 / 10. *Disclaimer: This is our option and does constitute a recommendation or financial advice. Do your own research. *
- Price
- 7
- Condition
- 8
- Location
- 8
- Land
- 7
- Bedrooms
- 3
- Bathrooms
- 1
- Sqft (est)
- 973.76
- Lot (est)
- 1,162.00
The heatmap indicates the level of crime in the area. The color of the heatmap indicates the crime severity and recency.
Metrics Year-on-Year
- Average area value
- 246,667.00 £Increased by 6.08 %
- Est sale value
- 280,442.88 £Increased by 10.77 %
- Average area rental value
- 1,000.00 £/moDecreased by 7.41 %
- Est letting value
- 973.76 £/moUnchanged by 0.00 %
- Est rental Yield
- 4.86 %Decreased by 12.75 %
- Crime Rate
- 0.00 %
Agent Activity
Gascoigne Halman created the listing.
Nearby Schools
| Name | Type | Ofsted | Distance |
|---|---|---|---|
| All Hallows Catholic College | Academy Converter | Outstanding | 0.38 KM |
| St John The Evangelist Cofe Primary School Macclesfield | Voluntary Aided School | Good | 0.56 KM |
| The Fermain Academy | Free Schools Alternative Provision | Outstanding | 0.67 KM |
| The Macclesfield Academy | Academy Sponsor Led | Requires improvement | 0.91 KM |
| Park Lane School | Community Special School | Requires improvement | 0.92 KM |
Images
Nearby Streets
| Name | Average Price | Average Sqft | Distance |
|---|---|---|---|
| Fleming Drive | £ 408,333 | 0 | 0.00 KM |
| Cherington Crescent | £ 340,000 | 0 | 0.00 KM |
| Merebrook Close | £ 450,000 | 0 | 0.00 KM |
| Holly Road | £ 0 | 0 | 0.00 KM |
| Hazelmere Avenue | £ 325,000 | 0 | 0.00 KM |
Nearby Transport
| Name | NLC | TLC | Distance |
|---|---|---|---|
| Macclesfield | 2871 | MAC | 2.54 KM |
| Prestbury | 2875 | PRB | 4.03 KM |
| Adlington (Cheshire) | 2939 | ADC | 7.05 KM |
Nearby Listings
| Address | Price | Type | Score | Distance |
|---|---|---|---|---|
| Westbury Drive, Macclesfield | £ 330,000 | BUY | 7 / 10 | 0.00 KM |
| Westbury Drive, Macclesfield, SK11 8LJ | £ 250,000 | BUY | Unknown | 0.09 KM |
| Westbury Court, Westbury Drive, Macclesfield | £ 169,950 | BUY | 7 / 10 | 0.20 KM |
| Melksham Close, Macclesfield, SK11 | £ 350,000 | BUY | 6 / 10 | 0.20 KM |
| Arlington Drive, Macclesfield | £ 349,950 | BUY | 8 / 10 | 0.21 KM |
Nearby Properties
| Address | Price | Distance |
|---|---|---|
| 41 Westbury Drive | £ 165,000 | 0.03 KM |
| 34 Westbury Drive | £ 299,950 | 0.03 KM |
| 38 Westbury Drive | £ 242,000 | 0.03 KM |
| 68 Westbury Drive | £ 175,500 | 0.03 KM |
| 59 Westbury Drive | £ 250,000 | 0.03 KM |