Gascoigne Halman says ..
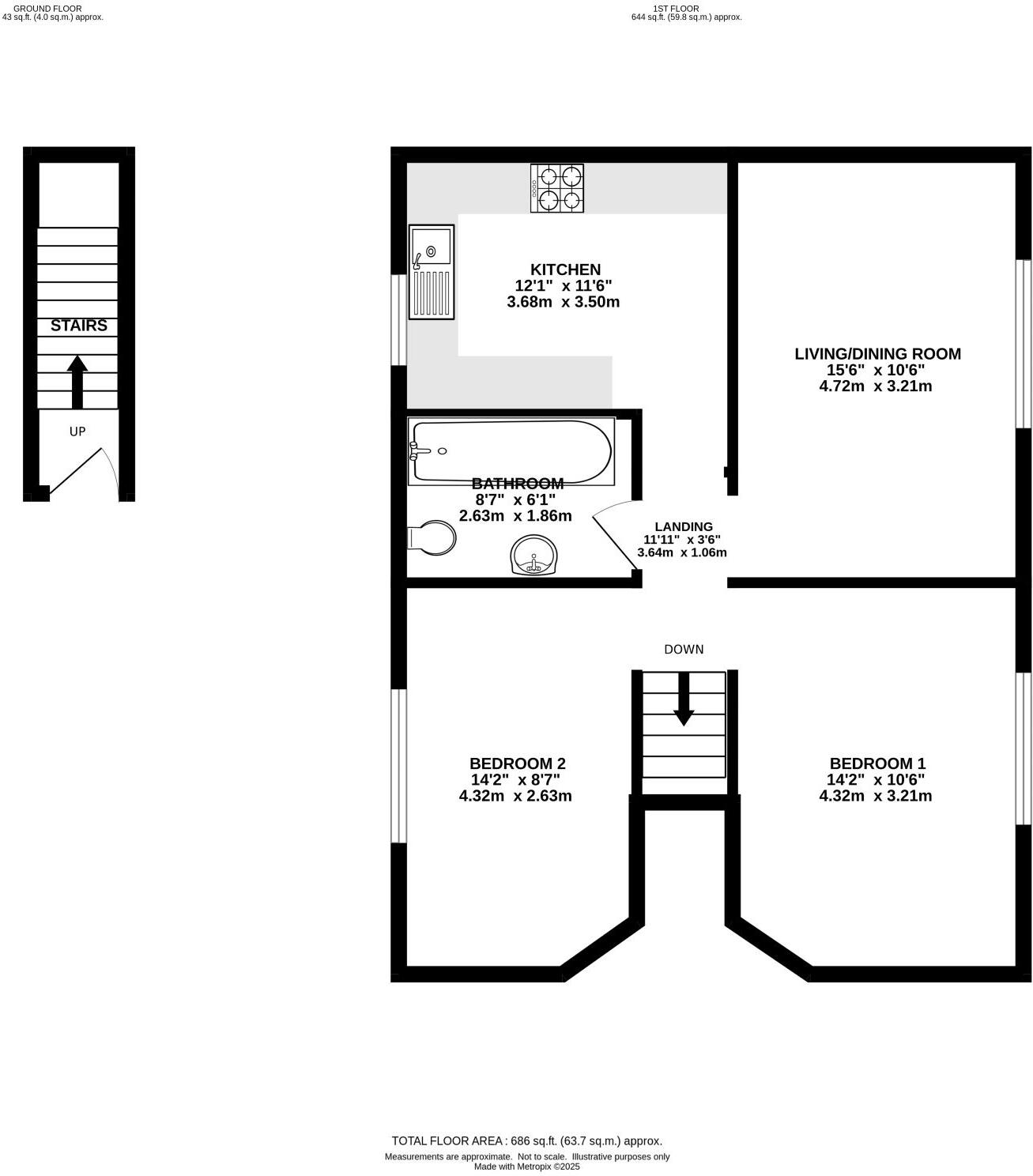
A spacious and light first floor two double bedroom flat with its own private entrance. Measuring an impressive 686 SQ FT and located in a quiet cul de sac location. The property is situated close to excellent transport links, such as the train, regular bus routes and local amenities whilst boast...
Property Oracle says ..
The property is located in Burnage, Manchester, close to highly-rated schools and train stations. It is in need of significant renovation, with bare floorboards and dated fixtures visible in the photos. The list price is lower than the area average, reflecting the required work. The garden is present but needs attention. The lack of plot size data hinders a complete land assessment. The price seems reasonable given the condition, but the final value will depend on renovation costs.
Therefore, we give this property 5 / 10. *Disclaimer: This is our option and does constitute a recommendation or financial advice. Do your own research. *
- Price
- 6
- Condition
- 3
- Location
- 7
- Land
- 5
- Bedrooms
- 2
- Bathrooms
- 1
- Sqft (est)
- 685.66
The heatmap indicates the level of crime in the area. The color of the heatmap indicates the crime severity and recency.
Metrics Year-on-Year
- Average area value
- 320,833.00 £Increased by 5.35 %
- Est sale value
- 351,743.58 £Increased by 67.10 %
- Average area rental value
- 1,380.00 £/moDecreased by 15.49 %
- Est letting value
- 1,371.32 £/moIncreased by 100.00 %
- Est rental Yield
- 5.16 %Decreased by 19.75 %
- Crime Rate
- 0.00 %
Agent Activity
Gascoigne Halman created the listing.
Nearby Schools
| Name | Type | Ofsted | Distance |
|---|---|---|---|
| Burnage Academy For Boys | Academy Converter | Outstanding | 0.29 KM |
| Green End Primary School | Academy Converter | Outstanding | 0.60 KM |
| Burnage Sure Start Children'S Centre | Children's Centre | 0.60 KM | |
| St Bernard'S Rc Primary School Manchester | Voluntary Aided School | Good | 0.65 KM |
| Ladybarn Primary School | Academy Converter | 1.00 KM |
Images
Nearby Streets
| Name | Average Price | Average Sqft | Distance |
|---|---|---|---|
| Fair Oak Road | £ 350,000 | 0 | 0.00 KM |
| Kenwood Avenue | £ 370,000 | 0 | 0.00 KM |
| Harwood Road | £ 242,500 | 0 | 0.00 KM |
| Errwood Road Cycleway | £ 295,000 | 0 | 0.00 KM |
| Swinly Crescent | £ 0 | 0 | 0.00 KM |
Nearby Transport
| Name | NLC | TLC | Distance |
|---|---|---|---|
| Mauldeth Road | 2867 | MAU | 0.94 KM |
| Burnage | 2945 | BNA | 1.17 KM |
| East Didsbury | 2949 | EDY | 2.52 KM |
| Levenshulme | 2862 | LVM | 2.56 KM |
| Heaton Chapel | 2861 | HTC | 2.97 KM |
Nearby Listings
| Address | Price | Type | Score | Distance |
|---|---|---|---|---|
| Holmdale Avenue, Burnage | £ 179,500 | BUY | 5 / 10 | 0.00 KM |
| Lansdale Gardens, Burnage | £ 300,000 | BUY | 6 / 10 | 0.09 KM |
| Carrgreen Close, Burnage, Manchester, Greater Manchester, M19 | £ 85,000 | BUY | 5 / 10 | 0.18 KM |
| Westville Gardens, Manchester, M19 | £ 290,000 | BUY | 7 / 10 | 0.21 KM |
| Green End Road, Burnage | £ 300,000 | BUY | 6 / 10 | 0.22 KM |
Nearby Properties
| Address | Price | Distance |
|---|---|---|
| 3 Holmdale Avenue | £ 271,000 | 0.04 KM |
| 35 Overlea Drive | £ 205,000 | 0.05 KM |
| 55 Overlea Drive | £ 208,000 | 0.05 KM |
| 47 Overlea Drive | £ 142,500 | 0.05 KM |
| 33 Overlea Drive | £ 133,000 | 0.05 KM |