Cambridge Road, Hitchin, SG4
By Country Properties
£ 497,500
Reviews
3 out of 5 stars
Country Properties says ..
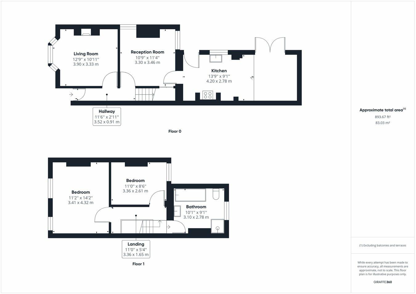
A two bedroom Victorian family home located in a convenient position for Hitchin Train Station and easy access to the town centre.Situated over two floors, this property offers ample opportunity to extend (STPP). To the ground floor is an entrance hall, living room with bay window and l...
Property Oracle says ..
This two-bedroom Victorian end-of-terrace house in Hitchin, Hertfordshire, is situated on Cambridge Road, offering a convenient location close to Hitchin Train Station and the town centre. The property’s proximity to several well-regarded schools such as Highover Junior Mixed And Infant School and William Ransom Primary School adds to its family-friendly appeal. The house shows evidence of modernisation, particularly in the kitchen, which appears recently updated. Other areas of the property, however, would benefit from minor refurbishment or updating. The garden, while present, is modest in size. The asking price appears reasonable in comparison with other properties in the vicinity, given its location and condition, although further information regarding local price per square foot and plot sizes would give a more robust assessment. Overall, this property represents a potentially solid investment opportunity, particularly for families who prioritize the location and convenience Hitchin provides.
Therefore, we give this property 6 / 10. *Disclaimer: This is our option and does constitute a recommendation or financial advice. Do your own research. *
- Price
- 7
- Condition
- 6
- Location
- 7
- Land
- 4
- Bedrooms
- 2
- Bathrooms
- 1
- Sqft (est)
- 893.73
The heatmap indicates the level of crime in the area. The color of the heatmap indicates the crime severity and recency.
Metrics Year-on-Year
- Average area value
- 540,000.00 £Increased by 23.55 %
- Est sale value
- 357,492.00 £Decreased by 4.53 %
- Average area rental value
- 1,424.00 £/moIncreased by 2.96 %
- Est letting value
- 893.73 £/moUnchanged by 0.00 %
- Est rental Yield
- 3.16 %Decreased by 16.84 %
- Crime Rate
- 17.00 %Unchanged by 0.00 %
Agent Activity
Country Properties created the listing.
Nearby Schools
| Name | Type | Ofsted | Distance |
|---|---|---|---|
| Highover Junior Mixed And Infant School | Community School | Good | 0.43 KM |
| William Ransom Primary School | Community School | Outstanding | 0.93 KM |
| St Andrew'S Church Of England Voluntary Aided Primary School, Hitchin | Voluntary Aided School | Outstanding | 1.06 KM |
| Purwell Primary School | Community School | Good | 1.09 KM |
| Mary Exton Primary School | Community School | Requires improvement | 1.16 KM |
Images
Nearby Streets
| Name | Average Price | Average Sqft | Distance |
|---|---|---|---|
| Green Lane | £ 530,000 | 0 | 0.00 KM |
| Allwoods Place | £ 340,536 | 0 | 0.00 KM |
| Chapman Way | £ 0 | 0 | 0.00 KM |
| East Close | £ 0 | 0 | 0.00 KM |
| Brockett Drive | £ 0 | 0 | 0.00 KM |
Nearby Transport
| Name | NLC | TLC | Distance |
|---|---|---|---|
| Hitchin | 6086 | HIT | 0.76 KM |
| Letchworth Garden City | 6089 | LET | 4.08 KM |
| Arlesey | 6171 | ARL | 7.85 KM |
| Stevenage | 6092 | SVG | 8.21 KM |
| Baldock | 6084 | BDK | 8.73 KM |
Nearby Listings
| Address | Price | Type | Score | Distance |
|---|---|---|---|---|
| Cambridge Road, Hitchin, SG4 | £ 497,500 | BUY | 6 / 10 | 0.00 KM |
| Woolgrove Road, Hitchin, SG4 | £ 500,000 | BUY | 7 / 10 | 0.07 KM |
| Willian Road, Hitchin, Hertfordshire, SG4 | £ 35,000 | BUY | 7 / 10 | 0.07 KM |
| Willian Road, Hitchin, Hertfordshire, SG4 | £ 340,000 | BUY | 5 / 10 | 0.07 KM |
| Willian Road, Hitchin, SG4 | £ 340,000 | BUY | Unknown | 0.09 KM |
Nearby Properties
| Address | Price | Distance |
|---|---|---|
| 92 Cambridge Road | £ 360,000 | 0.02 KM |
| 111 Cambridge Road | £ 250,000 | 0.02 KM |
| 127 Cambridge Road | £ 408,000 | 0.02 KM |
| 121 Cambridge Road | £ 415,150 | 0.02 KM |
| 94 Cambridge Road | £ 113,000 | 0.02 KM |