New Melton House, 38 Ashbourne Road, Derby
By Leaders Sales
£ 114,500
Reviews
3 out of 5 stars
Leaders Sales says ..
Leaders are delighted to bring to the market this tastefully presented and spacious apartment, full of charm and character with a wealth of attractive features and being situated on the first floor of a delightful Grade 2 listed Georgian building which was converted in 2006. The property briefly ...
Property Oracle says ..
This is a one-bedroom apartment located on Ashbourne Road in Darley, Derby. The property is in good condition and has a modern interior. The property is located in a well-connected area with nearby schools and transportation options. The property is listed at £114,500, which is below the average price for the area. The property has some communal garden space, but no private garden. Overall, this property represents a good investment opportunity.
Therefore, we give this property 6 / 10. *Disclaimer: This is our option and does constitute a recommendation or financial advice. Do your own research. *
- Price
- 8
- Condition
- 7
- Location
- 7
- Land
- 4
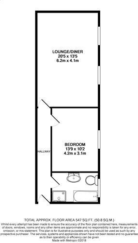
- Bedrooms
- 1
- Bathrooms
- 1
- Sqft (est)
- 547.00
The heatmap indicates the level of crime in the area. The color of the heatmap indicates the crime severity and recency.
Metrics Year-on-Year
- Average area value
- 336,500.00 £Increased by 36.08 %
- Est sale value
- 199,108.00 £Increased by 31.41 %
- Average area rental value
- 843.00 £/moIncreased by 29.29 %
- Est letting value
- 0.00 £/mo
- Est rental Yield
- 3.01 %Decreased by 4.75 %
- Crime Rate
- 5.00 %Unchanged by 0.00 %
Agent Activity
Leaders Sales created the listing.
Nearby Schools
| Name | Type | Ofsted | Distance |
|---|---|---|---|
| Jasmine Hall School | Other Independent Special School | 0.04 KM | |
| Ashgate Nursery School | Local Authority Nursery School | Good | 0.22 KM |
| Ashgate Primary School | Community School | Good | 0.23 KM |
| Derby Cathedral School | Free Schools | 0.48 KM | |
| Whitecross Nursery School | Local Authority Nursery School | Outstanding | 0.55 KM |
Images
Nearby Streets
| Name | Average Price | Average Sqft | Distance |
|---|---|---|---|
| Stepping Close | £ 0 | 0 | 0.00 KM |
| Noel Street | £ 0 | 0 | 0.00 KM |
| Markeaton Brook Walk | £ 0 | 0 | 0.00 KM |
| Saint John's Terrace | £ 0 | 0 | 0.00 KM |
| Boundary Road | £ 140,000 | 0 | 0.00 KM |
Nearby Transport
| Name | NLC | TLC | Distance |
|---|---|---|---|
| Derby | 1823 | DBY | 3.49 KM |
| Peartree | 1687 | PEA | 3.93 KM |
| Duffield | 1691 | DFI | 6.99 KM |
| Spondon | 1699 | SPO | 9.24 KM |
Nearby Listings
| Address | Price | Type | Score | Distance |
|---|---|---|---|---|
| New Melton House, 38 Ashbourne Road, Derby | £ 114,500 | BUY | 6 / 10 | 0.00 KM |
| Ashbourne Road, Derby, DE22 | £ 199,950 | BUY | 6 / 10 | 0.05 KM |
| Ashbourne Road, Derby | £ 190,000 | BUY | 5 / 10 | 0.07 KM |
| Ashbourne Road, Derby | £ 130,000 | BUY | 6 / 10 | 0.07 KM |
| Ashbourne Road, Derby | £ 135,000 | BUY | Unknown | 0.07 KM |
Nearby Properties
| Address | Price | Distance |
|---|---|---|
| 54 Ashbourne Road | £ 190,000 | 0.00 KM |
| 2 Melton Court Apartments | £ 156,950 | 0.07 KM |
| 55 Merchant Street | £ 119,500 | 0.12 KM |
| 52 Merchant Street | £ 103,000 | 0.12 KM |
| 45 Merchant Street | £ 113,000 | 0.12 KM |